Ручной гидравлический пресс чертеж: Пресс гидравлический своими руками – как сделать, чертежи + Видео
Содержание
Ручной гидравлический пресс | Статья в журнале «Молодой ученый»
Автор:
Григорьев Станислав Иванович
Рубрика: Технические науки
Опубликовано
в
Молодой учёный
№30 (134) декабрь 2016 г.
Дата публикации: 29.12.2016
2016-12-29
Статья просмотрена:
300 раз
Скачать электронную версию
Скачать Часть 1 (pdf)
Библиографическое описание:
Григорьев, С. И. Ручной гидравлический пресс / С.
И. Григорьев. — Текст : непосредственный // Молодой ученый. — 2016. — № 30 (134). — С. 56-59. — URL: https://moluch.ru/archive/134/37594/ (дата обращения: 19.05.2023).
Цель: cделать гидравлический пресс из подручных материалов.
Задачи:
– изучение технологии и принципа действия пресса;
– получение опыта работ и экономических навыков;
– использование пресса для лабораторных работ;
– модернизация продукта;
– подача заявки на патент.
Назначение: пресс предназначен для запрессовки, и выпрессовки, правки и гибки различных деталей. Гидравлическое устройство, используемое в изделии, может быть демонтировано и применяться для других видов работ (подъем, перемещение) отдельно от рамы [1].
Модернизация: Мы рассмотрели очень актуальный на сегодняшний день вопрос: установили сетчатую дверь, которая предусматривает требования по технике безопасности и защищает от отлета деталей.
На наш взгляд, это правильное решение, так как таких прессов в природе очень мало или даже нет.
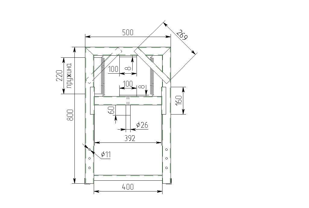
Устройство ручного гидравлического пресса:
- Угольник ГОСТ 8509- 93–4шт. 1500мм.
- Угольник ГОСТ 8509- 93–2шт. 1000мм.
- Швеллер ГОСТ 8240–89 № 16–3шт. 680мм.
- Пружины Ø 22мм, длиной 260мм из проволоки Ø 3,5мм — 2 шт.
- Размер стола ширина/длина — 1шт. 160/680мм.
- Гидравлический домкрат — 1 шт.:
Грузоподъемность — 20т.
Высота подъема — 452 мм.
Вес — 2,9 кг.
- Рама дверя — 1 шт.:
Высота — 850мм.
Ширина — 650мм.
- Габариты станка — 1 шт.
1000/680/1500мм (длина/ширина/высота)
Рис. 2. Схема ручного гидравлического пресса
I Этап: подбор инструментов и материалов.
Инструменты:
- Сварочный инвертор IMS 1600
- Болгарка Bosch GWS 20–230JH
- Дрель Makita 6413
- Метровка
- Маркер
- Краска голубая
- Ключ рожковый № 10
- Молоток
- Плоскогубцы
- Нождачная бумага
Материалы:
- Гидравлический домкрат — 1 шт.
: - Угольник ГОСТ 8509- 93–4шт. 1500мм.
- Угольник ГОСТ 8509- 93–2шт. 1000мм.
- Швеллер ГОСТ 8240–89 № 16–3шт. 680мм.
- Пружины Ø 22мм, длиной 260мм из проволоки Ø 3,5мм — 2 шт.
Рис. 2. Угольник ГОСТ 8509- 93–4 шт. 1500мм
Рис. 3. Гидравлический домкрат
II Этап: распиливание материалов под нужный размер
Рис. 4. Угольник ГОСТ 8509- 93
III Этап: сварка материалов, сверление, установка домкрата, двери и покраска
Рис. 5. Процесс сварки
IV Этап: испытание, проверка на работоспособность и безотказность
Рис. 6. Готовый ручной гидравлический пресс
Заключение
В данной научной статье был показан процесс создания ручного гидравлического пресса, при небольших габаритах и хороших технических характеристиках он подходит как для условий ремонтных мастерских, так и для крупных предприятий.
В гаражах, авторемонтных мастерских и на станциях обслуживания применяют верстачные, переносные и стационарные гидравлические прессы для выполнения всевозможных прессовых работ с различными прессовыми насадками.
Гидравлические системы имеют небольшие габаритные размеры, массу, изготовлены из простых деталей — получили широкое распространение среди гаражного оборудования [2,3].
Литература:
- Механизация и автоматизация капитального ремонта колёсных и гусеничных машин. — М.: Машиностроение, 1972. — 414с.
- Колесник П. А., Шейнин В. А. Техническое обслуживание и ремонт автомобилей. Учеб. для вузов. — М.: Транспорт, 1985. — 325с.
- Анурьев В. И. Справочник конструктора-машиностроителя. В 3-х т. 5-е изд. Перераб. и доп. — М.: Машиностроение, 1972.
Основные термины (генерируются автоматически): гидравлический домкрат, ГОСТ, ручной гидравлический пресс, GWS, III, IMS, угольник.
Похожие статьи
Виды
домкратов и их назначение | Статья в журнале…
Все модели домкратов по типу привода в действие можно разделить на механические, гидравлические и пневматические.
Домкраты механического действия являются одними из самых простых и недорогих подъемных устройств.
Гидравлическая система летательных аппаратов: вертолета…
Ключевые слова: летательный аппарат, авиастроение, система управления, гидравлическая система (гидравлический привод)
В качестве рабочей жидкости используется авиационное масло АМГ-10 (ГОСТ 6794–75), которое работает в интервале температур окружающей среды…
Гидравлический подъёмник с пружинной опорой
Тип привода — гидравлический, принцип действия — ручной периодический (рис. 1, 2). Технические характеристики: максимальная грузоподъёмность — 2,5 т
Автоматизация
гидравлического пресса для получения.
..
В данной статье рассматривается проект модернизации гидравлического пресса, выполненный с целью повышения экономической эффективности процесса при минимизации затрат на построение системы автоматики. Задача.
Модернизация средств испытаний тормозных шлангов автомобилей
Согласно требованиям ГОСТ 52452–2005 «Автомобильные транспортные средства. Трубки и шланги гидравлического и пневматического приводов тормозов. Технические требования и методы испытаний» [1], тормозные шланги, применяемые на автомобилях…
Компьютерное моделирование
гидравлических систем
гидравлические приводы. Для гидросистем, обеспечивающих подачу жидкости к потребителям, характерно отсутствие в них устройств, преобразующих энергию движения
Дьяконов В.
П. MatLab 6/6.1/6.5 + Simulink 4/5. Основы применения. –М.: Солон-ПРЕСС, 2004.
Испытание моделей балок, усиленных полосой на болтовом…
Траверсы 5 и 6 установлены горизонтально одна над другой, а на нижней траверсе 6 установлен источник дискретной нагрузки 4, который выполнен в виде гидравлического домкрата.
ГОСТ 8240–89 «Швеллеры стальные горячекатаные. Сортамент».
Восстановление моторно-осевого подшипника локомотива в СЛД…
В качестве полуды для лужения используется оловянно-свинцовый припой марки ПОС-18 ГОСТ 21931.
Рабочие должны быть в спецодежде, очках и рукавицах [3]. Восстановленные по всем требованиям технического процесса подшипники поступают на механическую обработку…
Похожие статьи
Виды
домкратов и их назначение | Статья в журнале.
..
Все модели домкратов по типу привода в действие можно разделить на механические, гидравлические и пневматические. Домкраты механического действия являются одними из самых простых и недорогих подъемных устройств.
Гидравлическая система летательных аппаратов: вертолета…
Ключевые слова: летательный аппарат, авиастроение, система управления, гидравлическая система (гидравлический привод)
В качестве рабочей жидкости используется авиационное масло АМГ-10 (ГОСТ 6794–75), которое работает в интервале температур окружающей среды…
Гидравлический подъёмник с пружинной опорой
Тип привода — гидравлический, принцип действия — ручной периодический (рис. 1, 2). Технические характеристики: максимальная грузоподъёмность — 2,5 т
Автоматизация
гидравлического пресса для получения.
..
В данной статье рассматривается проект модернизации гидравлического пресса, выполненный с целью повышения экономической эффективности процесса при минимизации затрат на построение системы автоматики. Задача.
Модернизация средств испытаний тормозных шлангов автомобилей
Согласно требованиям ГОСТ 52452–2005 «Автомобильные транспортные средства. Трубки и шланги гидравлического и пневматического приводов тормозов. Технические требования и методы испытаний» [1], тормозные шланги, применяемые на автомобилях…
Компьютерное моделирование
гидравлических систем
гидравлические приводы. Для гидросистем, обеспечивающих подачу жидкости к потребителям, характерно отсутствие в них устройств, преобразующих энергию движения
Дьяконов В.
П. MatLab 6/6.1/6.5 + Simulink 4/5. Основы применения. –М.: Солон-ПРЕСС, 2004.
Испытание моделей балок, усиленных полосой на болтовом…
Траверсы 5 и 6 установлены горизонтально одна над другой, а на нижней траверсе 6 установлен источник дискретной нагрузки 4, который выполнен в виде гидравлического домкрата.
ГОСТ 8240–89 «Швеллеры стальные горячекатаные. Сортамент».
Восстановление моторно-осевого подшипника локомотива в СЛД…
В качестве полуды для лужения используется оловянно-свинцовый припой марки ПОС-18 ГОСТ 21931.
Рабочие должны быть в спецодежде, очках и рукавицах [3]. Восстановленные по всем требованиям технического процесса подшипники поступают на механическую обработку…
Как сделать пресс станок в домашних условиях —
Содержание
- Изготовление гидравлического пресса своими руками: чертежи, фото, видео
- Устройство и функции гидравлического пресса
- Варианты использования в домашних условиях
- Конструкция домашнего пресса
- Что следует учитывать при разработке чертежа самодельного пресса
- Инструменты и материалы
- Процесс изготовления
- Внешний вид готового самодельного пресса
Изготовление гидравлического пресса своими руками: чертежи, фото, видео
При выполнении различных работ в домашней мастерской нередко возникает необходимость воздействия на обрабатываемые детали методом прессования.
О том, как сделать гидравлический пресс своими руками для выполнения таких операций, мы и поговорим в данной статье.
Самодельный гидравлический пресс
Устройство и функции гидравлического пресса
Гидравлический пресс – это такое оборудование, которое специально предназначено для обработки деталей и заготовок путем воздействия на них высоким давлением. Работает такой пресс за счет давления жидкости, воздействующей на элементы его конструкции.
Конструкция большинства гидравлических прессов предусматривает вертикальное расположение рабочего цилиндра, но есть и модели, в которых он расположен горизонтально. Различные модели прессов могут создавать рабочие усилия в диапазоне от нескольких десятков до нескольких тысяч тонн.
Вариант исполнения гидравлического пресса заводского производства
Принцип действия гидравлического пресса основан на законе Паскаля, известном нам из школьного курса физики. Конструкцию пресса составляют две рабочих камеры разного размера или, как их еще называют, цилиндры.
Принцип работы гидравлического пресса, если описать его несколькими словами, заключается в следующем.
В меньшем из его цилиндров создается высокое давление рабочей жидкости, которая по соединительному каналу подается в камеру большего диаметра и воздействует на поршень, соединенный с рабочим инструментом. Последний и оказывает давление на обрабатываемую деталь, которая располагается на жесткой опоре во избежание ее перемещения под его действием. В качестве рабочей жидкости во всех гидравлических прессах используются специальные масла.
Принцип работы гидравлического пресса
Наиболее широкое применение гидравлические прессы нашли при выполнении таких операций над металлическими деталями, как штамповка, ковка, правка, гибка, выдавливание труб и других профилей. Кроме того, при помощи таких прессов выполняется брикетирование, пакетирование и прессование различных материалов (как правило, для этих целей используется мини-пресс).
Устройство гидравлического пресса позволяет активно использовать его как на предприятиях по производству изделий из резины, пластика и древесины, так и в других областях.
Разнообразие функций и сфер применения этого оборудования определяют существование его различных модификаций. Например, в продаже можно найти пресс гидравлический настольный, мини-пресс, пресс гидравлический напольный, пресс гидравлический ручной, прессы с манометром и без.
Варианты использования в домашних условиях
Применение гидравлического пресса в гараже или домашней мастерской достаточно распространено. Использовать такой пресс, отличающийся небольшими размерами, можно как при ремонте автомобиля, так и для выполнения работ другого характера.
В частности, с помощью такого компактного оборудования можно выполнить выпрессовку подшипников или сайлентблоков, а также запрессовать на их место новые детали. Помимо автомобильного ремонта, гидравлический пресс можно использовать для гибки металлических деталей, создания требуемого давления при склеивании поверхностей, брикетирования отходов, для выдавливания масла и жидкости. Заводское оборудование подобного назначения (даже ручной гидравлический пресс) стоит немалых денег, и приобрести его могут не все желающие.
Между тем, можно сделать такой пресс своими руками, затратив средства только на приобретение необходимых материалов.
Использование пресса в качестве соковыжималки
Что примечательно, конструкция изготовленного дома гидравлического пресса сразу может быть адаптирована для решения определенной задачи с конкретной деталью или заготовкой. Сделанный своими руками пресс не займет много места, для его размещения будет достаточно выделить немного места в мастерской или гараже. Подробная инструкция о том, как сделать гидравлический пресс, приведена ниже. В конце статьи также размещено видео на эту тему.
Конструкция домашнего пресса
Гидравлические прессы, сделанные своими руками, не должны обладать слишком уж выдающимися техническими характеристиками, вполне достаточно, чтобы они развивали усилие в 10–20 тонн. Этот параметр самодельного гидравлического пресса зависит от того, какие действия вы соберетесь с его помощью совершать.
Один из самых распространенных и простых вариантов самодельного пресса
Существует ряд других параметров, которым соответствуют не только промышленные, но и самодельные бытовые гидравлические прессы:
- размеры;
- масса оборудования;
- ход поршня;
- наличие в конструкции пресса манометра;
- характеристики используемой станины.

В самодельных прессах давление в рабочем цилиндре обычно создается при помощи ручного гидравлического насоса, который может быть как встроенным в конструкцию такого устройства, так и расположенным отдельно от него. Такая конструктивная особенность зависит только от того, какое оборудование вы выберете для изготовления такого приспособления. Очень легко сделать своими руками гидравлический пресс, если взять за основу его конструкции домкрат бутылочного типа. У такого домкрата, что удобно, в конструкции уже предусмотрен встроенный ручной насос.
Гидравлический домкрат бутылочного типа отлично подходит для использования в сделанном своими руками гидропрессе
Прежде чем вы соберетесь приобретать подходящий домкрат для изготовления домашнего гидравлического приспособления, важно определиться, какие задачи вы будете решать с его помощью. От этого зависит как конструктивная схема ручного гидравлического пресса, так и усилие, которое он будет развивать. Следующее действие – это разработка чертежа гидравлического пресса, который вы собираетесь изготовить своими руками.
Можно, конечно, найти такой чертеж в Интернете и даже посмотреть фото и видео процесса изготовления пресса из гидравлического домкрата своими руками. Но в таком случае вы столкнетесь с необходимостью подгонять имеющиеся у вас приспособления под чужой самодельный пресс.
Ручной гидравлический насос
Разработка чертежа вашего будущего самодельного пресса начинается с того, что решается вопрос о том, по какой схеме он будет работать. Здесь есть всего два варианта.
- Домкрат будет расположен в нижней части пресса – на его станине – и давить будет вверх.
- Домкрат закрепляется в верхней части конструкции пресса и давит, соответственно, вниз.
Однако при выборе схемы работы самодельного пресса следует учитывать тот факт, что для основной части домкратов, выпускаемых современной промышленностью, единственно правильным является расположение давящим штоком вверх, и размещать их по-другому просто не допускается. Именно поэтому чаще всего за основу берется первая схема гидравлического пресса.
Второй вариант используют только в тех случаях, когда требуется изготовить своими руками гидравлическое оборудование для выпрессовывания подшипников или втулок из отдельных узлов и механизмов.
Вариант пресса с нижним расположением домкрата
Что следует учитывать при разработке чертежа самодельного пресса
Несущим элементом любого пресса, в том числе и самодельного, является станина, к разработке чертежа которой следует подойти максимально ответственно. Конструктивно станина представляет собой раму, внутри которой располагается домкрат с рабочим инструментом, оказывающим давление на деталь или заготовку.
Вид станины может значительно отличаться в зависимости от назначения пресса
Рама гидравлического пресса, сделанного своими руками, должна обладать высокой прочностью, так как она будет испытывать нагрузки сразу в двух направлениях. Домкрат, создающий определенное усилие, будет одновременно давить на верхнюю и нижнюю часть рамы, стремясь как бы разорвать ее.
Именно поэтому при расчете рамы и выборе материалов для ее изготовления ее прочность обеспечивают с запасом.
Нижнюю часть станины – ее основание – разрабатывают с учетом того, что она должна обеспечивать высокую устойчивость всей конструкции. Рассчитывая ширину внутреннего проема рамы самодельного пресса, учитывают как размеры деталей и заготовок, которые на нем будут обрабатываться, так и суммарные габариты всех составных элементов будущего пресса.
Еще один вариант станины с простейшей конструкцией основания для обеспечения устойчивости
При расчете высоты внутреннего проема рамы суммируют следующие параметры: высоту домкрата, желаемую величину свободного хода его штока, толщину рабочего органа и детали, которую необходимо обрабатывать. Если самодельный пресс изготавливается по первой схеме, то его конструкция выглядит следующим образом: домкрат устанавливается на нижнее основание, а деталь – в верхней части рамы; усилие от домкрата на деталь передается через его шток и подвижную рабочую платформу, двигающуюся по направляющим в боковых элементах рамы.
Для того чтобы обеспечить возврат штока в исходное состояние, используются две пружины, нижняя часть которых крепится к основанию, а верхняя – к подвижной рабочей платформе. Если вы решили сделать пресс из домкрата своими руками, то очень важно правильно рассчитать жесткость пружин, чтобы они эффективно выполняли все возложенные на них функции.
При реализации второй схемы на нижнее основание помещается деталь, а домкрат устанавливается на подвижную платформу, к которой также крепятся пружины, связывающие ее с верхней перекладиной рамы. Как в первом, так и во втором случае в месте контакта штока с подвижной платформой или верхней перекладиной рамы делается так называемое гнездо, в качестве которого можно использовать отрезок трубы соответствующего диаметра.
Невозможность регулировки высоты рабочей зоны упрощает конструкцию, но значительно ограничивает варианты использования пресса
Гидравлический пресс, сделанный своими руками, будет намного удобнее в эксплуатации, если предусмотреть в нем возможность регулировки свободного штока домкрата, что также влияет на допустимую высоту обрабатываемой детали.
Для этого можно сделать следующее.
- В верхней части внутреннего контура рамы располагают дополнительную плиту, которая может передвигаться по направляющим за счет винтового привода с штурвалом. Тем самым можно в достаточно широких пределах изменять просвет для расположения деталей внутри рамы.
- Можно изготовить съемный упор, в качестве которого чаще всего используют передвижную съемную платформу. Фиксировать положение такого упора внутри рамы можно при помощи болтовых соединений, для которых в раме с определенным шагом просверливаются отверстия. При этом шаг расположения таких отверстий по высоте не должен превышать величины свободного хода штока домкрата.
- Из сплошного куска металла или металлического профиля можно изготовить несколько сменных вставок-прокладок разной толщины.
- Можно также использовать сразу несколько вышеописанных способов одновременно.
Если вы выполняете чертеж, по которому своими руками сделаете пресс, обязательно указывайте не только габариты основных элементов такого приспособления и обрабатываемой детали, но и размеры швеллеров и другого металлопроката, из которого будет выполнена рама.
Инструменты и материалы
Если вы собираетесь своими руками сделать гидравлический пресс, то вам понадобятся следующие инструменты, расходные материалы и оборудование:
- сварочное оборудование;
- электроды;
- ножовка по металлу или болгарка (угловая шлифмашина).
Кроме того, вам потребуются следующие элементы, из которых будет состоять ваш будущий пресс для гаража: гидравлический домкрат, две пружины, которые будут оттягивать подвижную платформу в исходное состояние. Если вы найдете в своем гараже старый грибок моста, оставшийся после ремонта, то его можно использовать в качестве элемента оттягивающего приспособления для самодельных прессов с нижним расположением домкрата. В таком случае грибок надевают на шток домкрата, верхнюю часть пружин крепят непосредственно к нему, а нижнюю закрепляют на станине.
Вид и количество необходимых для постройки пресса материалов сильно зависит от выбранного варианта конструкции
Для того чтобы изготовить пресс из домкрата, вам понадобится следующий металлопрокат:
- швеллеры (не меньше 8 номера), прямоугольные или квадратные трубы (с размерами не меньше 40х40), уголки с шириной полок не меньше 50 мм;
- стальной лист толщиной не менее 8 мм, который будет использоваться в качестве надежного основания для всей конструкции;
- отрезок стальной полосы толщиной 10 мм – для изготовления направляющих и ребер жесткости, если они необходимы;
- отрезок трубы – для изготовления гнезд под головку штока домкрата.

Процесс изготовления
Когда чертеж вашего будущего гидравлического пресса готов, а все необходимые материалы, инструменты, оборудование и комплектующие в наличии, переходят непосредственно к изготовлению. Первое, что необходимо сделать, – это нарезать весь металл, руководствуясь размерами, указанными в чертеже.
Один из вариантов чертежа для изготовления пресса
Теперь следует сделать основание пресса, для чего сваривают между собой подготовленные квадратные трубы, а на сформированный из них прямоугольник наваривают стальную пластину. Затем сваривают между собой боковые и верхнюю часть рамы, тщательно следя за тем, чтобы полученная П-образная конструкция была ровной и имела строго прямые углы в соединениях. Теперь полученную конструкцию следует приварить к основанию и можно считать, что рама для вашего гидравлического пресса готова.
Следующий элемент, который вам необходимо будет сделать для пресса, – это подвижная платформа. Для ее изготовления можно использовать швеллер, квадратную или прямоугольную трубу.
В центральной части платформы приваривают отрезок трубы, который будет служить гнездом для головки штока домкрата. Для изготовления направляющих для рабочей платформы вам потребуются две стальные полосы, длина которых должна соответствовать ширине рамы пресса по ее внешнему контуру.
Вариант конструкции пресса с подвижной нижней платформой, фиксация которой производится болтами
Полосы крепят к боковым сторонам передвижной платформы при помощи болтовых соединений, предварительно заведя ее внутрь рамы. По такой же схеме изготавливается и съемный упор, но в его направляющих полосах просверливаются отверстия напротив стоек рамы для фиксации на нужной высоте. Завершает процесс изготовления гидравлического пресса своими руками установка оттягивающих пружин и самого домкрата. Удобен такой гидравлический пресс еще и тем, что вы всегда сможете извлечь из него домкрат (например, если вам необходимо использовать его для ремонта автомобиля).
Внешний вид готового самодельного пресса
Одна из довольно экономичных вариаций гидравлического пресса, сделанного собственными руками в своем гараже с использованием нехитрых приспособлений, сварки, домкрата и швеллеров.
Источник
Ручной гидравлический пресс | Все, что вам нужно знать
Ручной гидравлический пресс является основным продуктом в обрабатывающей промышленности благодаря своей универсальности и надежности. С 1940-х годов мы знаем о впечатляющей мощности цеховых прессов и их многочисленных преимуществах для тех, кто их использует. Как поставщик ручных гидравлических прессов, мы хотели дать вам лучшее понимание и поделиться основами.
Что такое ручной гидравлический пресс?
Ручной гидравлический пресс представляет собой устройство, состоящее из гидравлического цилиндра, обычно установленного в вертикальном положении. Этот гидравлический цилиндр содержит поршень, на который оказывает давление замкнутое давление масла, создаваемое гидравлическим насосом в гидравлической системе. Когда поршень продвигается вперед из-за гидравлического давления, он создает сжимающую силу на неподвижной опорной плите. Гидравлический пресс широко используется в металлообрабатывающей промышленности и везде, где требуются большие усилия.
Связано: Ручные прессы для мастерских | Преимущества
Преимущества гидравлического пресса
Существует множество вариантов использования гидравлического пресса, а также множество преимуществ использования прессов в мастерских.
Простая конструкция
Гидравлические прессы имеют простую конструкцию, что, в свою очередь, упрощает их эксплуатацию. Кроме того, гидравлический пресс будет эффективно работать в течение многих лет при правильном обслуживании. Поскольку движущихся частей не так много, техническое обслуживание минимально, что снижает затраты.
Большой объем
Гидравлический цеховой пресс при правильной настройке может быть чрезвычайно полезен для крупносерийного производства, повышая эффективность и сводя к минимуму количество отходов на вашем предприятии.
Сокращение затрат
Запасные части для ручных прессов в мастерских обычно не дороги, их легко найти и несложно отремонтировать.
Все компоненты легко доступны в RHTC Profi Press или в местных магазинах промышленных товаров.
Больше контроля
С ручными профессиональными прессами RHTC для мастерских возможность выполнять несколько операций вручную или пешком является огромным преимуществом. Это связано с тем, что вы можете устранить риск повреждения машины или инструментов, легко и точно контролируя положение поршня. Вы также можете контролировать давление пресса в соответствии с работой. Сила ползуна, сброс давления, направление и скорость могут быть отрегулированы в соответствии с требованиями работы.
Плавное прессование
Пресс для мастерских, в том числе ручной гидравлический пресс, обеспечивает плавное и равномерное давление на протяжении всего хода поршня. Это позволяет достичь точного тоннажа в любой точке хода поршня.
Универсальный
Возможности безграничны, когда дело доходит до использования ручных прессов для мастерских.
Это потому, что они могут выполнять огромное количество разнообразных работ в диапазоне тоннажа. Вот лишь несколько примеров:
- Запрессовка подшипника
- Пресс-тормоз
- Металлический складной
- Штамповка
- Удаление сломанного инструмента
- Ковка
- Клинч
- Молдинг
- Заглушка
- Глубокая вытяжка
- Формовка металла
Все эти процессы требуют точного контроля и повторяемости.
Поставщик ручных гидравлических прессов | Доверьтесь экспертам
Как видите, использование ручного гидравлического пресса в промышленных целях имеет множество преимуществ благодаря простоте рабочего механизма и использованию качественных компонентов. Однако у ручного гидравлического пресса Profi RHTC гораздо больше преимуществ.
Если вы хотите купить ручной гидравлический пресс или хотите получить дополнительную информацию о том или ином нашем оборудовании для обработки металлов, посетите наш веб-сайт сегодня.
Или напишите нам по электронной почте [email protected].
Если вы нашли этот блог полезным, вы можете прочитать наш предыдущий блог о наших гидравлических штамповочных прессах | Краткое руководство
Ремонт, техническое обслуживание, осмотры, сервисное обслуживание гидравлических прессов — Kiefer
Как мы ремонтируем и обслуживаем гидравлические прессы для производственных компаний в США
Kiefer Tool and Mould ремонтирует, восстанавливает и восстанавливает изношенные и сломанные гидравлические прессы, цилиндры и другие компоненты. Мы изготавливаем и заменяем детали гидравлических прессов на заказ, чтобы они снова работали. Мы используем большой механический цех для модернизации и ремонта гидравлических деталей, машин и оборудования для производственных фирм по всей территории Соединенных Штатов. Мы усердно работаем, уделяем внимание деталям и делаем все в кратчайшие сроки. Мы обслуживаем, восстанавливаем и ремонтируем сломанные или плохо работающие гидравлические прессы.
Когда гидравлические прессы выходят из строя, снижается производительность. Мы понимаем, что нашим клиентам нужны быстрые сроки, конкурентоспособные цены и отличное обслуживание клиентов. Мы специализируемся на устранении проблем и восстановлении многих аспектов гидравлического пресса, включая его; гидравлические цилиндры, колонны, опорные пластины и плиты, клинья и направляющие поверхности, коллекторы и клапаны, а также подузлы. Kiefer Tool продает, ремонтирует, восстанавливает и заменяет системы гидравлического привода, системы гидравлического управления, гидравлические электрические системы, гидравлические двигатели, клапаны PC, клапаны FC, клапаны постоянного тока и линейные гидравлические двигатели. Поскольку у Kiefer Tool есть оборудование для механической обработки и ремонта крупных компонентов гидравлических прессов, мы можем помочь в ремонте очень больших прессов, таких как 50 000-тонный пресс в Alcoa. Семейный бизнес Kiefer занимается подобными вещами уже 3 поколения. Ты можешь рассчитывать на нас.
Изготовление на заказ и обработка запасных частей для прессов
Многие действующие компании-производители прессов продают запасные части и ремонтные комплекты, которые, очевидно, используются для ремонта прессов. И наоборот, компании-производители прессов, которые обанкротились, а их много, конечно, больше не продают запасные части и комплекты для ремонта прессов. Kiefer Tool превосходно производит запасные части с точными техническими характеристиками для компаний, использующих прессы, которые больше не поддерживаются первоначальным OEM-производителем. Kiefer Tool также специализируется на производстве, механической обработке и ремонте компонентов штамповочных прессов, таких как опорные плиты (большие блоки металла), которые крепятся к станине штамповочного пресса. Для получения дополнительной информации о конструкции и функциях опорной плиты (или кровати) нажмите здесь.
Документация OEM используется для производства и установки запасных частей для гидравлических и механических прессов Precision проекции, чертежи САПР, расчеты веса, цифровые изображения, книги, патентные чертежи, чертежи в масштабе, PDF-файлы, 3D-модели, сборочные чертежи, электрические чертежи, схемы и даже эскизы для изготовления запасных частей для промышленных прессов.
Когда наши технические специалисты изготавливают и устанавливают запасные части для прессов, когда это возможно, они обращаются к технической документации, в которой подробно описывается, как работают конкретные модели гидравлических, ковочных и штамповочных прессов, чтобы определить выбор материалов, оптимальные процессы обработки, отделку, геометрические требования, допуски. спецификации и координатные размеры. Наши инженеры и механики также обращаются к оригинальным руководствам по ремонту/обслуживанию/эксплуатации пресса при восстановлении компонентов пресса, если таковые имеются. Для получения дополнительной информации о приобретении запасных частей для прессов и приобретении руководств по обслуживанию прессов щелкните здесь.
Свяжитесь с нами
Служба поддержки клиентов, получите предложение или отправьте чертеж CAD
- Позвоните (216) 251-0076 в службу поддержки клиентов
- Чтобы получить предложение, отправьте запрос цен, отправьте нам чертеж САПР или предоставьте нам заказ на поставку.
Нажмите здесь или отправьте электронное письмо по адресу [email protected]
.
Почему гидравлические прессы нуждаются в ремонте и восстановлении
Годы эксплуатации, интенсивная эксплуатация и неправильное обращение с машиной могут привести к трещинам, утечкам и различным другим неисправностям гидравлического пресса и его компонентов, что приведет к неисправности. Мы ремонтируем гидравлические прессы, потому что эти машины нуждаются в постоянном обслуживании. Если уплотнения поршня не заменяются своевременно, может потребоваться ремонт гидравлических или механических компонентов. Kiefer Tool восстанавливает гидравлические и механические прессы, потому что непрекращающаяся вибрация и удары в прессе могут привести к деформации деталей, а в некоторых случаях — к растрескиванию или поломке. Утечки масла и жидкости — еще одна причина, по которой детали выходят из строя. Гидравлические цилиндры могут выйти из строя из-за старения шатунных подшипников или ослабления поршневых штоков.
Втулки могут просто изнашиваться. Ремонт и регулярное техническое обслуживание происходит при эксплуатации гидравлических и механических прессов в промышленных условиях. Как производители, так и штамповщики полагаются на Keifer Tool, чтобы поддерживать производственное оборудование на своих предприятиях в рабочем состоянии с максимальной эффективностью. Хотя Kiefer Tool ремонтирует компоненты гидравлических машин и гидравлическое оборудование для производственных фирм по всей территории Соединенных Штатов, большая часть работ по ремонту гидравлических прессов и механической обработке крупных деталей, которые мы выполняем, предназначена для промышленных компаний в Огайо, Индиане, Мичигане, Нью-Йорке и Пенсильвании.
Решения распространенных проблем с ремонтом гидравлических прессов
Первый шаг в ремонте гидравлического пресса, который просто не работает или работает неоптимально, — обратиться к руководству по техническому обслуживанию гидравлического пресса или контрольному списку технического обслуживания.
Чтобы максимизировать время безотказной работы и надежность вашего гидравлического пресса, важно заботиться о прессе вашей компании, выполняя профилактические работы по техническому обслуживанию. Чтобы избежать проблем с гидравлическим прессом и обеспечить оптимальную работу пресса, обязательно соблюдайте график профилактического обслуживания (PM), предоставленный производителем гидравлического пресса, если этот документ доступен. Когда производственные компании используют гидравлические прессы для штамповки продаваемой ими продукции, они полагаются на своих операторов, чтобы их прессы работали. Простые задачи, такие как замена масла/жидкости или очистка радиатора, устранят незначительные проблемы с эффективностью гидравлического пресса. Если ваш оператор гидравлического пресса заметит утечку гидравлической жидкости, проверьте гидравлические линии и фитинги.
Если цилиндр гидравлического пресса или плунжер не втягивается или возвращается медленно, у вас возникла проблема. Когда гидравлический пресс просто перестает работать, проблема может быть связана с электричеством.
Если поршень дергается, возможно, потребуется прокачать гидравлическую систему. Если на вашем производственном предприятии возникают проблемы с гидравлическими цилиндрами двойного действия, вашей бригаде технического обслуживания необходимо выполнить некоторые действия по устранению неполадок. Если гидравлический пресс вашего завода не держит давление, механику вашей фирмы может потребоваться отрегулировать насос и клапаны.
Если ваша фирма использует пресс производства Dake, и он работает неправильно, попытайтесь диагностировать симптомы, чтобы определить причину проблемы, чтобы вы могли найти решение. Дейк опубликовал в Интернете таблицу, в которой перечислены наиболее распространенные проблемы, с которыми сталкиваются операторы гидравлических прессов, их неотъемлемые причины и возможные решения.
Если вам нужно узнать, как починить гидравлический пресс, позвоните по телефону 216-251-0076 и попросите поговорить со специалистом по ремонту и обслуживанию гидравлического пресса.
Если рама вашего гидравлического пресса треснула, Kiefer Tool может сварить ее, чтобы исправить. Тем не менее, вам, возможно, придется подумать о замене вашего гидравлического пресса, если рама треснула, если пресс больше не может создавать давление или пресс имеет постоянные проблемы с электричеством. Kiefer Tool строит и производит новые гидравлические прессы с нуля для производственных компаний в США. Чтобы узнать последние новости о ремонте гидравлических прессов, нажмите здесь.
Марки гидравлических прессов, которые мы ремонтируем
Мы ремонтируем и восстанавливаем средние и тяжелые гидравлические прессы, первоначально произведенные Mesta Machine Company, Pacific, HPM, Elmes, Nordberg, Dake, Bliss, Sutherland, Williams and White, Hannifin, Wabash , Bruno, Neff, Birch, Verson, Beckwood, SEYI, Stamtec, Lombard, Heim, Denison Hydraulics, Danly, Loewy Hydropress, Komatsu, Pheonix, Magnum, Press Master, Macrodyne, Minster, Prince, Aida, Standard Industrial, Schuler и Erie среди других производителей прессов.
Типы прессов, которые мы ремонтируем и восстанавливаем
Мы ремонтируем и обслуживаем следующие типы прессов – ковочные прессы, механические прессы, гидравлические прессы, вырубные прессы, гидравлические прессы с подвижным столом, промышленные прессы, силовые прессы, прессы для ламинирования, Прессы с С-образной рамой, настольные модельные прессы, прессы для прессования целлюлозы, прессы с Н-образной рамой, прессы для экструзии углерода, гидравлические прессы общего назначения, эксцентриковые прессы, трансферные прессы, прессы с подогревом, гидравлические прессы с подвижной рамой, прессы для штамповки, бывшие в употреблении и бывшие в собственности прессы , нестандартные прессы, прямые механические прессы, прессы для горячего тиснения, автомобильные пресс-формы и прессы для обрезки, 4-стоечные прессы, гидравлические прессы с восходящим действием, колонные прессы, 2-стоечные прессы, гидравлические прессы, плитные прессы, пневматические прессы, связующие- стержневые прессы, прессы для горячей штамповки, прессы для штамповки в закрытых штампах, постпрессы, вакуумные прессы, прессы для литья композитных материалов, гидравлические листогибочные прессы, прессы для гидроформовки, прессы для свободной штамповки, гидравлические прессы с пневматическим приводом, гидравлические ножницы, горизонтальные прессы, высокоскоростные прессы, стрейч-прессы формовочные машины, прессы для трансферного литья, прессы с прямым сервоприводом, прессы для холодной штамповки, прессы для цельной рамы, формовочные прессы, прессы для уплотнения порошка, прессы для высечки, гидравлические прессы двойного действия, прессы для формовки металла, прессы для формовки пластика, прессы для прессования, прессы для изготовления контейнеров , прессы с щелевой рамой, механические прессы, прессы с глубокой вытяжкой и ручные гидравлические прессы.
Техническое обслуживание гидравлических прессов, инспекции на месте, ремонт на месте, техническая поддержка и выездное обслуживание
Kiefer Tool обслуживает оборудование клиентов на месте с 1965 года. Инженеры и технические специалисты Kiefer Tool предоставлять услуги инспекции на месте производственным компаниям и OEM-производителям, которым требуется техническое обслуживание гидравлических прессов и услуги по аварийному ремонту. Ремонт в полевых условиях включает в себя модернизацию оборудования, поиск и устранение неисправностей, диагностику и комплексные услуги по восстановлению гидравлического пресса. Kiefer Tool также сотрудничает с инжиниринговыми компаниями, предоставляющими полный спектр услуг, такими как Hydrotech Engineering, для обеспечения управления гидравлическим прессом и усовершенствования электрической системы, модернизации гидравлического пресса, проектирования гидравлической системы, калибровки пресса и модернизации гидравлического пресса.
Если ваша компания рассматривает возможность утилизации гидравлического пресса поскольку компания-производитель, изготовившая пресс, больше не работает или не будет предоставлять услуги по ремонту, сначала обратитесь к инженеру Kiefer Tool. Возможно, мы сможем осмотреть ваш гидравлический пресс, чтобы определить, стоит ли его ремонтировать или восстанавливать. Мы проверяем крейцкопфы, вилки, стыковые пластины, опоры, сцепление/тормоза, уплотнения, коллекторы, станины, клапаны, маховики, домкраты, подвижные плиты, цилиндры со сварным корпусом, насосы, гидравлические трубы, гидроцилиндры, системы смазки, основания цилиндров, цапфы, механические приводы, подшипники, компоненты роботизированной автоматики, гидравлические фитинги, узлы, главные цилиндры, поршни и штоки, органы управления, электрические системы, гильзы цилиндров, фланцы, головки цилиндров, порты, штампы и пуансоны, цилиндры рулевых тяг, уплотнительные кольца и другое части гидравлического пресса.
Во время некоторых проектов по ремонту гидравлических прессов мы разбираем и транспортируем части гидравлического пресса и оборудование для обработки штампов, которые необходимо отремонтировать, обратно в наш механический цех.
После завершения ремонта мы собираем детали на месте у клиента. Наши инженеры и технические специалисты по выездному обслуживанию решают гидравлические и механические проблемы наших клиентов на месте для всех типов оборудования. Высококвалифицированные инженеры и технические специалисты Kiefer Tool контролируют ремонт и решают проблемы, которые не могут быть устранены в нашем механическом цехе. Наша команда может выполнить установку оборудования на месте и техническую поддержку для всех марок гидравлических прессов и гидравлических систем. Наши своевременные и эффективные услуги по ремонту гидравлических прессов сводят к минимуму дорогостоящее время простоя. Нажмите здесь, чтобы запланировать осмотр на месте или получение гидравлической или механической детали.
Ремонтные службы
Kiefer Tool ремонтирует и восстанавливает гидравлические прессы и производственное оборудование для компаний на Среднем Западе, в Средней Атлантике, на Северо-Востоке и в некоторых частях Юга Соединенных Штатов.
Ремонтируем оборудование для производственных компаний в Кливленде, Колумбусе, Янгстауне, Эри, Толедо, Акроне, Цинциннати, Рочестере (Нью-Йорк), Форт-Уэйне, Милуоки, Питтсбурге, Детройте, Индианаполисе, Чикаго, Буффало, Уилинге, Сент-Луисе, Атланте, Нэшвилле. , Ноксвилл, Лексингтон, Филадельфия, Нью-Йорк, Бостон, Роли, Омаха, Луисвилл, Олбани, Балтимор, Хантсвилл (Алабама), Фармингтон-Хиллз (Мичиган), Миннеаполис, Шарлотта, Норфолк (Вирджиния), Канзас-Сити, Гранд-Рапидс (Мичиган). ), Мемфис и Аллентаун (Пенсильвания).
Мы ремонтируем гидравлические прессы и производственное оборудование для промышленных операций в Огайо, Пенсильвании, Нью-Йорке, Западной Вирджинии, Индиане, Мичигане, Западной Вирджинии, Вирджинии, Коннектикуте, Род-Айленде, Массачусетсе, Вермонте, Иллинойсе, Нью-Гэмпшире, Мэне, Кентукки, Делавэр, Мэриленд, Нью-Джерси, Северная Каролина, Южная Каролина, Висконсин, Миннесота, Айова, Миссури, Северная Дакота, Южная Дакота, Небраска, Теннесси и Канзас. У нас также есть клиенты в северной Джорджии, Алабаме, Арканзасе и Миссисипи.
Из-за непомерно высокой стоимости доставки или транспортировки крупных гидравлических деталей и оборудования на большие расстояния Kiefer Tool редко обслуживает компаний, расположенных в западной части США или на юге. Из-за стоимости проезда инженеры Kiefer Tool и специалисты по выездному обслуживанию обычно не выезжают в западные или северо-западные штаты.
Наш опыт
Наш опытный персонал обладает знаниями и оборудованием для выполнения различных видов ремонта изношенных или поврежденных компонентов. Независимо от того, нуждается ли ваш пресс в новом компоненте или в незначительном ремонте, наши инженеры проведут осмотр и предложат наилучший возможный маршрут, чтобы своевременно вернуть вас в производство. Чтобы узнать об оборудовании, используемом для ремонта тяжелонагруженного промышленного гидравлического оборудования, нажмите здесь. Свяжитесь с нами, чтобы получить дополнительную информацию о поддержке или запланировать посещение инженером или техническим специалистом вашего производственного предприятия для проведения проверки и оценки вашего гидравлического пресса или компонентов.
Продажа запасных частей и запасных частей для гидравлических прессов
Kiefer Tool продает стандартные запасные части и запасные части для гидравлических, механических и штамповочных прессов. Мы изготавливаем на заказ запасные части для гидравлических прессов.
Скачать или приобрести Руководства по ремонту гидравлических прессов, руководства по эксплуатации, руководства по техническому обслуживанию, схемы и списки деталей0058
Руководство по эксплуатации гидравлического пресса Multipress
com)Дополнительная информация об услугах по механической обработке и ремонту крупных деталей
- Запрос ценового предложения на услуги по механической обработке крупных деталей
- Клиенты, которым требуются услуги по механической обработке крупных деталей
- Новости отрасли обработки крупных деталей
- Запланировать получение детали или выездную проверку на месте
- Экстренные (ускоренные критически важные работы) Услуги по механической обработке и ремонту крупных деталей
- Оборудование, используемое для обработки и изготовления крупных деталей и заготовок
- Точная, быстрая и доступная обработка крупных деталей
- Мощности крупных механических цехов в Огайо, Индиане, Мичигане, Нью-Йорке и Пенсильвании
- Запрос на услуги по механической обработке и токарной обработке крупных деталей и расчет стоимости
- Отправьте чертеж CAD, PDF или JPEG для получения предложения по обработке больших деталей
- Обработка больших диаметров, вертикальная расточная и токарная обработка
- Восстановление гидравлических прессов
- Изготовление и ремонт гидравлических цилиндров на заказ
- Гидравлическое и механическое производство, производство прессов и компонентов
- Гидравлический пресс, ремонт компонентов и оборудования
Получить предложение или отправить чертеж CAD
- Звоните (216) 251-0076, чтобы получить предложение
- Для отправки запроса предложений, чертежа САПР или заказа на поставку.

:
Именно поэтому при расчете рамы и выборе материалов для ее изготовления ее прочность обеспечивают с запасом.


Нажмите здесь или отправьте электронное письмо по адресу 