Π§Π΅ΡΡΠ΅ΠΆΠΈ ΠΊΡΠΎΠΌΠΊΠΎΠ³ΠΈΠ±Π°: Π²ΠΈΠ΄Ρ, ΠΈΠ·Π³ΠΎΡΠΎΠ²Π»Π΅Π½ΠΈΠ΅ ΡΠ²ΠΎΠΈΠΌΠΈ ΡΡΠΊΠ°ΠΌΠΈ, ΡΠ΅ΡΡΠ΅ΠΆΠΈ
Π‘ΠΎΠ΄Π΅ΡΠΆΠ°Π½ΠΈΠ΅
ΠΡΠΎΠΌΠΊΠΎΠ³ΠΈΠ± ΡΡΡΠ½ΠΎΠΉ Π΄Π»Ρ Π°Π²ΡΠΎΡΠ΅ΠΌΠΎΠ½ΡΠ° ΡΠ²ΠΎΠΈΠΌΠΈ ΡΡΠΊΠ°ΠΌΠΈ. Π§Π΅ΡΡΠ΅ΠΆΠΈ ΠΈ Π²ΠΈΠ΄Π΅ΠΎ
Π‘ΠΎΠ²Π΅ΡΡ ΡΡΡΠΎΠΈΡΠ΅Π»ΡΠΌ |
10.02.2018
ΠΡΠ±ΠΎΡΡΠΎΠ²ΠΊΠ° ΠΊΡΠΎΠΌΠΎΠΊ Π² Π»ΠΈΡΡΠΎΠ²ΡΡ Π΄Π΅ΡΠ°Π»ΡΡ Π°Π²ΡΠΎΠΌΠΎΠ±ΠΈΠ»Ρ ΠΏΡΠΈ Π΅Π³ΠΎ ΡΠ΅ΠΌΠΎΠ½ΡΠ΅ β Π½Π΅ΡΠ½Π΅ΡΠ³ΠΎΡΠΌΠΊΠ°Ρ ΠΎΠΏΠ΅ΡΠ°ΡΠΈΡ, ΠΏΠΎΡΡΠΎΠΌΡ Π΄Π°ΠΆΠ΅ ΠΏΡΠΈ Π·Π½Π°ΡΠΈΡΠ΅Π»ΡΠ½ΡΡ ΠΎΠ±ΡΡΠΌΠ°Ρ ΡΠ°Π±ΠΎΡ ΡΠ΅Π»Π΅ΡΠΎΠΎΠ±ΡΠ°Π·Π½ΠΎ ΠΎΠ±Π·Π°Π²Π΅ΡΡΠΈΡΡ Π½Π΅ ΠΏΡΠΈΠ²ΠΎΠ΄Π½ΡΠΌ, Π° ΡΡΡΠ½ΡΠΌ ΠΊΡΠΎΠΌΠΊΠΎΠ³ΠΈΠ±ΠΎΠΌ. Π’Π΅Ρ Π½ΠΎΠ»ΠΎΠ³ΠΈΡΠ΅ΡΠΊΠΎΠ΅ ΠΏΡΠ΅ΠΈΠΌΡΡΠ΅ΡΡΠ²ΠΎ ΡΠ°ΠΊΠΎΠ³ΠΎ ΠΏΡΠΎΡΠ΅ΡΡΠ° Π·Π°ΠΊΠ»ΡΡΠ°Π΅ΡΡΡ Π² ΡΠΎΠΌ, ΡΡΠΎ Π·Π°Π³ΠΎΡΠΎΠ²ΠΊΡ ΠΏΠΎΠ΄ Π΄Π°Π²Π»Π΅Π½ΠΈΠ΅ΠΌ ΠΌΠΎΠΆΠ½ΠΎ ΠΎΡΡΠ°Π²ΠΈΡΡ Π½Π°ΡΡΠΎΠ»ΡΠΊΠΎ, Π½Π°ΡΠΊΠΎΠ»ΡΠΊΠΎ ΡΡΠΎ ΡΡΠ΅Π±ΡΠ΅ΡΡΡ Π΄Π»Ρ ΠΏΡΠ΅ΠΎΠ΄ΠΎΠ»Π΅Π½ΠΈΡ ΡΠΏΡΡΠ³ΠΎΠΉ ΠΈΠ½Π΅ΡΡΠΈΠΈ ΠΌΠ°ΡΠ΅ΡΠΈΠ°Π»Π°.Β Π ΡΡΠ½ΡΠΌΠΈ ΠΊΡΠΎΠΌΠΊΠΎΠ³ΠΈΠ±Π°ΠΌΠΈ ΠΎΠ±ΡΡΠ½ΠΎ ΡΠΎΡΠΌΠΈΡΡΡΡ ΠΊΡΠΎΠΌΠΊΠΈ Π»ΠΈΡΡΠΎΠ²ΠΎΠ³ΠΎ ΠΌΠ΅ΡΠ°Π»Π»Π° ΡΠΎΠ»ΡΠΈΠ½ΠΎΠΉ Π΄ΠΎ 0,8β¦1,0 ΠΌΠΌ, ΠΏΡΠΈ Π²ΡΡΠΎΡΠ΅ Π±ΠΎΡΡΠ° Π΄ΠΎ 20 ΠΌΠΌ.
Π£ΡΡΡΠΎΠΉΡΡΠ²ΠΎ ΡΡΡΠ½ΡΡ ΠΊΡΠΎΠΌΠΊΠΎΠ³ΠΈΠ±ΠΎΠ²
ΠΡΠΎΠΌΠΊΠΎΠ³ΠΈΠ±Ρ, ΠΏΡΠΈ Π½Π΅ΠΊΠΎΡΠΎΡΠΎΠΌ Π²Π½Π΅ΡΠ½Π΅ΠΌ ΡΡ
ΠΎΠ΄ΡΡΠ²Π΅ Ρ Π»ΠΈΡΡΠΎΠ³ΠΈΠ±Π°ΠΌΠΈ, ΠΈΠΌΠ΅ΡΡ ΠΏΡΠΈΠ½ΡΠΈΠΏΠΈΠ°Π»ΡΠ½ΠΎΠ΅ ΠΎΡΠ»ΠΈΡΠΈΠ΅ β Π²ΡΡΠΎΡΠ° ΠΏΠΎΠ»ΠΊΠΈ ΠΎΠ±ΡΡΠ½ΠΎ Π½Π΅ ΠΏΡΠ΅Π²ΡΡΠ°Π΅Ρ 5β¦20% ΠΎΡ ΠΈΡ
Π΄Π»ΠΈΠ½Ρ. ΠΠ΅Π½ΡΡΠ΅Π΅ Π·Π½Π°ΡΠ΅Π½ΠΈΠ΅ ΡΠΎΠΎΡΠ²Π΅ΡΡΡΠ²ΡΠ΅Ρ ΠΎΡΠ±ΠΎΡΡΠΎΠ²ΠΊΠ΅ Π²Π½ΡΡΡΠ΅Π½Π½Π΅ΠΉ ΠΊΡΠΎΠΌΠΊΠΈ. ΠΡΠΈ Π³ΠΈΠ±ΠΊΠ΅ ΡΠ°ΠΊΠΎΠ³ΠΎ ΠΎΠ³ΡΠ°Π½ΠΈΡΠ΅Π½ΠΈΡ Π½Π΅Ρ, ΡΡΠΎ ΠΏΡΠ΅Π΄ΠΎΠΏΡΠ΅Π΄Π΅Π»ΡΠ΅Ρ Π·Π°ΠΌΠ΅ΡΠ½ΡΠ΅ ΠΊΠΎΠ½ΡΡΡΡΠΊΡΠΈΠ²Π½ΡΠ΅ ΠΈΠ·ΠΌΠ΅Π½Π΅Π½ΠΈΡ Π² ΡΡΠ°Π²Π½ΠΈΠ²Π°Π΅ΠΌΡΡ
ΡΡΡΡΠΎΠΉΡΡΠ²Π°Ρ
.
ΠΠ΅ΡΠ²ΠΎΠ΅ ΠΈΠ· Π½ΠΈΡ ΠΊΠ°ΡΠ°Π΅ΡΡΡ Π΄Π»ΠΈΠ½Ρ ΡΠ°Π±ΠΎΡΠ΅ΠΉ Π·ΠΎΠ½Ρ ΠΎΡΠ±ΠΎΡΡΠΎΠ²ΠΊΠΈ β Π΄Π»Ρ ΡΡΡΠ½ΡΡ ΠΊΡΠΎΠΌΠΊΠΎΠ³ΠΈΠ±ΠΎΠ² ΠΎΠ½Π° ΠΌΠΎΠΆΠ΅Ρ Π±ΡΡΡ ΠΈ Π½Π΅Π±ΠΎΠ»ΡΡΠΎΠΉ, ΠΏΠΎΡΠΊΠΎΠ»ΡΠΊΡ Π²ΡΡΠΎΡΠ° Π±ΠΎΡΡΠ° ΠΈ ΡΠ°Π΄ΠΈΡΡ Π·Π°ΠΊΡΡΠ³Π»Π΅Π½ΠΈΡ Π½Π΅ ΠΈΠ·ΠΌΠ΅Π½ΡΡΡΡΡ. Π‘ΠΎΠΎΡΠ²Π΅ΡΡΡΠ²Π΅Π½Π½ΠΎ Π²ΡΠΏΡΡΠΊΠ°ΡΡΡΡ ΠΏΠΎΡΡΠ°ΡΠΈΠ²Π½ΡΠ΅ ΡΡΡΠ½ΡΠ΅ ΠΊΡΠΎΠΌΠΊΠΎΠ³ΠΈΠ±Ρ, ΠΏΠ΅ΡΠ΅ΠΌΠ΅ΡΠ°Ρ ΠΊΠΎΡΠΎΡΡΠ΅ Π²Π΄ΠΎΠ»Ρ ΠΏΡΠ΅Π΄Π²Π°ΡΠΈΡΠ΅Π»ΡΠ½ΠΎ ΡΠ°Π·ΠΌΠ΅ΡΠ΅Π½Π½ΠΎΠΉ Π»ΠΈΠ½ΠΈΠΈ ΠΎΡΠ±ΠΎΡΡΠΎΠ²ΠΊΠΈ, ΠΏΠΎΠ»ΡΡΠ°Π΅ΠΌ ΡΡΠ΅Π±ΡΠ΅ΠΌΡΠΉ ΠΏΡΠΎΡΠΈΠ»Ρ.
ΠΡΠΈ Π±ΠΎΠ»ΡΡΠΎΠΉ ΠΏΡΠΎΡΡΠΆΡΠ½Π½ΠΎΡΡΠΈ Π·ΠΎΠ½Ρ ΠΊΡΠΎΠΌΠΊΠΎΠΎΠ±ΡΠ°Π·ΠΎΠ²Π°Π½ΠΈΡ ΠΏΡΠΎΡΠ΅ΡΡ ΡΠ»Π΅Π΄ΡΠ΅Ρ Π²ΡΠΏΠΎΠ»Π½ΡΡΡ ΠΎΠ΄Π½ΠΎΠ²ΡΠ΅ΠΌΠ΅Π½Π½ΠΎ. Π ΡΠ°ΠΊΠΈΡ ΡΠ»ΡΡΠ°ΡΡ ΠΊΡΠΎΠΌΠΊΠΎΠ³ΠΈΠ± Π±ΠΎΠ»Π΅Π΅ ΡΡ ΠΎΠΆ Ρ Π»ΠΈΡΡΠΎΠ³ΠΈΠ±ΠΎΠΌ, ΡΠ°Π·Π»ΠΈΡΠ°ΡΡΡ, ΠΏΠΎ ΡΡΡΠΈ, Π»ΠΈΡΡ ΡΠΏΠΎΡΠΎΠ±ΠΎΠΌ ΠΏΡΠΈΠΆΠΈΠΌΠ° Π·Π°Π³ΠΎΡΠΎΠ²ΠΊΠΈ.
Π Π°ΡΡΠΌΠΎΡΡΠΈΠΌ ΠΏΠ΅ΡΠ²ΡΠΉ Π²Π°ΡΠΈΠ°Π½Ρ ΡΡΡΡΠΎΠΉΡΡΠ²Π°. ΠΠΎΡΡΠ°ΡΠΈΠ²Π½ΡΠΉ ΡΡΡΠ½ΠΎΠΉ ΠΊΡΠΎΠΌΠΊΠΎΠ³ΠΈΠ± Π΄Π»Ρ ΠΏΠΎΡΡΠ΅ΠΏΠ΅Π½Π½ΠΎΠ³ΠΎ ΡΠΎΡΠΌΠΎΠΎΠ±ΡΠ°Π·ΠΎΠ²Π°Π½ΠΈΡ Π±ΠΎΡΡΠ° Π²ΠΊΠ»ΡΡΠ°Π΅Ρ Π² ΡΠ΅Π±Ρ:
- ΠΠ²Π΅ ΡΡΡΠΊΠΈ, ΠΏΡΠΈΡΡΠΌ ΠΏΠΎΠ΄Π²ΠΈΠΆΠ½ΠΎΠΉ ΠΌΠΎΠΆΠ΅Ρ Π±ΡΡΡ ΠΎΠ΄Π½Π° ΠΈΠ· Π½ΠΈΡ , Π»ΠΈΠ±ΠΎ ΠΎΠ±Π΅.
- Π ΡΡΠ°ΠΆΠ½ΡΡ ΡΡΠΈΠ»ΠΈΡΠ΅Π»ΡΠ½ΡΡ ΡΠΈΡΡΠ΅ΠΌΡ Π΄Π»Ρ ΡΠΎΠ·Π΄Π°Π½ΠΈΡ ΡΡΠ΅Π±ΡΠ΅ΠΌΠΎΠ³ΠΎ ΡΡΠΈΠ»ΠΈΡ ΠΎΡΠ±ΠΎΡΡΠΎΠ²ΠΊΠΈ.
- Π Π°Π±ΠΎΡΠΈΠ΅ Π³ΡΠ±ΠΊΠΈ Ρ ΠΏΡΠΎΡΠΈΠ»Π΅ΠΌ, ΠΊΠΎΡΠΎΡΡΠΉ ΡΠΎΠΎΡΠ²Π΅ΡΡΡΠ²ΡΠ΅Ρ ΡΠ°Π·ΠΌΠ΅ΡΠ°ΠΌ ΠΊΡΠΎΠΌΠΊΠΈ. ΠΠ±ΡΡΠ½ΠΎ ΠΏΡΠΎΠΈΠ·Π²ΠΎΠ΄ΠΈΡΠ΅Π»Ρ ΠΊΠΎΠΌΠΏΠ»Π΅ΠΊΡΡΠ΅Ρ ΡΡΡΠ½ΠΎΠΉ ΠΊΡΠΎΠΌΠΊΠΎΠ³ΠΈΠ± Π½Π°Π±ΠΎΡΠΎΠΌ ΠΈΠ· Π½Π΅ΡΠΊΠΎΠ»ΡΠΊΠΈΡ
Π³ΡΠ±ΠΎΠΊ ΠΈ Π½Π°ΠΈΠ±ΠΎΠ»Π΅Π΅ ΡΠ°ΡΡΠΎ Π²ΡΡΡΠ΅ΡΠ°ΡΡΠΈΠΌΠΈΡΡ Π½Π° ΠΏΡΠ°ΠΊΡΠΈΠΊΠ΅ Π²ΡΡΠΎΡΠΎΠΉ ΠΊΡΠΎΠΌΠΊΠΈ ΠΈ ΡΠ°Π΄ΠΈΡΡΠ° Π·Π°ΠΊΡΡΠ³Π»Π΅Π½ΠΈΡ ΠΏΡΠΈ ΠΏΠ΅ΡΠ΅Ρ
ΠΎΠ΄Π΅ ΠΎΡ ΠΊΡΠΎΠΌΠΊΠΈ ΠΊ ΠΎΡΠ½ΠΎΠ²Π½ΠΎΠΉ ΠΏΠ»ΠΎΡΠΊΠΎΡΡΠΈ.

- Π Π΅Π³ΡΠ»ΠΈΡΡΠ΅ΠΌΡΠΉ ΠΎΠ³ΡΠ°Π½ΠΈΡΠΈΡΠ΅Π»Ρ Ρ ΠΎΠ΄Π°: ΡΠ°ΡΠ΅ Π²ΡΠ΅Π³ΠΎ ΡΡΠΎ β Π²ΡΠ²ΠΈΠ½ΡΠΈΠ²Π°ΡΡΠΈΠΉΡΡ ΡΠ»ΠΈΡΠ΅Π²ΠΎΠΉ Π²ΠΈΠ½Ρ, ΡΠ½Π°Π±ΠΆΡΠ½Π½ΡΠΉ ΡΠΏΠΎΡΠ½ΠΎΠΉ ΡΠ΅Π·ΡΠ±ΠΎΠΉ.
ΠΠ»Ρ ΡΠ΄ΠΎΠ±ΡΡΠ²Π° ΡΠ°Π±ΠΎΡΡ ΡΡΡΠΊΠΈ ΠΏΡΠΎΡΠ΅Π·ΠΈΠ½Π΅Π½Ρ, ΡΡΠΎ ΠΈΡΠΊΠ»ΡΡΠ°Π΅Ρ ΡΠΊΠΎΠ»ΡΠΆΠ΅Π½ΠΈΠ΅ ΡΡΠΊΠΈ ΡΠ°Π±ΠΎΡΠ°ΡΡΠ΅Π³ΠΎ Π²ΠΎ Π²ΡΠ΅ΠΌΡ ΠΏΡΠΈΠ»ΠΎΠΆΠ΅Π½ΠΈΡ ΡΡΠΈΠ»ΠΈΡ.
ΠΡΠΎΡΠΎΠΉ Π²Π°ΡΠΈΠ°Π½Ρ ΠΏΠΎΡΡΠ°ΡΠΈΠ²Π½ΠΎΠ³ΠΎ ΡΡΡΠ½ΠΎΠ³ΠΎ ΠΊΡΠΎΠΌΠΊΠΎΠ³ΠΈΠ±Π° β ΡΠΎΠ»ΠΈΠΊΠΎΠ²ΡΠΉ, Π³Π΄Π΅ ΡΡΠ΅Π½ΠΈΠ΅ ΡΠΊΠΎΠ»ΡΠΆΠ΅Π½ΠΈΡ Π³ΡΠ±ΠΎΠΊ ΠΏΠΎ Π·Π°Π³ΠΎΡΠΎΠ²ΠΊΠ΅ Π·Π°ΠΌΠ΅Π½ΡΠ΅ΡΡΡ ΡΡΠ΅Π½ΠΈΠ΅ΠΌ ΠΊΠ°ΡΠ΅Π½ΠΈΡ ΠΏΡΠΈ Π²ΡΠ°ΡΠ΅Π½ΠΈΠΈ ΡΠ°Π±ΠΎΡΠΈΡ ΡΠΎΠ»ΠΈΠΊΠΎΠ². Π£ΡΠΈΠ»ΠΈΠ΅ ΡΠΎΡΠΌΠΎΠΎΠ±ΡΠ°Π·ΠΎΠ²Π°Π½ΠΈΡ ΠΏΡΠΈ ΡΡΠΎΠΌ ΡΡΡΠ΅ΡΡΠ²Π΅Π½Π½ΠΎ ΡΠ½ΠΈΠΆΠ°Π΅ΡΡΡ, Π½ΠΎ ΠΈΠ½ΡΡΡΡΠΌΠ΅Π½Ρ ΠΏΠΎΠ»ΡΡΠ°Π΅ΡΡΡ ΠΌΠ΅Π½Π΅Π΅ ΡΠ½ΠΈΠ²Π΅ΡΡΠ°Π»ΡΠ½ΡΠΌ, ΠΏΠΎΡΠΊΠΎΠ»ΡΠΊΡ ΠΏΠ°ΡΠ° ΡΠΎΠ»ΠΈΠΊΠΎΠ² Π»ΠΈΡΡ ΠΎΠ΄Π½Π°, ΠΈ ΠΈΠ·ΠΌΠ΅Π½ΠΈΡΡ ΠΏΠ°ΡΠ°ΠΌΠ΅ΡΡΡ ΠΊΡΠΎΠΌΠΊΠΎΠΎΠ±ΡΠ°Π·ΠΎΠ²Π°Π½ΠΈΡ Π½Π΅ ΠΏΠΎΠ»ΡΡΠΈΡΡΡ, ΠΊΡΠΎΠΌΠ΅ ΠΊΠ°ΠΊ Π·Π°ΠΌΠ΅Π½ΠΎΠΉ ΠΏΠ°ΡΡ ΡΠΎΠ»ΠΈΠΊΠΎΠ², ΡΡΠΎ Π΄ΠΎΠ²ΠΎΠ»ΡΠ½ΠΎ ΡΡΡΠ΄ΠΎΡΠΌΠΊΠΎ. ΠΡΠΎΠΌΠ΅ ΡΠΎΠ³ΠΎ, ΡΠΎΠ»ΠΈΠΊΠΎΠ²ΡΠΌΠΈ ΠΊΡΠΎΠΌΠΊΠΎΠ³ΠΈΠ±Π°ΠΌΠΈ Π² Π±ΠΎΠ»ΡΡΠΈΠ½ΡΡΠ²Π΅ ΡΠ»ΡΡΠ°Π΅Π² Π½Π΅ ΡΠ΄Π°ΡΡΡΡ Π²ΡΠΏΠΎΠ»Π½ΠΈΡΡ Π²Π½ΡΡΡΠ΅Π½Π½ΡΡ ΠΎΡΠ±ΠΎΡΡΠΎΠ²ΠΊΡ ΠΏΠΎ ΠΌΠ°Π»ΡΠΌ ΡΠ°Π΄ΠΈΡΡΠ°ΠΌ.
ΠΡΠ½ΠΎΠ²Π½ΡΠΌ Π½Π΅Π΄ΠΎΡΡΠ°ΡΠΊΠΎΠΌ ΡΡΡΠ½ΡΡ
ΠΏΠΎΡΡΠ°ΡΠΈΠ²Π½ΡΡ
ΠΊΡΠΎΠΌΠΊΠΎΠ³ΠΈΠ±ΠΎΠ² ΡΠ²Π»ΡΠ΅ΡΡΡ ΠΈΡ
ΠΌΠ°Π»Π°Ρ ΡΠΎΡΠ½ΠΎΡΡΡ: ΠΏΡΠΈ ΠΏΠ΅ΡΠ΅Π΄Π²ΠΈΠΆΠ΅Π½ΠΈΠΈ ΠΈΠ½ΡΡΡΡΠΌΠ΅Π½ΡΠ° Π²Π΄ΠΎΠ»Ρ Π½Π΅ΡΠΎΠ²Π½ΠΎΠΉ Π»ΠΈΠ½ΠΈΠΈ Π±ΡΠ΄ΡΡΠ΅ΠΉ ΠΊΡΠΎΠΌΠΊΠΈ ΠΏΠΎΡΡΠ΅ΠΏΠ΅Π½Π½ΠΎ Π½Π°ΠΊΠ°ΠΏΠ»ΠΈΠ²Π°Π΅ΡΡΡ ΠΏΠΎΠ³ΡΠ΅ΡΠ½ΠΎΡΡΡ, ΠΊΠΎΡΠΎΡΠ°Ρ Π² ΠΊΠΎΠ½ΡΠ΅ ΠΎΠΏΠ΅ΡΠ°ΡΠΈΠΈ ΠΌΠΎΠΆΠ΅Ρ Π΄ΠΎΡΡΠΈΠ³Π°ΡΡ ΠΌΠΈΠ»Π»ΠΈΠΌΠ΅ΡΡΠ° ΠΈ Π±ΠΎΠ»Π΅Π΅.
ΠΡΠΈ ΠΊΡΠ·ΠΎΠ²Π½ΠΎΠΌ Π°Π²ΡΠΎΡΠ΅ΠΌΠΎΠ½ΡΠ΅ ΡΡΠΎ Π½Π΅Π΄ΠΎΠΏΡΡΡΠΈΠΌΠΎ, ΠΏΠΎΡΡΠΎΠΌΡ ΠΊΠ°ΡΠ΅ΡΡΠ²ΠΎ ΡΠΎΡΠΌΠΈΡΠΎΠ²Π°Π½ΠΈΡ Π±ΠΎΡΡΠ° ΠΎΠΏΡΠ΅Π΄Π΅Π»ΡΠ΅ΡΡΡ ΡΠΎΠ»ΡΠΊΠΎ ΠΎΠΏΡΡΠΎΠΌ ΠΈΡΠΏΠΎΠ»Π½ΠΈΡΠ΅Π»Ρ.
Π ΡΡΠ½ΠΎΠΉ ΠΊΡΠΎΠΌΠΊΠΎΠ³ΠΈΠ± ΡΠ²ΠΎΠΈΠΌΠΈ ΡΡΠΊΠ°ΠΌΠΈ
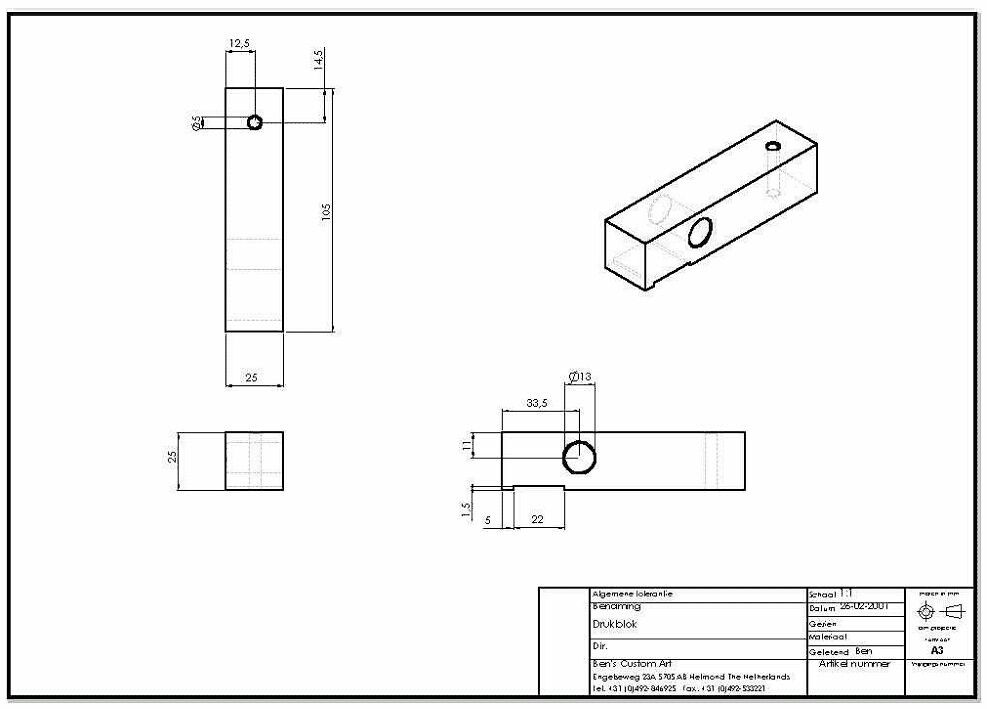
ΠΡΡΠ°Π½ΠΎΠ²ΠΈΠΌΡΡ Π½Π° Π²Π°ΡΠΈΠ°Π½ΡΠ΅ ΠΏΡΠΎΠ΅ΠΊΡΠΈΡΠΎΠ²Π°Π½ΠΈΡ ΠΈ ΠΈΠ·Π³ΠΎΡΠΎΠ²Π»Π΅Π½ΠΈΡ ΡΡΡΠ½ΠΎΠ³ΠΎ ΠΊΡΠΎΠΌΠΊΠΎΠ³ΠΈΠ±Π° Ρ ΠΎΠ΄Π½ΠΎΠ²ΡΠ΅ΠΌΠ΅Π½Π½ΡΠΌ ΠΏΠΎΠ»ΡΡΠ΅Π½ΠΈΠ΅ΠΌ Π²Π½ΡΡΡΠ΅Π½Π½Π΅Π³ΠΎ ΠΈΠ»ΠΈ Π²Π½Π΅ΡΠ½Π΅Π³ΠΎ ΠΊΠΎΠ½ΡΡΡΠ° ΠΏΠΎ Π²ΡΠ΅ΠΉ Π΄Π»ΠΈΠ½Π΅ ΠΏΡΠ΅Π΄Π²Π°ΡΠΈΡΠ΅Π»ΡΠ½ΠΎ ΡΠ°Π·ΠΌΠ΅ΡΠ΅Π½Π½ΠΎΠΉ Π·Π°Π³ΠΎΡΠΎΠ²ΠΊΠΈ. ΠΠ±ΡΠΈΠΉ Π²ΠΈΠ΄ ΠΏΡΠΈΡΠΏΠΎΡΠΎΠ±Π»Π΅Π½ΠΈΡ ΠΏΡΠ΅Π΄ΡΡΠ°Π²Π»Π΅Π½ Π½Π° ΡΠΈΡΡΠ½ΠΊΠ΅. Π’Π°ΠΊΠΎΠΉ ΡΡΡΠ½ΠΎΠΉ ΠΊΡΠΎΠΌΠΊΠΎΠ³ΠΈΠ± ΠΌΠΎΠΆΠ½ΠΎ ΠΈΡΠΏΠΎΠ»ΡΠ·ΠΎΠ²Π°ΡΡ Π½Π΅ ΡΠΎΠ»ΡΠΊΠΎ Π² Π°Π²ΡΠΎΡΠ΅ΡΠ²ΠΈΡΠ΅, Π½ΠΎ ΡΠ°ΠΊΠΆΠ΅ ΠΏΡΠΈ ΠΏΡΠΎΠΈΠ·Π²ΠΎΠ΄ΡΡΠ²Π΅ ΠΊΡΠΎΠ²Π΅Π»ΡΠ½ΡΡ ΡΠ°Π±ΠΎΡ, ΠΈΠ·Π³ΠΎΡΠΎΠ²Π»Π΅Π½ΠΈΠΈ ΠΆΠ΅ΡΡΡΠ½ΡΡ Π²Π΅Π½ΡΠΈΠ»ΡΡΠΈΠΎΠ½Π½ΡΡ ΠΊΠΎΡΠΎΠ±ΠΎΠ² ΠΈ ΠΏΡΠΎΡΠΈΡ ΠΏΡΠΎΡΡΡΠ°Π½ΡΡΠ²Π΅Π½Π½ΡΡ ΠΈΠ·Π΄Π΅Π»ΠΈΠΉ ΠΈΠ· Π»ΠΈΡΡΠΎΠ²ΠΎΠ³ΠΎ ΠΌΠ΅ΡΠ°Π»Π»Π°.
Π Π°Π·ΠΌΠ΅ΡΡ ΡΠ°ΠΌΠΎΠ΄Π΅Π»ΡΠ½ΠΎΠ³ΠΎ ΠΊΡΠΎΠΌΠΊΠΎΠ³ΠΈΠ±Π° Ρ ΡΡΡΠ½ΡΠΌ ΠΏΡΠΈΠ²ΠΎΠ΄ΠΎΠΌ ΠΎΠΏΡΠ΅Π΄Π΅Π»ΡΡΡΡΡ Π² Π·Π°Π²ΠΈΡΠΈΠΌΠΎΡΡΠΈ ΠΎΡ Π½Π°ΠΈΠ±ΠΎΠ»ΡΡΠΈΡ
ΡΠ°Π·ΠΌΠ΅ΡΠΎΠ² Π·Π°Π³ΠΎΡΠΎΠ²ΠΊΠΈ, Π΄Π»Ρ ΠΊΠΎΡΠΎΡΠΎΠΉ ΠΏΡΠΎΠΈΠ·Π²ΠΎΠ΄ΠΈΡΡΡ ΠΎΡΠ±ΠΎΡΡΠΎΠ²ΠΊΠ°.
ΠΠ°ΠΏΡΠΈΠΌΠ΅Ρ, ΠΏΡΠΈ Π±ΠΎΠ»ΡΡΠΈΡ
Π² ΠΏΠ»Π°Π½Π΅ ΠΈΠ·Π΄Π΅Π»ΠΈΡΡ
ΡΠ΅Π»Π΅ΡΠΎΠΎΠ±ΡΠ°Π·Π½Π΅Π΅ ΡΠΎΠΎΡΡΠ΄ΠΈΡΡ ΡΡΠΎΠ» ΠΈΠ· Π΄Π΅ΡΠ΅Π²Π° ΠΈΠ»ΠΈ ΠΌΠ½ΠΎΠ³ΠΎΡΠ»ΠΎΠΉΠ½ΠΎΠΉ ΡΠ°Π½Π΅ΡΡ, Π½Π° ΠΊΠΎΡΠΎΡΠΎΠΌ ΠΈ ΠΊΡΠ΅ΠΏΠΈΡΡ ΠΊΡΠΎΠΌΠΊΠΎΠ³ΠΈΠ±, Π² ΠΎΡΡΠ°Π»ΡΠ½ΡΡ
ΡΠ»ΡΡΠ°ΡΡ
ΠΊΠΎΠ½ΡΡΡΡΠΊΡΠΈΡ ΡΠ²Π°ΡΠΈΠ²Π°Π΅ΡΡΡ ΠΈΠ· ΡΠ²Π΅Π»Π»Π΅ΡΠΎΠ² ΠΈ Π»ΠΈΡΡΠΎΠ²ΠΎΠ³ΠΎ ΠΌΠ΅ΡΠ°Π»Π»Π°.
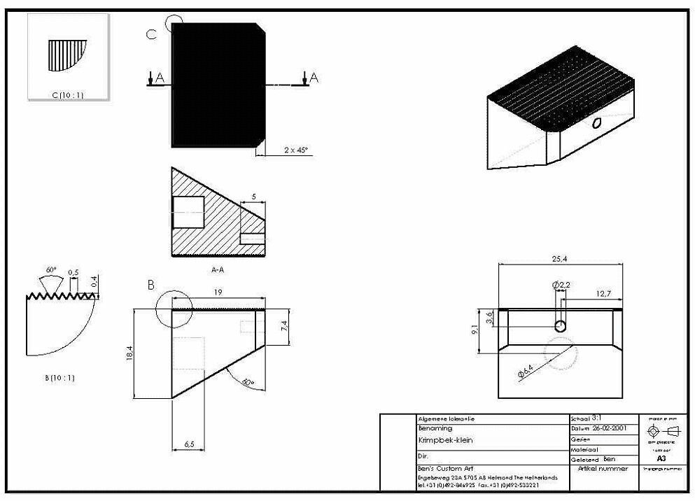
ΠΠΎΠ½ΡΡΡΡΠΊΡΠΈΡ ΡΡΡΠ½ΠΎΠ³ΠΎ ΠΊΡΠΎΠΌΠΊΠΎΠ³ΠΈΠ±Π° ΡΠ°ΡΡΡΠΈΡΠ°Π½Π° Π½Π° ΠΏΠΎΡΠ»Π΅Π΄ΠΎΠ²Π°ΡΠ΅Π»ΡΠ½ΠΎΠ΅ Π²ΡΠΏΠΎΠ»Π½Π΅Π½ΠΈΠ΅ Π΄Π²ΡΡ ΠΏΠ΅ΡΠ΅Ρ ΠΎΠ΄ΠΎΠ²:
- ΠΏΡΠΈΠΆΠΈΠΌΠ° Π·Π°Π³ΠΎΡΠΎΠ²ΠΊΠΈ ΠΏΡΠΈ ΠΏΠΎΠΌΠΎΡΠΈ ΡΡΡΡΠ±ΡΠΈΠ½Ρ ΠΈ Π½ΠΈΠΆΠ½Π΅Π³ΠΎ ΠΏΡΠΈΠΆΠΈΠΌΠ°;
- ΠΎΡΠ±ΠΎΡΡΠΎΠ²ΠΊΠΈ ΠΏΠΎ Π·Π°Π΄Π°Π½Π½ΠΎΠΌΡ ΠΊΠΎΠ½ΡΡΡΡ ΠΏΠΎΠ²ΠΎΡΠΎΡΠΎΠΌ ΡΡΠΊΠΎΡΡΠΊΠΈ Ρ ΡΠ°ΡΠΏΠΎΠ»ΠΎΠΆΠ΅Π½Π½ΡΠΌ Π½Π° Π½Π΅ΠΉ ΠΏΡΠ°Π½ΡΠΎΠ½ΠΎΠΌ.
ΠΠ±ΡΡΠ½ΠΎ ΡΠ΅ΠΊΠΎΠΌΠ΅Π½Π΄ΡΡΡ Π²ΡΠΏΠΎΠ»Π½ΡΡΡ ΡΠ²Π°ΡΠ½ΠΎΠΉ Π²Π°ΡΠΈΠ°Π½Ρ ΡΠ°ΠΊΠΎΠ³ΠΎ ΡΠ·Π»Π°, Π½ΠΎ ΡΡΠΎ Π½Π΅ΡΠ΅Π»Π΅ΡΠΎΠΎΠ±ΡΠ°Π·Π½ΠΎ: ΠΏΠ°ΡΠ°ΠΌΠ΅ΡΡΡ ΠΊΡΠΈΠ²ΠΎΠΉ ΠΎΡΠ±ΠΎΡΡΠΎΠ²ΠΊΠΈ ΠΌΠΎΠ³ΡΡ ΠΈΠ·ΠΌΠ΅Π½ΠΈΡΡΡΡ, Π° ΠΏΡΠ°Π½ΡΠΎΠ½ ΡΠΌΠ΅Π½ΠΈΡΡ ΡΠΆΠ΅ Π½Π΅Π²ΠΎΠ·ΠΌΠΎΠΆΠ½ΠΎ. ΠΠΎΡΡΠΎΠΌΡ, ΡΡΠΈΡΡΠ²Π°Ρ Π½Π΅Π±ΠΎΠ»ΡΡΠΈΠ΅ ΡΡΠΈΠ»ΠΈΡ, Π²ΠΎΠ·Π½ΠΈΠΊΠ°ΡΡΠΈΠ΅ ΠΏΡΠΈ Π΄Π΅ΡΠΎΡΠΌΠΈΡΠΎΠ²Π°Π½ΠΈΠΈ Π»ΡΡΡΠ΅ ΠΈΠ·Π³ΠΎΡΠΎΠ²ΠΈΡΡ ΡΠ±ΠΎΡΠ½ΠΎ-ΡΠ°Π·Π±ΠΎΡΠ½ΡΠΉ ΠΏΡΠ°Π½ΡΠΎΠ½, ΠΊΠΎΡΠΎΡΡΠΉ ΠΏΡΠ΅Π΄ΡΡΠ°Π²Π»ΡΠ΅Ρ ΡΠΎΠ±ΠΎΠΉ ΡΠΎΠ²ΠΎΠΊΡΠΏΠ½ΠΎΡΡΡ ΠΎΡΠ΄Π΅Π»ΡΠ½ΡΡ ΠΌΠΎΠ΄ΡΠ»Π΅ΠΉ, Ρ Π°ΡΠ°ΠΊΡΠ΅ΡΠΈΠ·ΡΡΡΠΈΡ ΡΡ ΡΠ²ΠΎΠΈΠΌ ΡΠ°Π΄ΠΈΡΡΠΎΠΌ Π·Π°ΠΊΡΡΠ³Π»Π΅Π½ΠΈΡ ΠΈ Π²ΡΡΠΎΡΠΎΠΉ ΠΊΡΠΎΠΌΠΊΠΈ.
ΠΡΠ΅ΠΏΠ»Π΅Π½ΠΈΠ΅ ΡΠ°ΠΊΠΈΡ
ΠΏΡΠ°Π½ΡΠΎΠ½ΠΎΠ² Π½Π° Π±Π°Π»ΠΊΠ΅ Π²ΡΠΏΠΎΠ»Π½ΡΠ΅ΡΡΡ ΠΏΡΠΈ ΠΏΠΎΠΌΠΎΡΠΈ Π±ΠΎΠ»ΡΠΎΠ² (ΡΠ°Π·ΡΠΌΠ΅Π΅ΡΡΡ, ΡΡΠΎ Π²ΡΠ΅ ΠΏΠΎΡΠ°Π΄ΠΎΡΠ½ΡΠ΅ ΠΌΠ΅ΡΡΠ° Π΄ΠΎΠ»ΠΆΠ½Ρ Π±ΡΡΡ ΡΠΏΡΠΎΠ΅ΠΊΡΠΈΡΠΎΠ²Π°Π½Ρ ΠΈ Π²ΡΠΏΠΎΠ»Π½Π΅Π½Ρ Ρ ΠΌΠ°ΠΊΡΠΈΠΌΠ°Π»ΡΠ½ΠΎ Π²ΠΎΠ·ΠΌΠΎΠΆΠ½ΠΎΠΉ ΡΠΎΡΠ½ΠΎΡΡΡΡ).
Π‘Π°ΠΌΠΎ ΠΊΡΠΎΠΌΠΊΠΎΠΎΠ±ΡΠ°Π·ΠΎΠ²Π°Π½ΠΈΠ΅ Π²ΡΠΏΠΎΠ»Π½ΡΠ΅ΡΡΡ ΠΏΠΎΡΠ»Π΅ ΡΠΎΠ³ΠΎ, ΠΊΠ°ΠΊ Π·Π°Π³ΠΎΡΠΎΠ²ΠΊΠ° Π½Π°Π΄ΡΠΆΠ½ΠΎ Π·Π°ΡΠΈΠΊΡΠΈΡΠΎΠ²Π°Π½Π° ΠΌΠ΅ΠΆΠ΄Ρ Π²Π΅ΡΡ Π½ΠΈΠΌ ΠΈ Π½ΠΈΠΆΠ½ΠΈΠΌ ΠΏΡΠΈΠΆΠΈΠΌΠ°ΠΌΠΈ (ΠΏΠΎΡΠ»Π΅Π΄Π½ΠΈΠΉ ΠΎΠ±Π΅ΡΠΏΠ΅ΡΠΈΠ²Π°Π΅Ρ ΠΏΠ»Π°Π²Π½ΠΎΡΡΡ ΠΏΡΠΈΠΆΠΈΠΌΠ° Π·Π° ΡΡΠ΅Ρ ΠΏΡΡΠΆΠΈΠ½Ρ, Π½Π°ΡΠ°ΠΆΠ΅Π½Π½ΠΎΠΉ Π½Π° ΡΡΠ΅ΡΠΆΠ΅Π½Ρ Π² Π²Π΅ΡΡ Π½Π΅ΠΉ ΠΏΠ»ΠΎΡΠΊΠΎΡΡΠΈ). Π‘ΠΎΠ²ΠΌΠ΅ΡΠ΅Π½ΠΈΠ΅ Π΄Π²ΡΡ ΠΏΠΎΠ»ΠΎΠ²ΠΈΠ½ΠΎΠΊ ΠΎΡΠ±ΠΎΡΡΠΎΠ²ΠΎΡΠ½ΠΎΠ³ΠΎ ΡΡΠ°ΠΌΠΏΠ° ΠΏΡΠΎΠΈΠ·Π²ΠΎΠ΄ΠΈΡΡΡ ΠΏΡΠΈ ΠΏΠ΅ΡΠ΅ΠΌΠ΅ΡΠ΅Π½ΠΈΠΈ ΠΎΠΏΠΎΡΠ½ΠΎΠ³ΠΎ ΠΊΡΠΎΠ½ΡΡΠ΅ΠΉΠ½Π° ΠΏΠΎ ΡΠΎΠΏΡΡΠ³Π°Π΅ΠΌΠΎΠΉ ΠΏΠΎΠ²Π΅ΡΡ Π½ΠΎΡΡΠΈ ΠΎΠ³ΡΠ°Π½ΠΈΡΠΈΡΠ΅Π»Π΅ΠΉ, ΠΊΠΎΡΠΎΡΡΠ΅ Π²ΡΠΏΠΎΠ»Π½ΡΡΡ ΡΠΎΠ»Ρ Π½Π°ΠΏΡΠ°Π²Π»ΡΡΡΠΈΡ ΡΠ»Π΅ΠΌΠ΅Π½ΡΠΎΠ² ΡΡΡΠ½ΠΎΠ³ΠΎ ΠΊΡΠΎΠΌΠΊΠΎΠ³ΠΈΠ±Π°.
ΠΠ·ΠΌΠ΅Π½ΡΡ ΠΊΠΎΠ½ΡΠΈΠ³ΡΡΠ°ΡΠΈΡ ΠΏΡΠ°Π½ΡΠΎΠ½Π½ΡΡ ΠΌΠΎΠ΄ΡΠ»Π΅ΠΉ, ΠΌΠΎΠΆΠ½ΠΎ Π²ΡΠΏΠΎΠ»Π½ΡΡΡ ΠΎΡΠ±ΠΎΡΡΠΎΠ²ΠΊΡ Π½Π΅ ΡΠΎΠ»ΡΠΊΠΎ ΠΏΠΎΠ΄ ΠΏΡΡΠΌΡΠΌ, Π½ΠΎ ΠΈ ΠΏΠΎΠ΄ Π»ΡΠ±ΡΠΌ Π΄ΡΡΠ³ΠΈΠΌ ΡΠ³Π»ΠΎΠΌ β Π²ΠΏΠ»ΠΎΡΡ Π΄ΠΎ 110β¦120ΒΊΒ (Π΄Π»Ρ ΡΡΠΎΠ³ΠΎ Π΄ΠΎΡΡΠ°ΡΠΎΡΠ½ΠΎ Π»ΠΈΡΡ ΠΏΡΠ΅Π΄ΡΡΠΌΠΎΡΡΠ΅ΡΡ Π½Π΅Π±ΠΎΠ»ΡΡΠΎΠΉ ΡΠΊΠΎΡ Π½Π° ΠΎΠ³ΡΠ°Π½ΠΈΡΠΈΡΠ΅Π»Π΅, ΠΊΠΎΡΠΎΡΡΠΉ Π²ΠΈΠ΄Π΅Π½ Π½Π° ΡΠΈΡΡΠ½ΠΊΠ΅).
ΠΠΎΠΆ-ΠΌΡΠ»ΡΡΠΈΡΡΠ».
ΠΠ±Π·ΠΎΡ ΡΠ°ΠΌΠΎΠ³ΠΎ ΡΠ½ΠΈΠ²Π΅ΡΡΠ°Π»ΡΠ½ΠΎΠ³ΠΎ ΠΈΠ½ΡΡΡΡΠΌΠ΅Π½ΡΠ°
ΠΠ°Π·ΠΎΠ²ΡΠΉ Π³Π΅Π½Π΅ΡΠ°ΡΠΎΡ Π΄Π»Ρ Π΄ΠΎΠΌΠ° Ρ Π°Π²ΡΠΎΠ·Π°ΠΏΡΡΠΊΠΎΠΌ. Π¦Π΅Π½Π° ΠΈ ΡΡΡΡΠΎΠΉΡΡΠ²ΠΎ
ΡΠ²ΠΎΠΈΠΌΠΈ ΡΡΠΊΠ°ΠΌΠΈ, ΠΊΠ°ΠΊ ΡΠ΄Π΅Π»Π°ΡΡ, ΡΠ΅ΡΡΠ΅ΠΆΠΈ ΠΊΡΠΎΠΌΠΊΠΎΠ³ΠΈΠ±Π°
Π‘ΠΎΠ΄Π΅ΡΠΆΠ°Π½ΠΈΠ΅
- 1 ΠΠ°ΠΊΠΈΠ΅ Π±ΡΠ²Π°ΡΡ Π³ΠΈΠ±ΠΎΡΠ½ΠΈΠΊΠΈ
- 2 ΠΠ·Π³ΠΎΡΠΎΠ²Π»Π΅Π½ΠΈΠ΅ ΡΡΡΠ½ΠΎΠ³ΠΎ Π»ΠΈΡΡΠΎΠ³ΠΈΠ±Π°
- 3 ΠΡΠΎΠ±Π΅Π½Π½ΠΎΡΡΠΈ ΡΠΎΠ»ΠΈΠΊΠΎΠ²ΠΎΠ³ΠΎ ΡΡΠ°Π½ΠΊΠ°
- 4 ΠΠ΅ΡΡ ΠΏΡΠ΅Π΄ΠΎΡΡΠΎΡΠΎΠΆΠ½ΠΎΡΡΠΈ ΠΏΡΠΈ ΡΠ°Π±ΠΎΡΠ΅
ΠΠΈΡΡΠΎΠ²ΠΎΠΉ ΠΌΠ΅ΡΠ°Π»Π» ΠΈ ΠΆΠ΅ΡΡΡ ΠΏΠΎΠ»ΡΠ·ΡΡΡΡΡ Π±ΠΎΠ»ΡΡΠΈΠΌ ΡΠΏΡΠΎΡΠΎΠΌ, Π²Π΅Π΄Ρ ΠΈΠ· Π½ΠΈΡ ΠΏΡΠΎΠΈΠ·Π²ΠΎΠ΄ΡΡ ΠΌΠ½ΠΎΠΆΠ΅ΡΡΠ²ΠΎ ΠΈΠ·Π΄Π΅Π»ΠΈΠΉ: ΠΌΠ΅ΡΠ°Π»Π»ΠΎΡΠ΅ΡΠ΅ΠΏΠΈΡΠ°, ΡΠ°Π·Π½ΠΎΠΎΠ±ΡΠ°Π·Π½ΡΠ΅ ΡΠ°ΡΠΎΠ½Π½ΡΠ΅ Π΄Π΅ΡΠ°Π»ΠΈ, Π²ΠΎΠ΄ΠΎΠΎΡΠ»ΠΈΠ²Ρ, ΠΏΡΠΎΡΠ½Π°ΡΡΠΈΠ», Π΄Π΅ΡΠ°Π»ΠΈ Π΄Π»Ρ Π°Π²ΡΠΎΡΠ΅ΠΌΠΎΠ½ΡΠ° ΠΈ ΠΏΡ.
Π’Π°ΠΊΠΈΠ΅ ΠΈΠ·Π΄Π΅Π»ΠΈΡ ΠΏΠΎΠΊΡΠΏΠ°ΡΡ Π² Π³ΠΎΡΠΎΠ²ΠΎΠΌ Π²ΠΈΠ΄Π΅, Π½ΠΎ Π΅ΡΠ»ΠΈ ΡΠ΄Π΅Π»Π°ΡΡ ΡΡΡΠ½ΠΎΠΉ Π»ΠΈΡΡΠΎΠ³ΠΈΠ± ΡΠ²ΠΎΠΈΠΌΠΈ ΡΡΠΊΠ°ΠΌΠΈ, ΠΌΠΎΠΆΠ½ΠΎ Π·Π΄ΠΎΡΠΎΠ²ΠΎ ΡΡΠΊΠΎΠ½ΠΎΠΌΠΈΡΡ.
ΠΠ°ΠΊΠΈΠ΅ Π±ΡΠ²Π°ΡΡ Π³ΠΈΠ±ΠΎΡΠ½ΠΈΠΊΠΈ
ΠΠΎΠ½Π΅ΡΠ½ΠΎ, ΠΌΠΎΠΆΠ½ΠΎ ΠΊΡΠΏΠΈΡΡ Π³ΠΎΡΠΎΠ²ΡΠΉ Π³ΠΈΠ±ΠΎΡΠ½ΠΈΠΊ, Π½Π°ΠΏΡΠΈΠΌΠ΅Ρ, ΠΈΠ·Π²Π΅ΡΡΠ½ΡΠΉ ΠΠ΄Π΅Π»ΡΠ²Π΅ΠΉΡ, Π½ΠΎ ΠΈ ΡΡΠΎΡΡ ΡΠ°ΠΊΠΈΠ΅ ΡΡΠ°Π½ΠΊΠΈ Π½Π΅ΠΌΠ°Π»ΠΎ, Π° Π²ΠΎΡ ΠΏΡΠΈ ΡΠ°ΠΌΠΎΡΡΠΎΡΡΠ΅Π»ΡΠ½ΠΎΠΌ ΠΈΠ·Π³ΠΎΡΠΎΠ²Π»Π΅Π½ΠΈΠΈ Π½Π΅ ΠΏΠΎΡΡΠ΅Π±ΡΡΡΡΡ ΠΎΡΠΎΠ±ΡΠ΅ ΡΠΈΠ½Π°Π½ΡΠΎΠ²ΡΠ΅ Π·Π°ΡΡΠ°ΡΡ. ΠΡΡΡ Π½Π΅ΡΠΊΠΎΠ»ΡΠΊΠΎ Π²ΠΈΠ΄ΠΎΠ² ΠΌΠ΅ΡΠ°Π»Π»ΠΎΠ³ΠΈΠ±ΠΎΡΠ½ΡΡ ΡΡΠ°Π½ΠΊΠΎΠ²:
- Π ΡΡΠ½ΡΠ΅ Π·Π°Π³ΠΈΠ±ΠΎΡΠ½ΡΠ΅ ΡΡΠ°Π½ΠΊΠΈ. ΠΠΈΠ±ΠΊΠ° ΠΌΠ΅ΡΠ°Π»Π»Π° ΠΏΡΠΎΠΈΡΡ
ΠΎΠ΄ΠΈΡ Π·Π° ΡΡΠ΅Ρ ΠΏΡΠΈΠ»ΠΎΠΆΠ΅Π½ΠΈΡ ΡΠΈΠ·ΠΈΡΠ΅ΡΠΊΠΎΠΉ ΡΠΈΠ»Ρ.
ΠΠ΅ΡΠΌΠΎΡΡΡ Π½Π° ΠΊΠ°ΠΆΡΡΡΡΡΡ ΠΏΡΠΎΡΡΠΎΡΡ ΠΊΠΎΠ½ΡΡΡΡΠΊΡΠΈΠΈ, Ρ ΠΈΡ
ΠΏΠΎΠΌΠΎΡΡΡ ΠΌΠΎΠΆΠ½ΠΎ ΠΏΡΠΎΠΈΠ·Π²ΠΎΠ΄ΠΈΡΡ ΠΏΡΠ°ΠΊΡΠΈΡΠ΅ΡΠΊΠΈ Π²ΡΠ΅ Π½Π΅ΠΎΠ±Ρ
ΠΎΠ΄ΠΈΠΌΡΠ΅ ΠΎΠΏΠ΅ΡΠ°ΡΠΈΠΈ Ρ Π»ΠΈΡΡΠΎΠ²ΡΠΌ ΠΌΠ΅ΡΠ°Π»Π»ΠΎΠΌ, Π² ΡΠΎΠΌ ΡΠΈΡΠ»Π΅ ΡΠ°Π»ΡΡΠ΅Π³ΠΈΠ±ΠΎΡΠ½ΡΠ΅ ΡΠ°Π±ΠΎΡΡ. - ΠΠΈΠ΄ΡΠ°Π²Π»ΠΈΡΠ΅ΡΠΊΠΈΠ΅ Π»ΠΈΡΡΠΎΠ³ΠΈΠ±Ρ. ΠΡΠ΅Π½Ρ ΠΏΠΎΡ ΠΎΠΆΠΈ Π½Π° ΡΡΡΠ½ΡΠ΅ ΡΡΠ°Π½ΠΊΠΈ, Π½ΠΎ ΠΏΡΠΈΠ»ΠΎΠΆΠ΅Π½ΠΈΠ΅ ΡΠΈΠ»Ρ ΠΏΡΠΎΠΈΡΡ ΠΎΠ΄ΠΈΡ Π·Π° ΡΡΠ΅Ρ Π³ΠΈΠ΄ΡΠ°Π²Π»ΠΈΡΠ΅ΡΠΊΠΎΠ³ΠΎ ΠΏΡΠΈΠ²ΠΎΠ΄Π°.
- Π ΠΎΠ»ΠΈΠΊΠΎΠ²ΡΠ΅ ΠΊΡΠΎΠΌΠΊΠΎΠ³ΠΈΠ±ΠΎΡΠ½ΡΠ΅ ΡΡΠ°Π½ΠΊΠΈ. ΠΡΠ»ΠΈΡΠ°ΡΡΡΡ ΠΎΡ ΠΏΡΠ΅Π΄ΡΠ΄ΡΡΠΈΡ Π½Π΅ ΡΠΎΠ»ΡΠΊΠΎ ΠΊΠΎΠ½ΡΡΡΡΠΊΡΠΈΠ΅ΠΉ, Π½ΠΎ ΠΈ ΠΏΡΠΈΠ½ΡΠΈΠΏΠΎΠΌ ΡΠ°Π±ΠΎΡΡ. Π Π½ΠΈΡ Π»ΠΈΡΡ Π½Π΅ Π³Π½Π΅ΡΡΡ ΠΏΠΎ ΠΎΠΏΡΠ΅Π΄Π΅Π»Π΅Π½Π½ΠΎΠΉ Π»ΠΈΠ½ΠΈΠΈ, Π° ΠΏΠ»Π°Π²Π½ΠΎ Π·Π°ΠΊΡΡΠ³Π»ΡΠ΅ΡΡΡ. Π’Π°ΠΊΠΈΠ΅ ΡΡΠ°Π½ΠΊΠΈ Π½Π΅ΠΎΠ±Ρ ΠΎΠ΄ΠΈΠΌΡ Π΄Π»Ρ ΠΈΠ·Π³ΠΎΡΠΎΠ²Π»Π΅Π½ΠΈΡ ΡΡΡΠ± ΠΈ ΠΈΠ½ΡΡ ΠΏΠΎΠ΄ΠΎΠ±Π½ΡΡ ΠΈΠ·Π΄Π΅Π»ΠΈΠΉ.
Π ΡΡΠ½ΡΠ΅ ΠΈ Π³ΠΈΠ΄ΡΠ°Π²Π»ΠΈΡΠ΅ΡΠΊΠΈΠ΅ ΡΡΠ°Π½ΠΊΠΈ ΠΏΡΠΎΡΠ΅ Π² ΠΈΠ·Π³ΠΎΡΠΎΠ²Π»Π΅Π½ΠΈΠΈ, ΡΠ΅ΠΌ ΡΠΎΠ»ΠΈΠΊΠΎΠ²ΡΠ΅. Π§Π΅ΡΡΠ΅ΠΆΠΈ ΠΊΡΠΎΠΌΠΊΠΎΠ³ΠΈΠ±Π° ΡΠ²ΠΎΠΈΠΌΠΈ ΡΡΠΊΠ°ΠΌΠΈ Π»Π΅Π³ΠΊΠΎ Π½Π°ΠΉΡΠΈ, Π½ΠΎ Π½Π΅ Π²Π΅Π·Π΄Π΅ ΡΠ°ΡΠΏΠΈΡΠ°Π½ ΡΠ°ΠΌ ΠΏΡΠΎΡΠ΅ΡΡ ΠΈΡ ΠΏΡΠΎΠΈΠ·Π²ΠΎΠ΄ΡΡΠ²Π°.
ΠΠ·Π³ΠΎΡΠΎΠ²Π»Π΅Π½ΠΈΠ΅ ΡΡΡΠ½ΠΎΠ³ΠΎ Π»ΠΈΡΡΠΎΠ³ΠΈΠ±Π°
Π ΠΈΠ½ΡΠ΅ΡΠ½Π΅ΡΠ΅ ΠΌΠΎΠΆΠ½ΠΎ Π½Π°ΠΉΡΠΈ ΠΌΠ½ΠΎΠΆΠ΅ΡΡΠ²ΠΎ ΡΠ΅ΡΡΠ΅ΠΆΠ΅ΠΉ Π΄Π»Ρ ΠΈΠ·Π³ΠΎΡΠΎΠ²Π»Π΅Π½ΠΈΡ Π»ΠΈΡΡΠΎΠ³ΠΈΠ±ΠΎΡΠ½ΠΎΠ³ΠΎ ΡΡΠ°Π½ΠΊΠ° ΡΠ²ΠΎΠΈΠΌΠΈ ΡΡΠΊΠ°ΠΌΠΈ.
ΠΠ΄Π½Π° ΠΈΠ· Π½Π°ΠΈΠ±ΠΎΠ»Π΅Π΅ ΠΏΡΠΎΡΡΡΡ
ΠΈ ΡΡΡΠ΅ΠΊΡΠΈΠ²Π½ΡΡ
ΠΊΠΎΠ½ΡΡΡΡΠΊΡΠΈΠΉ β ΡΡ
Π΅ΠΌΠ° ΡΡΠ°Π½ΠΊΠ° ΠΈΠ· Π΄Π²ΡΡΠ°Π²ΡΠ°. Π§ΡΠΎΠ±Ρ ΠΈΠ·Π³ΠΎΡΠΎΠ²ΠΈΡΡ ΡΡΡΠ½ΠΎΠΉ Π»ΠΈΡΡΠΎΠ³ΠΈΠ± ΡΠ²ΠΎΠΈΠΌΠΈ ΡΡΠΊΠ°ΠΌΠΈ, ΠΏΠΎΠ½Π°Π΄ΠΎΠ±ΡΡΡΡ: ΡΡΠΈ ΠΎΡΡΠ΅Π·ΠΊΠ° Π΄Π²ΡΡΠ°Π²ΡΠ° Ρ ΠΏΠΎΠ»ΠΊΠ°ΠΌΠΈ Π½Π΅ ΠΌΠ΅Π½Π΅Π΅ 45 ΠΌΠΌ ΠΈ ΡΠΎΠ»ΡΠΈΠ½ΠΎΠΉ ΠΎΡ 3 ΠΌΠΌ, Π΄Π²Π° Π²ΠΈΠ½ΡΠ° Π΄ΠΈΠ°ΠΌΠ΅ΡΡΠΎΠΌ ΠΎΠΊΠΎΠ»ΠΎ 20 ΠΌΠΌ, ΠΏΡΡΠΆΠΈΠ½Π°, ΡΠΎΠ»ΡΡΡΠΉ ΠΌΠ΅ΡΠ°Π»Π» Π΄Π»Ρ ΠΈΠ·Π³ΠΎΡΠΎΠ²Π»Π΅Π½ΠΈΡ ΡΠΊΠΎΡΠΈΠ½ (ΡΡΠΎΠ±Ρ ΡΡΠΈΠ»ΠΈΡΡ ΠΏΡΠΎΠ±Π»Π΅ΠΌΠ½ΡΠ΅ ΠΌΠ΅ΡΡΠ°), Π΄Π²Π΅ΡΠ½ΡΠ΅ ΠΏΠ΅ΡΠ»ΠΈ.
ΠΠ· ΠΈΠ½ΡΡΡΡΠΌΠ΅Π½ΡΠ° ΠΏΠΎΡΡΠ΅Π±ΡΡΡΡΡ Π΄ΡΠ΅Π»Ρ, Π±ΠΎΠ»Π³Π°ΡΠΊΠ° ΠΈ ΡΠ²Π°ΡΠΎΡΠ½ΡΠΉ Π°ΠΏΠΏΠ°ΡΠ°Ρ. ΠΠ»Π³ΠΎΡΠΈΡΠΌ ΠΈΠ·Π³ΠΎΡΠΎΠ²Π»Π΅Π½ΠΈΡ Π½Π΅ΡΠ»ΠΎΠΆΠ½ΡΠΉ:
- Π‘ΠΊΠ»Π°Π΄ΡΠ²Π°ΡΡΡΡ Π΄Π²Π° ΡΠ°Π²ΡΠ°, ΡΠ°Π·ΠΌΠ΅ΡΠ°ΡΡΡΡ ΠΈ Π²ΡΡΠ΅Π·Π°ΡΡΡΡ Π²ΡΠ΅ΠΌΠΊΠΈ Π΄Π»Ρ Π²Π²Π°ΡΠΈΠ²Π°Π½ΠΈΡ ΠΏΠ΅ΡΠ΅Π»Ρ. Π§ΡΠΎΠ±Ρ ΠΊΠ°ΡΠ΅ΡΡΠ²Π΅Π½Π½ΠΎ Π²Π²Π°ΡΠΈΡΡ ΠΏΠ΅ΡΠ»ΠΈ, Π²ΡΠ±ΠΎΡΠΊΠΈ ΡΠΊΠ°ΡΠΈΠ²Π°ΡΡ ΠΏΠΎΠ΄ 45 Π³ΡΠ°Π΄ΡΡΠΎΠ².
- ΠΠ²Π°ΡΠΈΠ²Π°ΡΡΡΡ ΡΠ°ΡΡΠΈ ΠΏΠ΅ΡΠ΅Π»Ρ ΠΊ ΠΏΠΎΠ΄Π³ΠΎΡΠΎΠ²Π»Π΅Π½Π½ΡΠΌ ΠΊΡΡΠΊΠ°ΠΌΠΈ Π΄Π²ΡΡΠ°Π²ΡΠ°. ΠΡΠΎΠ²Π°ΡΠΈΡΡ Π½Π΅ΠΎΠ±Ρ ΠΎΠ΄ΠΈΠΌΠΎ ΠΈ Ρ Π»ΠΈΡΠ°, ΠΈ Ρ ΠΈΠ·Π½Π°Π½ΠΊΠΈ.
- Π§ΡΠΎΠ±Ρ ΡΠ°Π·ΠΌΠ΅ΡΡΠΈΡΡ Π±ΠΎΠ»Ρ, ΡΠΈΠΊΡΠΈΡΡΡΡΠΈΠΉ ΠΏΡΠΈΠΆΠΈΠΌΠ½ΡΠ΅ ΠΏΠ»Π°Π½ΠΊΠΈ, Π²ΡΡΠ΅Π·Π°ΡΡΡΡ ΡΠ΅ΡΡΡΠ΅ ΡΡΠ΅ΡΠ³ΠΎΠ»ΡΠ½ΡΠ΅ ΡΠΊΠΎΡΠΈΠ½Ρ ΠΈ ΠΏΡΠΈΠ²Π°ΡΠΈΠ²Π°ΡΡΡΡ ΠΏΠΎ ΠΏΠ°ΡΠ΅ Ρ ΠΊΠ°ΠΆΠ΄ΠΎΠΉ ΠΈΠ· ΡΡΠΎΡΠΎΠ½ Π΄Π²ΡΡΠ°Π²ΡΠ°. Π ΡΠΊΠΎΡΠΈΠ½Π°ΠΌ ΡΠ°ΠΊΠΆΠ΅ ΠΏΡΠΈΠ²Π°ΡΠΈΠ²Π°Π΅ΡΡΡ Π³Π°ΠΉΠΊΠ°.
- Π ΡΡΠ΅ΡΡΠ΅ΠΌΡ ΠΎΡΡΠ΅Π·ΠΊΡ Π΄Π²ΡΡΠ°Π²ΡΠ°, ΠΊΠΎΡΠΎΡΡΠΌ Π±ΡΠ΄Π΅Ρ ΠΏΡΠΈΠΆΠΈΠΌΠ°ΡΡΡΡ Π»ΠΈΡΡ ΠΌΠ΅ΡΠ°Π»Π»Π°, ΠΏΡΠΈΠ²Π°ΡΠΈΠ²Π°Π΅ΡΡΡ ΡΠΎΠ»ΡΡΠ°Ρ ΡΡΠ°Π»ΡΠ½Π°Ρ ΠΏΠ»Π°ΡΡΠΈΠ½Π°.
Π Π½Π΅ΠΉ Π½ΡΠΆΠ½ΠΎ ΠΏΡΠΎΡΠ²Π΅ΡΠ»ΠΈΡΡ ΠΎΡΠ²Π΅ΡΡΡΠΈΠ΅ ΠΏΠΎΠ΄ Π±ΠΎΠ»Ρ. ΠΡΠΈ Π²Π²Π°ΡΠΈΠ²Π°Π½ΠΈΠΈ Π½Π΅ΠΎΠ±Ρ
ΠΎΠ΄ΠΈΠΌΠΎ ΡΠΎΡΠ½ΠΎ ΠΎΡΡΠ΅Π½ΡΡΠΈΡΠΎΠ²Π°ΡΡ ΠΎΡΠ²Π΅ΡΡΡΠΈΠ΅ ΠΈ Π³Π°ΠΉΠΊΡ Π½Π° ΠΎΡΠ²Π΅ΡΠ½ΠΎΠΌ ΠΎΡΡΠ΅Π·ΠΊΠ΅ ΡΠ°Π²ΡΠ°. - ΠΡΡΠ΅Π·Π°ΡΡ ΠΏΡΡΠΆΠΈΠ½Ρ ΡΠ°ΠΊΠΎΠΉ Π΄Π»ΠΈΠ½Ρ, ΡΡΠΎΠ±Ρ ΠΎΠ½Π° ΠΌΠΎΠ³Π»Π° ΠΏΡΠΈΠΏΠΎΠ΄Π½ΠΈΠΌΠ°ΡΡ ΠΏΡΠΈΠΆΠΈΠΌΠ½ΠΎΠΉ Π΄Π²ΡΡΠ°Π²Ρ Π½Π° Π²ΡΡΠΎΡΡ 8β10 ΠΌΠΌ. ΠΡΡΠΆΠΈΠ½Π° Π½Π΅ΠΎΠ±ΡΠ·Π°ΡΠ΅Π»ΡΠ½Π°, Π½ΠΎ Π΅Π΅ ΠΈΡΠΏΠΎΠ»ΡΠ·ΠΎΠ²Π°Π½ΠΈΠ΅ Π·Π½Π°ΡΠΈΡΠ΅Π»ΡΠ½ΠΎ ΡΠΏΡΠΎΡΡΠΈΡ ΡΠ°Π±ΠΎΡΡ ΠΏΠΎ Π³ΠΈΠ±ΠΊΠ΅ ΠΌΠ΅ΡΠ°Π»Π»Π°.
- Π’Π°ΠΊΠΆΠ΅ Π΄Π»Ρ ΡΠ΄ΠΎΠ±ΡΡΠ²Π° ΠΊ ΡΠ»ΡΠΏΠΊΠ΅ ΠΏΡΠΈΠΆΠΈΠΌΠ½ΠΎΠ³ΠΎ Π²ΠΈΠ½ΡΠ° ΠΆΠ΅Π»Π°ΡΠ΅Π»ΡΠ½ΠΎ ΠΏΡΠΈΠ²Π°ΡΠΈΡΡ ΡΡΡΠΊΠΈ. ΠΡ ΠΌΠΎΠΆΠ½ΠΎ ΡΠ΄Π΅Π»Π°ΡΡ ΠΈΠ· Π½Π΅Π½ΡΠΆΠ½ΠΎΠ³ΠΎ ΠΎΠ±ΡΠ΅Π·ΠΊΠ° Π°ΡΠΌΠ°ΡΡΡΡ.
- Π ΠΏΠΎΠ΄Π²ΠΈΠΆΠ½ΠΎΠΌΡ ΠΎΡΡΠ΅Π·ΠΊΡ Π΄Π²ΡΡΠ°Π²ΡΠ° ΠΏΡΠΈΠ²Π°ΡΠΈΠ²Π°Π΅ΡΡΡ ΡΡΡΠ°Π³-ΡΡΡΠΊΠ°. Π Π°Π±ΠΎΡΠ°Ρ ΡΠ°ΡΡΡ Π»ΠΈΡΡΠΎΠ³ΠΈΠ±Π° Π³ΠΎΡΠΎΠ²Π° ΠΊ ΡΠ°Π±ΠΎΡΠ΅, Π½ΠΎ Π² ΡΠ°ΠΊΠΎΠΌ Π²ΠΈΠ΄Π΅ ΠΈΠΌ ΠΊΡΠ°ΠΉΠ½Π΅ Π½Π΅ΡΠ΄ΠΎΠ±Π½ΠΎ ΠΏΠΎΠ»ΡΠ·ΠΎΠ²Π°ΡΡΡΡ, ΠΏΠΎΡΡΠΎΠΌΡ Π½ΡΠΆΠ½ΠΎ ΡΠ΄Π΅Π»Π°ΡΡ ΡΡΠ°Π½ΠΈΠ½Ρ.
ΠΡΠ° ΡΠ°Π±ΠΎΡΠ° ΠΎΡΠ΅Π½Ρ ΠΏΡΠΎΡΡΠ°Ρ ΠΈ Π½Π΅ ΡΡΠ΅Π±ΡΠ΅Ρ Π΄ΠΎΠΏΠΎΠ»Π½ΠΈΡΠ΅Π»ΡΠ½ΠΎΠ³ΠΎ ΠΎΠΏΠΈΡΠ°Π½ΠΈΡ. Π‘ΡΠ°Π½ΠΈΠ½Ρ ΠΌΠΎΠΆΠ½ΠΎ ΠΈΡΠΏΠΎΠ»ΡΠ·ΠΎΠ²Π°ΡΡ Ρ Π½Π΅Π½ΡΠΆΠ½ΠΎΠ³ΠΎ ΠΈΠ»ΠΈ ΡΠ»ΠΎΠΌΠ°Π½Π½ΠΎΠ³ΠΎ ΠΈΠ½ΡΡΡΡΠΌΠ΅Π½ΡΠ°, Π΅ΡΠ»ΠΈ ΡΠ°ΠΊΠΎΠ²ΠΎΠΉ ΠΈΠΌΠ΅Π΅ΡΡΡ. Π ΠΈΡΠΎΠ³Π΅ ΠΏΠΎΠ»ΡΡΠΈΠ»ΡΡ ΠΌΠΎΡΠ½ΡΠΉ ΡΠ°ΠΌΠΎΠ΄Π΅Π»ΡΠ½ΡΠΉ Π»ΠΈΡΡΠΎΠ³ΠΈΠ±, ΡΠ΅ΡΡΠ΅ΠΆΠΈ ΠΈΡΠΏΠΎΠ»ΡΠ·ΠΎΠ²Π°Π»ΠΈΡΡ ΠΏΡΠΎΡΡΡΠ΅, ΠΎΠ΄Π½ΠΈ ΠΈΠ· ΡΠ°ΠΌΡΡ
ΡΠ°ΡΠΏΡΠΎΡΡΡΠ°Π½Π΅Π½Π½ΡΡ
.
Π‘ Π΅Π³ΠΎ ΠΏΠΎΠΌΠΎΡΡΡ ΠΌΠΎΠΆΠ½ΠΎ Π»Π΅Π³ΠΊΠΎ Π³Π½ΡΡΡ Π΄Π°ΠΆΠ΅ Π΄Π»ΠΈΠ½Π½ΡΠ΅ ΠΈ ΡΠΎΠ»ΡΡΡΠ΅ Π»ΠΈΡΡΡ ΠΌΠ΅ΡΠ°Π»Π»Π°. ΠΡΡΠ°ΡΠΈ, Π²ΠΌΠ΅ΡΡΠΎ Π΄Π²ΡΡΠ°Π²ΡΠ° ΠΌΠΎΠΆΠ½ΠΎ ΠΈΡΠΏΠΎΠ»ΡΠ·ΠΎΠ²Π°ΡΡ ΠΌΠ΅ΡΠ°Π»Π»ΠΈΡΠ΅ΡΠΊΠΈΠΉ ΡΠ³ΠΎΠ»ΠΎΠΊ Ρ ΠΏΠΎΠ΄ΠΎΠ±Π½ΡΠΌΠΈ Ρ
Π°ΡΠ°ΠΊΡΠ΅ΡΠΈΡΡΠΈΠΊΠ°ΠΌΠΈ.
ΠΡΠΎΠΌΠΊΠΎΠ³ΠΈΠ± ΡΡΡΠ½ΠΎΠΉ ΡΠ²ΠΎΠΈΠΌΠΈ ΡΡΠΊΠ°ΠΌΠΈ ΠΈΠ· ΡΠ³ΠΎΠ»ΠΊΠ° ΠΈΠ·Π³ΠΎΡΠ°Π²Π»ΠΈΠ²Π°Π΅ΡΡΡ ΠΏΠΎ ΡΠ΅ΠΌ ΠΆΠ΅ ΡΠ΅ΡΡΠ΅ΠΆΠ°ΠΌ, ΡΠΎΠ»ΡΠΊΠΎ ΡΠ³ΠΎΠ»ΠΊΠΈ ΠΎΡΠ½ΠΎΠ²Ρ Π½Π΅ΠΎΠ±Ρ ΠΎΠ΄ΠΈΠΌΠΎ ΡΠ²Π°ΡΠΈΡΡ ΠΌΠ΅ΠΆΠ΄Ρ ΡΠΎΠ±ΠΎΠΉ ΠΏΠΎΠΏΠ°ΡΠ½ΠΎ.
Π§ΡΠΎΠ±Ρ ΡΠ΄Π΅Π»Π°ΡΡ ΠΊΡΠΎΠΌΠΊΠΎΠ³ΠΈΠ± ΡΡΡΠ½ΠΎΠΉ ΡΠ²ΠΎΠΈΠΌΠΈ ΡΡΠΊΠ°ΠΌΠΈ, ΡΠ΅ΡΡΠ΅ΠΆΠΈ Π»Π΅Π³ΠΊΠΎ ΠΌΠΎΠΆΠ½ΠΎ Π½Π°ΠΉΡΠΈ Π² ΠΈΠ½ΡΠ΅ΡΠ½Π΅ΡΠ΅. ΠΠ»Ρ ΠΏΡΠΈΠΆΠΈΠΌΠ½ΠΎΠΉ ΡΠ°ΡΡΠΈ ΠΌΠΎΠΆΠ½ΠΎ ΠΈΡΠΏΠΎΠ»ΡΠ·ΠΎΠ²Π°ΡΡ Π½Π΅ΡΠΏΠ°ΡΠ΅Π½Π½ΡΠΉ ΡΠ³ΠΎΠ»ΠΎΠΊ, Π½ΠΎ Π΅Π³ΠΎ ΠΆΠ΅Π»Π°ΡΠ΅Π»ΡΠ½ΠΎ ΡΡΠΈΠ»ΠΈΡΡ ΡΠΊΠΎΡΠΈΠ½Π°ΠΌΠΈ Π΄Π»ΠΈ ΠΏΡΠΈΠ΄Π°Π½ΠΈΡ Π½Π΅ΠΎΠ±Ρ ΠΎΠ΄ΠΈΠΌΠΎΠΉ ΠΆΠ΅ΡΡΠΊΠΎΡΡΠΈ.
ΠΡΠΎΠ±Π΅Π½Π½ΠΎΡΡΠΈ ΡΠΎΠ»ΠΈΠΊΠΎΠ²ΠΎΠ³ΠΎ ΡΡΠ°Π½ΠΊΠ°
Π ΠΎΠ»ΠΈΠΊΠΎΠ²ΡΠ΅ Π»ΠΈΡΡΠΎΠ³ΠΈΠ±Ρ ΠΌΠ΅Π½Π΅Π΅ ΡΠ°ΡΠΏΡΠΎΡΡΡΠ°Π½Π΅Π½Ρ, Π½ΠΎ Π΅ΡΠ»ΠΈ ΡΡΠ΅Π±ΡΠ΅ΡΡΡ ΠΏΡΠΈΠ΄Π°ΡΡ Π»ΠΈΡΡΡ ΡΠ°Π΄ΠΈΠ°Π»ΡΠ½ΡΠΉ ΠΈΠ·Π³ΠΈΠ± ΠΈΠ»ΠΈ ΠΈΠ·Π³ΠΎΡΠΎΠ²ΠΈΡΡ ΡΡΡΠ±Ρ, Π°Π»ΡΡΠ΅ΡΠ½Π°ΡΠΈΠ²Ρ Π½Π΅Ρ. Π ΠΈΠ½ΡΠ΅ΡΠ½Π΅ΡΠ΅ ΠΌΠΎΠΆΠ½ΠΎ Π½Π°ΠΉΡΠΈ ΡΠ΅ΡΡΠ΅ΠΆΠΈ Π»ΠΈΡΡΠΎΠ³ΠΈΠ±ΠΎΡΠ½ΠΎΠ³ΠΎ ΡΡΠ°Π½ΠΊΠ° ΡΠ²ΠΎΠΈΠΌΠΈ ΡΡΠΊΠ°ΠΌΠΈ, ΡΠ°ΡΡΠΌΠΎΡΡΠΈΠΌ Π½Π°ΠΈΠ±ΠΎΠ»Π΅Π΅ ΠΏΡΠΎΡΡΡΡ ΠΈ ΡΡΡΠ΅ΠΊΡΠΈΠ²Π½ΡΡ ΠΊΠΎΠ½ΡΡΡΡΠΊΡΠΈΡ. ΠΠ°Π»ΠΊΠΈ Π΄Π»Ρ Π»ΠΈΡΡΠΎΠ³ΠΈΠ±Π° ΠΏΡΠΎΡΠ΅ Π²ΡΠ΅Π³ΠΎ ΠΏΡΠΈΠΎΠ±ΡΠ΅ΡΡΠΈ Π³ΠΎΡΠΎΠ²ΡΠ΅ ΠΈΠ»ΠΈ Π·Π°ΠΊΠ°Π·Π°ΡΡ Ρ ΡΠΎΠΊΠ°ΡΡ, ΠΈΡ
ΠΏΠΎΡΡΠ΅Π±ΡΠ΅ΡΡΡ 3 ΡΡ.
ΠΠ»Ρ ΡΡΠΎΠ³ΠΎ ΡΠΈΠΏΠ° Π»ΠΈΡΡΠΎΠ³ΠΈΠ±Π° ΠΎΡΠΎΠ±Π΅Π½Π½ΠΎ Π²Π°ΠΆΠ½Π° ΠΌΠΎΡΠ½Π°Ρ ΡΡΠ°Π½ΠΈΠ½Π°. ΠΠΏΡΡΡ-ΡΠ°ΠΊΠΈ ΠΌΠΎΠΆΠ½ΠΎ ΠΈΠ·Π³ΠΎΡΠΎΠ²ΠΈΡΡ ΡΠ°ΠΌΠΎΡΡΠΎΡΡΠ΅Π»ΡΠ½ΠΎ ΠΈΠ»ΠΈ Π²Π·ΡΡΡ Π³ΠΎΡΠΎΠ²ΡΡ. ΠΠ²Π° Π½ΠΈΠΆΠ½ΠΈΡ ΡΠΎΠ»ΠΈΠΊΠ° Π·Π°ΠΊΡΠ΅ΠΏΠ»ΡΡΡ ΡΡΠ°ΡΠΈΠΎΠ½Π°ΡΠ½ΠΎ, Π° Π²Π΅ΡΡ Π½ΠΈΠΉ ΠΌΠΎΠΆΠ΅Ρ Π΄Π²ΠΈΠ³Π°ΡΡΡΡ, ΠΎΠ½ Π΄ΠΎΠ»ΠΆΠ΅Π½ ΡΠ°ΡΠΏΠΎΠ»Π°Π³Π°ΡΡΡΡ Π½Π°Π΄ Π½ΠΈΠΌΠΈ. ΠΡΠΈ ΠΏΠΎΠΌΠΎΡΠΈ Π½Π°ΠΆΠΈΠΌΠ° Π½Π° Π²Π΅ΡΡ Π½ΠΈΠΉ Π²Π°Π»ΠΎΠΊ ΡΠ΅Π³ΡΠ»ΠΈΡΡΠ΅ΡΡΡ ΡΠ°Π΄ΠΈΡΡ Π·Π°ΠΊΡΡΠ³Π»Π΅Π½ΠΈΡ ΠΈΠ·Π³ΠΎΡΠ°Π²Π»ΠΈΠ²Π°Π΅ΠΌΠΎΠΉ Π΄Π΅ΡΠ°Π»ΠΈ. ΠΠ»Ρ ΠΈΠ·Π³ΠΎΡΠΎΠ²Π»Π΅Π½ΠΈΡ ΡΡΡΠ± Π½ΡΠΆΠ½ΠΎ ΠΏΡΠ΅Π΄ΡΡΠΌΠΎΡΡΠ΅ΡΡ Π²ΠΎΠ·ΠΌΠΎΠΆΠ½ΠΎΡΡΡ ΡΠ½ΡΡΠΈΡ Π²Π΅ΡΡ Π½Π΅Π³ΠΎ Π²Π°Π»ΠΊΠ°.
Π‘Π°ΠΌΠΎΠ΅ ΡΠ»ΠΎΠΆΠ½ΠΎΠ΅ β ΠΈΠ·Π³ΠΎΡΠΎΠ²Π»Π΅Π½ΠΈΠ΅ ΠΏΡΠΈΠ²ΠΎΠ΄Π°, ΡΡΠΎΠ±Ρ ΡΠΈΠ½Ρ ΡΠΎΠ½Π½ΠΎ Π²ΡΠ°ΡΠ°Π»ΠΈΡΡ Π²ΡΠ΅ ΡΡΠΈ Π²Π°Π»ΠΊΠ°. ΠΠΎΠΆΠ½ΠΎ ΠΏΡΠΈΠΌΠ΅Π½ΠΈΡΡ Π·Π²Π΅Π·Π΄ΠΎΡΠΊΠΈ ΠΈ Π²Π΅Π»ΠΎΡΠΈΠΏΠ΅Π΄Π½ΡΡ ΡΠ΅ΠΏΡ.
ΠΠ΅ΡΡ ΠΏΡΠ΅Π΄ΠΎΡΡΠΎΡΠΎΠΆΠ½ΠΎΡΡΠΈ ΠΏΡΠΈ ΡΠ°Π±ΠΎΡΠ΅
ΠΡΠΈ ΠΈΡΠΏΠΎΠ»ΡΠ·ΠΎΠ²Π°Π½ΠΈΠΈ Π»ΠΈΡΡΠΎΠ³ΠΈΠ±ΠΎΡΠ½ΡΡ ΡΡΠ°Π½ΠΊΠΎΠ² Π½Π΅ΠΎΠ±Ρ ΠΎΠ΄ΠΈΠΌΠΎ Π½Π΅ΡΠΊΠΎΡΠ½ΠΈΡΠ΅Π»ΡΠ½ΠΎ ΡΠΎΠ±Π»ΡΠ΄Π°ΡΡ ΠΏΡΠ°Π²ΠΈΠ»Π° ΡΠ΅Ρ Π½ΠΈΠΊΠΈ Π±Π΅Π·ΠΎΠΏΠ°ΡΠ½ΠΎΡΡΠΈ:
- ΠΠ³Π»ΡΠ΄Π΅ΡΡ ΡΠΎΡΡΠΎΡΠ½ΠΈΠ΅ ΡΠΎΠ±Ρ ΠΈ ΠΎΠ±ΡΠ²ΠΈ. ΠΠ΅ Π΄ΠΎΠ»ΠΆΠ½ΠΎ Π±ΡΡΡ ΡΠ²ΠΈΡΠ°ΡΡΠΈΡ ΡΠ°ΡΡΠ΅ΠΉ, Π½Π΅Π·Π°ΡΡΡΠ³Π½ΡΡΡΡ ΠΌΠΎΠ»Π½ΠΈΠΉ ΠΈΠ»ΠΈ ΠΏΡΠ³ΠΎΠ²ΠΈΡ.
- ΠΡΠΎΠ²Π΅ΡΠΈΡΡ ΡΠ°Π±ΠΎΡΠΈΠ΅ ΠΎΡΠ³Π°Π½Ρ Π»ΠΈΡΡΠΎΠ³ΠΈΠ±Π° Π½Π° Π½Π°Π»ΠΈΡΠΈΠ΅ Π½Π΅ΠΈΡΠΏΡΠ°Π²Π½ΠΎΡΡΠ΅ΠΉ.
Π ΡΠ»ΡΡΠ°Π΅ ΠΎΠ±Π½Π°ΡΡΠΆΠ΅Π½ΠΈΡ Π½Π΅ ΠΏΡΠΈΡΡΡΠΏΠ°ΡΡ ΠΊ ΡΠ°Π±ΠΎΡΠ΅ Π΄ΠΎ ΠΈΡ
ΡΡΡΡΠ°Π½Π΅Π½ΠΈΡ. - Π Π°Π±ΠΎΡΠ΅Π΅ ΠΌΠ΅ΡΡΠΎ Π΄ΠΎΠ»ΠΆΠ½ΠΎ Π±ΡΡΡ Π΄ΠΎΡΡΠ°ΡΠΎΡΠ½ΠΎ ΠΎΡΠ²Π΅ΡΠ΅Π½ΠΎ Π΅ΡΡΠ΅ΡΡΠ²Π΅Π½Π½ΡΠΌ ΠΈΠ»ΠΈ ΠΈΡΠΊΡΡΡΡΠ²Π΅Π½Π½ΡΠΌ ΡΠ²Π΅ΡΠΎΠΌ.
- ΠΠ° ΡΠ°ΡΡΡΠΎΡΠ½ΠΈΠΈ ΠΌΠ΅ΡΡΠ° ΠΎΡ ΡΡΠ°Π½ΠΊΠ° Π½Π΅ Π΄ΠΎΠ»ΠΆΠ½ΠΎ Π±ΡΡΡ Π»ΠΈΡΠ½ΠΈΡ ΠΈΠ½ΡΡΡΡΠΌΠ΅Π½ΡΠΎΠ² ΠΈ ΠΌΠ°ΡΠ΅ΡΠΈΠ°Π»ΠΎΠ².
- ΠΠ΅Π»ΡΠ·Ρ Π³Π½ΡΡΡ Π»ΠΈΡΡΡ Π±ΠΎΠ»ΡΡΠ΅ ΡΠΎΠ»ΡΠ΅, ΡΠ΅ΠΌ ΠΏΡΠ΅Π΄ΡΡΠΌΠΎΡΡΠ΅Π½ΠΎ ΠΊΠΎΠ½ΡΡΡΡΠΊΡΠΈΠ΅ΠΉ ΠΈ Ρ Π°ΡΠ°ΠΊΡΠ΅ΡΠΈΡΡΠΈΠΊΠ°ΠΌΠΈ ΡΡΠ°Π½ΠΊΠ°.
Π’Π°ΠΊΠΈΠΌ ΠΎΠ±ΡΠ°Π·ΠΎΠΌ, ΡΠ²ΠΎΠΈΠΌΠΈ ΡΡΠΊΠ°ΠΌΠΈ ΠΌΠΎΠΆΠ½ΠΎ Π»Π΅Π³ΠΊΠΎ ΡΠ΄Π΅Π»Π°ΡΡ Π»ΠΈΡΡΠΎΠ³ΠΈΠ±.
ΠΡΠΎΠΌΡΡΠ»Π΅Π½Π½ΡΠΉ ΡΠΎΡΠΎΠ³ΠΈΠ±ΠΎΡΠ½ΡΠΉ ΡΡΠ°Π½ΠΎΠΊ RDB-125
5 095,00 $
ΠΠΠΠ‘ΠΠΠΠ
Π£ΡΡΠ°Π»ΠΈ ΠΎΡ ΡΡΠΎΠΌΠΈΡΠ΅Π»ΡΠ½ΠΎΠ³ΠΎ ΡΡΡΠ½ΠΎΠ³ΠΎ Π³ΠΈΠ±ΠΎΡΠ½ΠΎΠ³ΠΎ ΡΡΠ°Π½ΠΊΠ°? ΠΡΠΎΡ Π³ΠΈΠ΄ΡΠ°Π²Π»ΠΈΡΠ΅ΡΠΊΠΈΠΉ ΠΏΠΎΠ²ΠΎΡΠΎΡΠ½ΡΠΉ Π³ΠΈΠ±ΠΎΡΠ½ΡΠΉ ΡΡΠ°Π½ΠΎΠΊ ΠΏΠΎΠ²ΡΡΠΈΡ Π²Π°ΡΡ ΠΏΡΠΎΠΈΠ·Π²ΠΎΠ΄ΠΈΡΠ΅Π»ΡΠ½ΠΎΡΡΡ .
- Π’ΡΠ΅Π±ΡΠ΅ΡΡΡ ΡΠΎΠ»ΡΠΊΠΎ ΠΎΠ΄Π½ΠΎΡΠ°Π·Π½ΠΎΠ΅ ΠΏΠΈΡΠ°Π½ΠΈΠ΅ 110 Π Β Π΄Π»Ρ ΠΏΡΠΎΡΡΠΎΡΠ° ΠΏΠΎΠ΄ΠΊΠ»ΡΡΠ΅Π½ΠΈΡ Β ΠΏΡΠ°ΠΊΡΠΈΡΠ΅ΡΠΊΠΈ Π² Π»ΡΠ±ΠΎΠΌ ΠΌΠ΅ΡΡΠ΅.
- Π Π°Π±ΠΎΡΠ°Π΅Ρ Ρ ΠΌΠ°ΠΊΡΠΈΠΌΠ°Π»ΡΠ½ΠΎΠΉ Π²ΠΌΠ΅ΡΡΠΈΠΌΠΎΡΡΡΡ ΡΡΡΠ±ΠΎΠΊ Ρ Π½Π°ΡΡΠΆΠ½ΡΠΌ Π΄ΠΈΠ°ΠΌΠ΅ΡΡΠΎΠΌ 2,5 Π΄ΡΠΉΠΌΠ°, Ρ
ΡΠΎΠΌΠ°Π»Π»ΠΎΡ Ρ Π½Π°ΡΡΠΆΠ½ΡΠΌ Π΄ΠΈΠ°ΠΌΠ΅ΡΡΠΎΠΌ 2 Π΄ΡΠΉΠΌΠ°, ΠΊΠ²Π°Π΄ΡΠ°ΡΠ½ΡΡ
ΡΡΡΠ±ΠΎΠΊ 2 Π΄ΡΠΉΠΌΠ° ΠΈ ΡΡΡΠ± ΡΠΎΡΡΠ°ΠΌΠ΅Π½ΡΠ° 40 Π΄ΠΈΠ°ΠΌΠ΅ΡΡΠΎΠΌ 2 Π΄ΡΠΉΠΌΠ° .

- ΠΠ°ΠΊΡΠΈΠΌΠ°Π»ΡΠ½Π°Ρ ΠΎΡΠ΅Π²Π°Ρ Π»ΠΈΠ½ΠΈΡ 8 Π΄ΡΠΉΠΌΠΎΠ² , Π² Π·Π°Π²ΠΈΡΠΈΠΌΠΎΡΡΠΈ ΠΎΡ Π½Π°ΡΡΠΆΠ½ΠΎΠ³ΠΎ Π΄ΠΈΠ°ΠΌΠ΅ΡΡΠ° ΠΌΠ°ΡΠ΅ΡΠΈΠ°Π»Π°.
- ΠΠ·Π³ΠΈΠ±Ρ Π΄ΠΎ 200Β° , ΡΡΠΎ ΠΏΠΎΠ·Π²ΠΎΠ»ΡΠ΅Ρ ΠΈΠ·Π³ΠΈΠ±Π°ΡΡ Π½Π° 180Β° Π±Π΅Π· Π½Π΅ΠΎΠ±Ρ ΠΎΠ΄ΠΈΠΌΠΎΡΡΠΈ ΠΏΠΎΠ²ΡΠΎΡΠ½ΠΎΠ³ΠΎ Π·Π°ΠΊΡΠ΅ΠΏΠ»Π΅Π½ΠΈΡ Π½Π°Π±ΠΎΡΠ° ΡΡΠ°ΠΌΠΏΠΎΠ².
- Π’ΡΠ΅Π±ΡΠ΅ΡΡΡ Π²ΡΠ΅Π³ΠΎ 4 ΠΏΠΎΠ»Π½ΡΡ Π½Π°ΠΆΠ°ΡΠΈΡ , ΡΡΠΎΠ±Ρ Π΄ΠΎΡΡΠΈΡΡ 180Β° .
- ΠΡΡΡΠΎΠ΅Π½Π½ΡΠΉ ΠΏΡΠΎΡΠΈΠ²ΠΎΠΏΡΡΠΆΠΈΠ½Π½ΡΠΉ ΠΌΠ΅Ρ Π°Π½ΠΈΠ·ΠΌ ΠΏΠΎΠ·Π²ΠΎΠ»ΡΠ΅Ρ Π³ΠΈΠ΄ΡΠ°Π²Π»ΠΈΡΠ΅ΡΠΊΠΎΠΌΡ ΡΠΈΠ»ΠΈΠ½Π΄ΡΡ Π²ΡΡΠ³ΠΈΠ²Π°ΡΡΡΡ, Π½Π΅ ΡΠ΅ΡΡΡ ΠΌΠ΅ΡΡΠ° Π½Π° ΠΈΠ·Π³ΠΈΠ±Π΅.
- ΠΠΎΠΊΡΡΠ²Π°Π΅ΡΡΡ Π³Π°ΡΠ°Π½ΡΠΈΠ΅ΠΉ Π½Π° Π΄Π΅ΡΠ°Π»ΠΈ ΡΡΠΎΠΊΠΎΠΌ Π½Π° 1 Π³ΠΎΠ΄ .
- ΠΠΎΡΡΠ°Π²Π»ΡΠ΅ΡΡΡ Ρ ΠΏΠΎΠΆΠΈΠ·Π½Π΅Π½Π½ΠΎΠΉ ΡΠ΅Ρ Π½ΠΈΡΠ΅ΡΠΊΠΎΠΉ ΠΏΠΎΠ΄Π΄Π΅ΡΠΆΠΊΠΎΠΉ ΠΎΡ Π½Π°ΡΠ΅ΠΉ Π·Π½Π°ΡΡΠ΅ΠΉ ΠΊΠΎΠΌΠ°Π½Π΄Ρ.
Β
ΠΡΠΏΠΎΠ»ΡΠ·ΡΠΉΡΠ΅ ΡΡΠΎΡ Π³ΠΈΠ±ΠΎΡΠ½ΡΠΉ ΡΡΠ°Π½ΠΎΠΊ Π΄Π»Ρ: Β ΠΠΊΠΎΠ½ΠΎΠΌΠΈΡΠ½ΠΎΠΉ ΠΎΠ΄Π½ΠΎΡΠ°Π·ΠΎΠ²ΠΎΠΉ Π³ΠΈΠ±ΠΊΠΈ ΠΏΠΎΡΡΡΠ½Π΅ΠΉ ΠΈ Π°Π²ΡΠΎΠΌΠΎΠ±ΠΈΠ»ΡΠ½ΡΡ ΡΠ°ΡΡΠΈ.
Π ΡΠ΅ΠΌ ΠΏΡΠ΅ΠΈΠΌΡΡΠ΅ΡΡΠ²ΠΎ RDB-125 ΠΏΠ΅ΡΠ΅Π΄ Π°Π½Π°Π»ΠΎΠ³ΠΈΡΠ½ΡΠΌΠΈ ΠΌΠ°ΡΠΈΠ½Π°ΠΌΠΈ?
- ΠΠΈΠ·ΠΊΠΎΠ΅ Π΄Π°Π²Π»Π΅Π½ΠΈΠ΅Β ΠΠΈΠ΄ΡΠ°Π²Π»ΠΈΠΊΠ° ΠΏΡΠΎΠΌΡΡΠ»Π΅Π½Π½ΠΎΠ³ΠΎ ΠΊΠ»Π°ΡΡΠ° Β Π΄Π΅Π»Π°Π΅Ρ Π³ΠΈΠ±ΠΊΡ Π±ΡΡΡΡΠΎΠΉ, Π±Π΅ΡΡΡΠΌΠ½ΠΎΠΉ ΠΈ Π±Π΅Π·ΠΎΠΏΠ°ΡΠ½ΠΎΠΉ , Π΄Π°ΠΆΠ΅ ΠΏΡΠΈ ΠΏΠΎΠ»Π½ΠΎΠΉ Π½Π°Π³ΡΡΠ·ΠΊΠ΅.

- ΠΡΡΡΡΠΎΡΡΠ΅ΠΌΠ½ΡΠΉ ΠΏΠΎΠ·ΠΈΡΠΈΠΎΠ½Π΅Ρ ΠΊΠΎΠ½ΡΡΠΌΠ°ΡΡΠΈΡΡ Β ΡΡΠΊΠΎΡΡΠ΅Ρ Π·Π°Π³ΡΡΠ·ΠΊΡ ΠΈ ΡΠ°Π·Π³ΡΡΠ·ΠΊΡ ΠΌΠ°ΡΠ΅ΡΠΈΠ°Π»Π°.
- ΠΡΠΈΠ½ΠΈΠΌΠ°Π΅Ρ ΡΠ΄ΠΎΠ±Π½ΡΡ Π²ΡΡΠ°Π²Π½ΡΡ Π½Π°Π±ΠΎΡΠΎΠ² ΠΈΠ½ΡΡΡΡΠΌΠ΅Π½ΡΠΎΠ² Β ΠΎΡ Baileigh, ΡΡΠΎΠ±Ρ ΡΠ°ΡΡΠΈΡΠΈΡΡ Π²ΠΎΠ·ΠΌΠΎΠΆΠ½ΠΎΡΡΠΈ Π²Π°ΡΠΈΡ ΠΏΡΠΈΠ»ΠΎΠΆΠ΅Π½ΠΈΠΉ.
- ΠΡ ΠΌΠΎΠΆΠ΅ΡΠ΅ ΠΎΠ±ΡΠ°ΡΠΈΡΡΡΡ Π·Π° ΠΏΠΎΠ΄Π΄Π΅ΡΠΆΠΊΠΎΠΉ ΠΈ ΠΊΠΎΠ½ΡΡΠ»ΡΡΠ°ΡΠΈΠ΅ΠΉ ΠΏΠΎ ΠΏΡΠΎΠ΅ΠΊΡΠ°ΠΌ ΠΊ Π½Π°ΡΠΈΠΌ ΠΎΠΏΡΡΠ½ΡΠΌ ΠΏΡΠ΅Π΄ΡΡΠ°Π²ΠΈΡΠ΅Π»ΡΠΌ Π½Π° ΠΏΡΠΎΡΡΠΆΠ΅Π½ΠΈΠΈ ΠΌΠ½ΠΎΠ³ΠΈΡ Π»Π΅Ρ ΡΠ°Π±ΠΎΡΡ ΠΌΠ°ΡΠΈΠ½Ρ.
Π₯ΠΠ ΠΠΠ’ΠΠ ΠΠ‘Π’ΠΠΠ
| ΠΡΡΠΈΠΊΡΠ» | Π ΠΠ-125 |
|---|---|
| Π‘ΡΡΠ°Π½Π° ΠΏΡΠΎΠΈΠ·Π²ΠΎΠ΄ΠΈΡΠ΅Π»Ρ | Π‘Π¨Π |
| ΠΠΈΠ½ΠΈΠΌΠ°Π»ΡΠ½ΡΠΉ CLR | .5β³ |
| ΠΠΈΠ½ΠΈΠΌΠ°Π»ΡΠ½ΡΠΉ Π½Π°ΡΡΠΆΠ½ΡΠΉ Π΄ΠΈΠ°ΠΌΠ΅ΡΡ | .25β³ |
| Π‘ΠΏΠ»ΠΎΡΠ½ΠΎΠΉ ΡΡΠ΅ΡΠΆΠ΅Π½Ρ ΠΈΠ· ΠΌΡΠ³ΠΊΠΎΠΉ ΡΡΠ°Π»ΠΈ | 1,25β³ |
| Π’ΡΡΠ±Π° ΠΈΠ· ΠΌΡΠ³ΠΊΠΎΠΉ ΡΡΠ°Π»ΠΈ, ΡΠΎΡΡΠ°ΠΌΠ΅Π½Ρ 40 | 2β³ |
| Π‘ΡΠ΅Π½ΠΊΠ° ΠΈΠ· ΠΊΡΡΠ³Π»ΠΎΠΉ ΡΡΡΠ±Ρ ΠΈΠ· ΠΌΡΠ³ΠΊΠΎΠΉ ΡΡΠ°Π»ΠΈ | 2,5 Π΄ΡΠΉΠΌΠ° (0,125 Π΄ΡΠΉΠΌΠ°) |
| ΠΠ²Π°Π΄ΡΠ°ΡΠ½Π°Ρ ΡΡΡΠ±Π° ΠΈΠ· ΠΌΡΠ³ΠΊΠΎΠΉ ΡΡΠ°Π»ΠΈ (ΡΡΠ΅Π½ΠΎΠ²Π°Ρ) | 2β³ (0,125) |
| Π’ΡΡΠ±Π° ΠΈΠ· Π½Π΅ΡΠΆΠ°Π²Π΅ΡΡΠ΅ΠΉ ΡΡΠ°Π»ΠΈ, ΡΠΎΡΡΠ°ΠΌΠ΅Π½Ρ 40 | 1,5β³ |
| Π‘ΡΠ΅Π½ΠΊΠ° ΠΈΠ· ΠΊΡΡΠ³Π»ΠΎΠΉ ΡΡΡΠ±Ρ ΠΈΠ· Π½Π΅ΡΠΆΠ°Π²Π΅ΡΡΠ΅ΠΉ ΡΡΠ°Π»ΠΈ | 2,375β³ (0,125) |
| ΠΡΡΠ³Π»Π°Ρ ΡΡΡΠ±ΡΠ°ΡΠ°Ρ ΡΡΠ΅Π½ΠΊΠ° ΠΈΠ· Ρ ΡΠΎΠΌΠΎΠΌΠΎΠ»ΠΈΠ±Π΄Π΅Π½Π° | 2β³ (0,125) |
| Π‘ΡΠ΅Π½ΠΊΠ° ΠΈΠ· ΠΊΡΡΠ³Π»ΠΎΠΉ Π°Π»ΡΠΌΠΈΠ½ΠΈΠ΅Π²ΠΎΠΉ ΡΡΡΠ±Ρ | 2,5 Π΄ΡΠΉΠΌΠ° (0,156 Π΄ΡΠΉΠΌΠ°) |
| ΠΠ°ΠΊΡΠΈΠΌΠ°Π»ΡΠ½ΡΠΉ ΡΠ°Π΄ΠΈΡΡ ΡΠ΅Π½ΡΡΠ°Π»ΡΠ½ΠΎΠΉ Π»ΠΈΠ½ΠΈΠΈ Clr | 10,5β³ |
| ΠΠΎΡΠ½ΠΎΡΡΡ | 110 Π |
| Π’ΡΠ°Π½ΡΠΏΠΎΡΡΠΈΡΠΎΠ²ΠΎΡΠ½ΡΠΉ Π²Π΅Ρ | 550 ΡΡΠ½ΡΠΎΠ² |
| ΠΡΠΎΠ±ΡΠ΅ ΠΏΡΠΈΠΌΠ΅ΡΠ°Π½ΠΈΡ | ΠΠ½ΡΡΡΡΠΌΠ΅Π½ΡΡ Π½Π΅ Π²ΠΊΠ»ΡΡΠ΅Π½Ρ |
| Π’ΡΠ°Π½ΡΠΏΠΎΡΡΠΈΡΠΎΠ²ΠΎΡΠ½ΡΠ΅ ΡΠ°Π·ΠΌΠ΅ΡΡ (Π΄ΡΠΉΠΌΡ) | 60x44x77 |
* Π’Π΅Ρ
Π½ΠΈΡΠ΅ΡΠΊΠΈΠ΅ Ρ
Π°ΡΠ°ΠΊΡΠ΅ΡΠΈΡΡΠΈΠΊΠΈ ΠΌΠΎΠ³ΡΡ Π±ΡΡΡ ΠΈΠ·ΠΌΠ΅Π½Π΅Π½Ρ Π±Π΅Π· ΠΏΡΠ΅Π΄Π²Π°ΡΠΈΡΠ΅Π»ΡΠ½ΠΎΠ³ΠΎ ΡΠ²Π΅Π΄ΠΎΠΌΠ»Π΅Π½ΠΈΡ.
California Proposition 65
ΠΠ΅Ρ Π² Π½Π°Π»ΠΈΡΠΈΠΈ
ΠΡΡΠΈΠΊΡΠ»: BIRDBRBD125052220
ΠΠ°ΡΠ΅Π³ΠΎΡΠΈΠΈ: ΠΠΈΠ΄ΡΠ°Π²Π»ΠΈΡΠ΅ΡΠΊΠΈΠ΅ ΡΠΎΡΠ°ΡΠΈΠΎΠ½Π½ΡΠ΅ ΡΡΡΠ±ΠΎΠ³ΠΈΠ±Ρ, ΠΡΠΎΠΌΡΡΠ»Π΅Π½Π½ΠΎΠ΅ ΠΎΠ±ΠΎΡΡΠ΄ΠΎΠ²Π°Π½ΠΈΠ΅, Π’ΡΡΠ±ΠΎΠ³ΠΈΠ±Ρ
ΠΠΏΠΈΡΠ°Π½ΠΈΠ΅
ΠΠΏΠΈΡΠ°Π½ΠΈΠ΅
ΠΠΠΠ‘ΠΠΠΠ
Π£ΡΡΠ°Π»ΠΈ ΠΎΡ ΡΡΠΎΠΌΠΈΡΠ΅Π»ΡΠ½ΠΎΠ³ΠΎ ΡΡΡΠ½ΠΎΠ³ΠΎ Π³ΠΈΠ±ΠΎΡΠ½ΠΎΠ³ΠΎ ΡΡΠ°Π½ΠΊΠ°? ΠΡΠΎΡ Π³ΠΈΠ΄ΡΠ°Π²Π»ΠΈΡΠ΅ΡΠΊΠΈΠΉ ΠΏΠΎΠ²ΠΎΡΠΎΡΠ½ΡΠΉ Π³ΠΈΠ±ΠΎΡΠ½ΡΠΉ ΡΡΠ°Π½ΠΎΠΊ ΠΏΠΎΠ²ΡΡΠΈΡ Π²Π°ΡΡ ΠΏΡΠΎΠΈΠ·Π²ΠΎΠ΄ΠΈΡΠ΅Π»ΡΠ½ΠΎΡΡΡ .
- Π’ΡΠ΅Π±ΡΠ΅ΡΡΡ ΡΠΎΠ»ΡΠΊΠΎ ΠΎΠ΄Π½ΠΎΡΠ°Π·Π½ΠΎΠ΅ ΠΏΠΈΡΠ°Π½ΠΈΠ΅ 110 Π Β Π΄Π»Ρ ΠΏΡΠΎΡΡΠΎΡΠ° ΠΏΠΎΠ΄ΠΊΠ»ΡΡΠ΅Π½ΠΈΡ Β ΠΏΡΠ°ΠΊΡΠΈΡΠ΅ΡΠΊΠΈ Π² Π»ΡΠ±ΠΎΠΌ ΠΌΠ΅ΡΡΠ΅.
- Π Π°Π±ΠΎΡΠ°Π΅Ρ Ρ ΠΌΠ°ΠΊΡΠΈΠΌΠ°Π»ΡΠ½ΠΎΠΉ Π²ΠΌΠ΅ΡΡΠΈΠΌΠΎΡΡΡΡ ΡΡΡΠ±ΠΎΠΊ Ρ Π½Π°ΡΡΠΆΠ½ΡΠΌ Π΄ΠΈΠ°ΠΌΠ΅ΡΡΠΎΠΌ 2,5 Π΄ΡΠΉΠΌΠ°, Ρ ΡΠΎΠΌΠ°Π»Π»ΠΎΡ Ρ Π½Π°ΡΡΠΆΠ½ΡΠΌ Π΄ΠΈΠ°ΠΌΠ΅ΡΡΠΎΠΌ 2 Π΄ΡΠΉΠΌΠ°, ΠΊΠ²Π°Π΄ΡΠ°ΡΠ½ΡΡ ΡΡΡΠ±ΠΎΠΊ 2 Π΄ΡΠΉΠΌΠ° ΠΈ ΡΡΡΠ± ΡΠΎΡΡΠ°ΠΌΠ΅Π½ΡΠ° 40 Π΄ΠΈΠ°ΠΌΠ΅ΡΡΠΎΠΌ 2 Π΄ΡΠΉΠΌΠ° .
- ΠΠ°ΠΊΡΠΈΠΌΠ°Π»ΡΠ½Π°Ρ ΠΎΡΠ΅Π²Π°Ρ Π»ΠΈΠ½ΠΈΡ 8 Π΄ΡΠΉΠΌΠΎΠ² , Π² Π·Π°Π²ΠΈΡΠΈΠΌΠΎΡΡΠΈ ΠΎΡ Π½Π°ΡΡΠΆΠ½ΠΎΠ³ΠΎ Π΄ΠΈΠ°ΠΌΠ΅ΡΡΠ° ΠΌΠ°ΡΠ΅ΡΠΈΠ°Π»Π°.
- ΠΠ·Π³ΠΈΠ±Ρ Π΄ΠΎ 200Β° , ΡΡΠΎ ΠΏΠΎΠ·Π²ΠΎΠ»ΡΠ΅Ρ ΠΈΠ·Π³ΠΈΠ±Π°ΡΡ Π½Π° 180Β° Π±Π΅Π· Π½Π΅ΠΎΠ±Ρ
ΠΎΠ΄ΠΈΠΌΠΎΡΡΠΈ ΠΏΠΎΠ²ΡΠΎΡΠ½ΠΎΠ³ΠΎ Π·Π°ΠΊΡΠ΅ΠΏΠ»Π΅Π½ΠΈΡ Π½Π°Π±ΠΎΡΠ° ΡΡΠ°ΠΌΠΏΠΎΠ².

- Π’ΡΠ΅Π±ΡΠ΅ΡΡΡ Π²ΡΠ΅Π³ΠΎ 4 ΠΏΠΎΠ»Π½ΡΡ Π½Π°ΠΆΠ°ΡΠΈΡ , ΡΡΠΎΠ±Ρ Π΄ΠΎΡΡΠΈΡΡ 180Β° .
- ΠΡΡΡΠΎΠ΅Π½Π½ΡΠΉ ΠΏΡΠΎΡΠΈΠ²ΠΎΠΏΡΡΠΆΠΈΠ½Π½ΡΠΉ ΠΌΠ΅Ρ Π°Π½ΠΈΠ·ΠΌ ΠΏΠΎΠ·Π²ΠΎΠ»ΡΠ΅Ρ Π³ΠΈΠ΄ΡΠ°Π²Π»ΠΈΡΠ΅ΡΠΊΠΎΠΌΡ ΡΠΈΠ»ΠΈΠ½Π΄ΡΡ Π²ΡΡΠ³ΠΈΠ²Π°ΡΡΡΡ, Π½Π΅ ΡΠ΅ΡΡΡ ΠΌΠ΅ΡΡΠ° Π½Π° ΠΈΠ·Π³ΠΈΠ±Π΅.
- ΠΠΎΠΊΡΡΠ²Π°Π΅ΡΡΡ Π³Π°ΡΠ°Π½ΡΠΈΠ΅ΠΉ Π½Π° Π΄Π΅ΡΠ°Π»ΠΈ ΡΡΠΎΠΊΠΎΠΌ Π½Π° 1 Π³ΠΎΠ΄ .
- ΠΠΎΡΡΠ°Π²Π»ΡΠ΅ΡΡΡ Ρ ΠΏΠΎΠΆΠΈΠ·Π½Π΅Π½Π½ΠΎΠΉ ΡΠ΅Ρ Π½ΠΈΡΠ΅ΡΠΊΠΎΠΉ ΠΏΠΎΠ΄Π΄Π΅ΡΠΆΠΊΠΎΠΉ ΠΎΡ Π½Π°ΡΠ΅ΠΉ Π·Π½Π°ΡΡΠ΅ΠΉ ΠΊΠΎΠΌΠ°Π½Π΄Ρ.
Β
ΠΡΠΏΠΎΠ»ΡΠ·ΡΠΉΡΠ΅ ΡΡΠΎΡ Π³ΠΈΠ±ΠΎΡΠ½ΡΠΉ ΡΡΠ°Π½ΠΎΠΊ Π΄Π»Ρ: Β ΠΠΊΠΎΠ½ΠΎΠΌΠΈΡΠ½ΠΎΠΉ ΠΎΠ΄Π½ΠΎΡΠ°Π·ΠΎΠ²ΠΎΠΉ Π³ΠΈΠ±ΠΊΠΈ ΠΏΠΎΡΡΡΠ½Π΅ΠΉ ΠΈ Π°Π²ΡΠΎΠΌΠΎΠ±ΠΈΠ»ΡΠ½ΡΡ ΡΠ°ΡΡΠΈ.
Π ΡΠ΅ΠΌ ΠΏΡΠ΅ΠΈΠΌΡΡΠ΅ΡΡΠ²ΠΎ RDB-125 ΠΏΠ΅ΡΠ΅Π΄ Π°Π½Π°Π»ΠΎΠ³ΠΈΡΠ½ΡΠΌΠΈ ΠΌΠ°ΡΠΈΠ½Π°ΠΌΠΈ?
- ΠΠΈΠ·ΠΊΠΎΠ΅ Π΄Π°Π²Π»Π΅Π½ΠΈΠ΅Β ΠΠΈΠ΄ΡΠ°Π²Π»ΠΈΠΊΠ° ΠΏΡΠΎΠΌΡΡΠ»Π΅Π½Π½ΠΎΠ³ΠΎ ΠΊΠ»Π°ΡΡΠ° Β Π΄Π΅Π»Π°Π΅Ρ Π³ΠΈΠ±ΠΊΡ Π±ΡΡΡΡΠΎΠΉ, Π±Π΅ΡΡΡΠΌΠ½ΠΎΠΉ ΠΈ Π±Π΅Π·ΠΎΠΏΠ°ΡΠ½ΠΎΠΉ , Π΄Π°ΠΆΠ΅ ΠΏΡΠΈ ΠΏΠΎΠ»Π½ΠΎΠΉ Π½Π°Π³ΡΡΠ·ΠΊΠ΅.
- ΠΡΡΡΡΠΎΡΡΠ΅ΠΌΠ½ΡΠΉ ΠΏΠΎΠ·ΠΈΡΠΈΠΎΠ½Π΅Ρ ΠΊΠΎΠ½ΡΡΠΌΠ°ΡΡΠΈΡΡ Β ΡΡΠΊΠΎΡΡΠ΅Ρ Π·Π°Π³ΡΡΠ·ΠΊΡ ΠΈ ΡΠ°Π·Π³ΡΡΠ·ΠΊΡ ΠΌΠ°ΡΠ΅ΡΠΈΠ°Π»Π°.
- ΠΡΠΈΠ½ΠΈΠΌΠ°Π΅Ρ ΡΠ΄ΠΎΠ±Π½ΡΡ
Π½Π°Π±ΠΎΡΠΎΠ² ΠΈΠ½ΡΡΡΡΠΌΠ΅Π½ΡΠΎΠ² Β ΠΎΡ Baileigh, ΡΡΠΎΠ±Ρ ΡΠ°ΡΡΠΈΡΠΈΡΡ Π²ΠΎΠ·ΠΌΠΎΠΆΠ½ΠΎΡΡΠΈ Π΄Π»Ρ Π²Π°ΡΠΈΡ
ΠΏΡΠΈΠ»ΠΎΠΆΠ΅Π½ΠΈΠΉ.

- ΠΡ ΠΌΠΎΠΆΠ΅ΡΠ΅ ΠΎΠ±ΡΠ°ΡΠΈΡΡΡΡ Π·Π° ΠΏΠΎΠ΄Π΄Π΅ΡΠΆΠΊΠΎΠΉ ΠΈ ΠΊΠΎΠ½ΡΡΠ»ΡΡΠ°ΡΠΈΠ΅ΠΉ ΠΏΠΎ ΠΏΡΠΎΠ΅ΠΊΡΠ°ΠΌ ΠΊ Π½Π°ΡΠΈΠΌ ΠΎΠΏΡΡΠ½ΡΠΌ ΠΏΡΠ΅Π΄ΡΡΠ°Π²ΠΈΡΠ΅Π»ΡΠΌ Π½Π° ΠΏΡΠΎΡΡΠΆΠ΅Π½ΠΈΠΈ ΠΌΠ½ΠΎΠ³ΠΈΡ Π»Π΅Ρ ΡΠ°Π±ΠΎΡΡ ΠΌΠ°ΡΠΈΠ½Ρ.
Π₯ΠΠ ΠΠΠ’ΠΠ ΠΠ‘Π’ΠΠΠ
| ΠΡΡΠΈΠΊΡΠ» | Π ΠΠ-125 |
|---|---|
| Π‘ΡΡΠ°Π½Π° ΠΏΡΠΎΠΈΠ·Π²ΠΎΠ΄ΠΈΡΠ΅Π»Ρ | Π‘Π¨Π |
| ΠΠΈΠ½ΠΈΠΌΡΠΌ CLR | .5β³ |
| ΠΠΈΠ½ΠΈΠΌΠ°Π»ΡΠ½ΡΠΉ Π½Π°ΡΡΠΆΠ½ΡΠΉ Π΄ΠΈΠ°ΠΌΠ΅ΡΡ | .25β³ |
| Π‘ΠΏΠ»ΠΎΡΠ½ΠΎΠΉ ΡΡΠ΅ΡΠΆΠ΅Π½Ρ ΠΈΠ· ΠΌΡΠ³ΠΊΠΎΠΉ ΡΡΠ°Π»ΠΈ | 1,25β³ |
| Π’ΡΡΠ±Π° ΠΈΠ· ΠΌΡΠ³ΠΊΠΎΠΉ ΡΡΠ°Π»ΠΈ, ΡΠΎΡΡΠ°ΠΌΠ΅Π½Ρ 40 | 2β³ |
| Π‘ΡΠ΅Π½ΠΊΠ° ΠΈΠ· ΠΊΡΡΠ³Π»ΠΎΠΉ ΡΡΡΠ±Ρ ΠΈΠ· ΠΌΡΠ³ΠΊΠΎΠΉ ΡΡΠ°Π»ΠΈ | 2,5 Π΄ΡΠΉΠΌΠ° (0,125 Π΄ΡΠΉΠΌΠ°) |
| ΠΠ²Π°Π΄ΡΠ°ΡΠ½Π°Ρ ΡΡΡΠ±Π° ΠΈΠ· ΠΌΡΠ³ΠΊΠΎΠΉ ΡΡΠ°Π»ΠΈ (ΡΡΠ΅Π½ΠΎΠ²Π°Ρ) | 2β³ (0,125) |
| Π’ΡΡΠ±Π° ΠΈΠ· Π½Π΅ΡΠΆΠ°Π²Π΅ΡΡΠ΅ΠΉ ΡΡΠ°Π»ΠΈ, Π³ΡΠ°ΡΠΈΠΊ 40 | 1,5β³ |
| Π‘ΡΠ΅Π½ΠΊΠ° ΠΈΠ· ΠΊΡΡΠ³Π»ΠΎΠΉ ΡΡΡΠ±Ρ ΠΈΠ· Π½Π΅ΡΠΆΠ°Π²Π΅ΡΡΠ΅ΠΉ ΡΡΠ°Π»ΠΈ | 2,375β³ (0,125) |
| ΠΡΡΠ³Π»Π°Ρ ΡΡΡΠ±ΡΠ°ΡΠ°Ρ ΡΡΠ΅Π½ΠΊΠ° ΠΈΠ· Ρ ΡΠΎΠΌΠΎΠΌΠΎΠ»ΠΈΠ±Π΄Π΅Π½Π° | 2β³ (0,125) |
| Π‘ΡΠ΅Π½ΠΊΠ° ΠΈΠ· ΠΊΡΡΠ³Π»ΠΎΠΉ Π°Π»ΡΠΌΠΈΠ½ΠΈΠ΅Π²ΠΎΠΉ ΡΡΡΠ±Ρ | 2,5 Π΄ΡΠΉΠΌΠ° (0,156 Π΄ΡΠΉΠΌΠ°) |
| ΠΠ°ΠΊΡΠΈΠΌΠ°Π»ΡΠ½ΡΠΉ ΡΠ°Π΄ΠΈΡΡ ΡΠ΅Π½ΡΡΠ°Π»ΡΠ½ΠΎΠΉ Π»ΠΈΠ½ΠΈΠΈ Clr | 10,5β³ |
| ΠΠΎΡΠ½ΠΎΡΡΡ | 110 Π |
| Π’ΡΠ°Π½ΡΠΏΠΎΡΡΠΈΡΠΎΠ²ΠΎΡΠ½ΡΠΉ Π²Π΅Ρ | 550 ΡΡΠ½ΡΠΎΠ² |
| ΠΡΠΎΠ±ΡΠ΅ ΠΏΡΠΈΠΌΠ΅ΡΠ°Π½ΠΈΡ | ΠΠ½ΡΡΡΡΠΌΠ΅Π½ΡΡ Π½Π΅ Π²ΠΊΠ»ΡΡΠ΅Π½Ρ |
| Π’ΡΠ°Π½ΡΠΏΠΎΡΡΠΈΡΠΎΠ²ΠΎΡΠ½ΡΠ΅ ΡΠ°Π·ΠΌΠ΅ΡΡ (Π΄ΡΠΉΠΌΡ) | 60x44x77 |
* Π’Π΅Ρ
Π½ΠΈΡΠ΅ΡΠΊΠΈΠ΅ Ρ
Π°ΡΠ°ΠΊΡΠ΅ΡΠΈΡΡΠΈΠΊΠΈ ΠΌΠΎΠ³ΡΡ Π±ΡΡΡ ΠΈΠ·ΠΌΠ΅Π½Π΅Π½Ρ Π±Π΅Π· ΠΏΡΠ΅Π΄Π²Π°ΡΠΈΡΠ΅Π»ΡΠ½ΠΎΠ³ΠΎ ΡΠ²Π΅Π΄ΠΎΠΌΠ»Π΅Π½ΠΈΡ.
ΠΡΠ΅Π΄Π»ΠΎΠΆΠ΅Π½ΠΈΠ΅ ΡΡΠ°ΡΠ° ΠΠ°Π»ΠΈΡΠΎΡΠ½ΠΈΡ 65
Π’ΡΡΠ±ΠΎΠ³ΠΈΠ± #3 | Π ΠΎΡΡΠΈ
ΠΠΈΠ±ΠΎΡΠ½ΡΠΉ ΡΡΠ°Π½ΠΎΠΊ β3 ΠΈΠ΄Π΅Π°Π»ΡΠ½ΠΎ ΠΏΠΎΠ΄Ρ ΠΎΠ΄ΠΈΡ Π΄Π»Ρ ΠΊΡΡΠΏΠ½ΡΡ ΠΏΡΠΎΠ΅ΠΊΡΠΎΠ² ΠΈ ΠΏΡΠΎΡΠ΅ΡΡΠΈΠΎΠ½Π°Π»ΡΠ½ΠΎΠ³ΠΎ ΠΈΡΠΏΠΎΠ»ΡΠ·ΠΎΠ²Π°Π½ΠΈΡ, ΠΏΡΠ΅Π΄Π»Π°Π³Π°Ρ Π½Π΅ΠΊΠΎΡΠΎΡΡΠ΅ Π·Π°ΠΌΠ΅ΡΠ½ΡΠ΅ ΡΠ»ΡΡΡΠ΅Π½ΠΈΡ ΠΏΠΎ ΡΡΠ°Π²Π½Π΅Π½ΠΈΡ Ρ ΠΊΠΎΠΌΠΌΠ΅ΡΡΠ΅ΡΠΊΠΈ Π΄ΠΎΡΡΡΠΏΠ½ΡΠΌΠΈ Π²Π°ΡΠΈΠ°Π½ΡΠ°ΠΌΠΈ. ΠΠΊΠΎΠ½ΠΎΠΌΡΡΠΈΠΉ Π²ΡΠ΅ΠΌΡ Π±ΡΡΡΡΠΎΠ΄Π΅ΠΉΡΡΠ²ΡΡΡΠΈΠΉ Π·Π°ΠΆΠΈΠΌ ΠΊΡΠ΅ΠΏΠΈΡ ΡΡΡΠ±ΠΊΡ ΠΊ ΠΌΠ°ΡΡΠΈΡΠ΅ ΠΈ Π½Π΅ ΠΎΡΡΠ°Π²Π»ΡΠ΅Ρ ΡΠ»Π΅Π΄ΠΎΠ² Π½Π° ΡΡΡΠ±Π΅, Π² ΠΎΡΠ»ΠΈΡΠΈΠ΅ ΠΎΡ Π±ΠΎΠ»Π΅Π΅ ΡΠ°ΡΠΏΡΠΎΡΡΡΠ°Π½Π΅Π½Π½ΠΎΠ³ΠΎ ΠΈΡΠΏΠΎΠ»ΡΠ·ΠΎΠ²Π°Π½ΠΈΡ Π±ΠΎΠ»ΡΠ°, ΠΏΡΠΈΠΆΠΈΠΌΠ°ΡΡΠ΅Π³ΠΎ ΡΡΡΠ±ΠΊΡ.
ΠΠ΅Π½Π΄Π΅Ρ ΠΌΠΎΠΆΠ½ΠΎ Π±ΡΡΡΡΠΎ ΡΠ½ΡΡΡ ΠΈ ΡΠ±ΡΠ°ΡΡ, ΠΊΠΎΠ³Π΄Π° ΠΎΠ½ Π½Π΅ ΠΈΡΠΏΠΎΠ»ΡΠ·ΡΠ΅ΡΡΡ.
ΠΠ΅Π½Π΄Π΅Ρ ΡΠ°Π·ΡΠ°Π±ΠΎΡΠ°Π½ Ρ ΡΡΠ΅ΡΠΎΠΌ ΠΏΡΠ΅Π΄Π΅Π»ΡΠ½ΠΎΠΉ ΠΏΡΠΎΡΡΠΎΡΡ ΠΊΠΎΠ½ΡΡΡΡΠΊΡΠΈΠΈ. ΠΠΎΠ΄ΡΡΠ°Π²ΠΊΠ° ΠΈ Π±ΠΎΠ»ΡΡΠΈΠ½ΡΡΠ²ΠΎ Π΄ΡΡΠ³ΠΈΡ ΠΊΠΎΠΌΠΏΠΎΠ½Π΅Π½ΡΠΎΠ² Π² Π±ΠΎΠ»ΡΡΠΈΠ½ΡΡΠ²Π΅ ΡΠ»ΡΡΠ°Π΅Π² ΠΌΠΎΠ³ΡΡ Π±ΡΡΡ ΠΈΠ·Π³ΠΎΡΠΎΠ²Π»Π΅Π½Ρ ΠΈΠ· ΠΎΠ±ΡΡΠ½ΡΡ ΡΡΠ°Π»ΡΠ½ΡΡ ΠΎΠ±ΡΠ΅Π·ΠΊΠΎΠ², ΠΊΠΎΡΠΎΡΡΠ΅ ΠΌΠΎΠΆΠ½ΠΎ Π½Π°ΠΉΡΠΈ Π² ΠΎΠ±ΡΡΠ½ΠΎΠΉ ΠΌΠ°ΡΡΠ΅ΡΡΠΊΠΎΠΉ.
Π ΡΠΎ Π²ΡΠ΅ΠΌΡ ΠΊΠ°ΠΊ ΡΡΡΠ°Π³ΠΈ ΠΈ Ρ ΡΠ°ΠΏΠΎΠ²ΠΈΠΊ ΠΌΠΎΠΆΠ½ΠΎ ΠΈΠ·Π³ΠΎΡΠΎΠ²ΠΈΡΡ Ρ ΠΏΠΎΠΌΠΎΡΡΡ Π΄ΡΠ΅Π»ΠΈ ΠΈ Π½ΠΎΠΆΠΎΠ²ΠΊΠΈ ΠΈΠ»ΠΈ ΡΠ³Π»ΠΎΠ²ΠΎΠΉ ΡΠ»ΠΈΡΠΎΠ²Π°Π»ΡΠ½ΠΎΠΉ ΠΌΠ°ΡΠΈΠ½Ρ, ΠΈΡ Π³ΠΎΡΠ°Π·Π΄ΠΎ ΠΏΡΠΎΡΠ΅ ΠΈΠ·Π³ΠΎΡΠΎΠ²ΠΈΡΡ Ρ ΠΏΠΎΠΌΠΎΡΡΡ Π»Π΅Π½ΡΠΎΡΠ½ΠΎΠΉ ΠΏΠΈΠ»Ρ ΠΈΠ»ΠΈ ΠΏΡΠΎΡΡΠΎ ΠΊΡΠΏΠΈΠ² Π½Π°Π±ΠΎΡ ΠΏΠ»Π°ΡΡΠΈΠ½ Π΄Π»Ρ Π»Π°Π·Π΅ΡΠ½ΠΎΠΉ ΡΠ΅Π·ΠΊΠΈ Ρ Π ΠΎΡΡΠΈ!
ΠΠ· Π΄ΠΎΠΏΠΎΠ»Π½ΠΈΡΠ΅Π»ΡΠ½ΡΡ
ΠΈΠ½ΡΡΡΡΠΌΠ΅Π½ΡΠΎΠ² ΡΡΠ΅Π±ΡΡΡΡΡ ΡΠΎΠ»ΡΠΊΠΎ ΠΌΠ°ΡΠΊΠ΅Ρ Ρ Π²ΠΎΠΉΠ»ΠΎΡΠ½ΡΠΌ Π½Π°ΠΊΠΎΠ½Π΅ΡΠ½ΠΈΠΊΠΎΠΌ, ΡΡΠ»Π΅ΡΠΊΠ°, ΡΠ³ΠΎΠ»ΡΠ½ΠΈΠΊ, ΡΠ΅Π³ΡΠ»ΠΈΡΡΠ΅ΠΌΡΠΉ ΡΠ°ΡΠ΅Ρ, Π½ΠΎΠΆΠΎΠ²ΠΊΠ° ΠΈΠ»ΠΈ ΠΎΡΡΠ΅Π·Π½Π°Ρ ΠΏΠΈΠ»Π°, ΠΏΡΠ΅Π΄Π΅ΡΡΠ°Π» ΠΈΠ»ΠΈ ΡΡΡΠ½Π°Ρ Π΄ΡΠ΅Π»Ρ, ΡΠ²Π°ΡΠΎΡΠ½ΡΠΉ Π°ΠΏΠΏΠ°ΡΠ°Ρ ΠΈ ΡΠ³Π»ΠΎΠ²Π°Ρ ΡΠ»ΠΈΡΠΎΠ²Π°Π»ΡΠ½Π°Ρ ΠΌΠ°ΡΠΈΠ½Π° ΠΈΠ»ΠΈ Π½Π°ΠΏΠΈΠ»ΡΠ½ΠΈΠΊ Π΄Π»Ρ ΠΎΡΠ΄Π΅Π»ΠΊΠΈ.
ΠΠ°Π±ΠΎΡΡ ΡΡΠ°ΠΌΠΏΠΎΠ² Π΄Π»Ρ ΠΊΡΡΠ³Π»ΡΡ ΠΈ ΠΊΠ²Π°Π΄ΡΠ°ΡΠ½ΡΡ ΡΡΡΠ± ΠΈ ΡΡΡΠ± ΠΌΠΎΠΆΠ½ΠΎ Π·Π°ΠΊΠ°Π·Π°ΡΡ ΠΏΠΎ ΠΏΠΎΡΡΠ΅ ΠΈΠ»ΠΈ ΡΠ΅ΡΠ΅Π· ΠΠ½ΡΠ΅ΡΠ½Π΅Ρ.
ΠΠ±Π·ΠΎΡ
Π’ΠΠΠΠΠΠ
ΠΠΎΠ΄Ρ ΠΎΠ΄ΠΈΡ: ΠΠΈΠ±ΠΊΠ° ΠΊΡΡΠ³Π»ΡΡ ΠΈ ΠΊΠ²Π°Π΄ΡΠ°ΡΠ½ΡΡ ΡΡΡΠ± Ρ ΠΈΡΠΏΠΎΠ»ΡΠ·ΠΎΠ²Π°Π½ΠΈΠ΅ΠΌ ΠΈΠΌΠ΅ΡΡΠΈΡ ΡΡ Π² ΠΏΡΠΎΠ΄Π°ΠΆΠ΅ Π½Π°Π±ΠΎΡΠΎΠ² ΡΡΠ°ΠΌΠΏΠΎΠ²
Π‘Π±ΠΎΡΠΊΠ°: ΠΠΎΠ»Π½ΡΠΉ Π½Π°Π±ΠΎΡ ΠΏΠ»Π°ΡΡΠΈΠ½ Π΄Π»Ρ ΡΠ°ΠΌΠΎΡΡΠΎΡΡΠ΅Π»ΡΠ½ΠΎΠΉ ΠΈΠ»ΠΈ Π»Π°Π·Π΅ΡΠ½ΠΎΠΉ ΡΠ΅Π·ΠΊΠΈ. ΠΠΎ Π·Π°ΠΏΡΠΎΡΡ ΠΌΡ ΠΌΠΎΠΆΠ΅ΠΌ ΠΏΠΎΡΡΠ°Π²ΠΈΡΡ Π½Π°Π±ΠΎΡΡ Π΄Π»Ρ ΡΠ΅Π·ΠΊΠΈ.
Π ΡΠΊΠΎΠ²ΠΎΠ΄ΡΡΠ²ΠΎ: PDF-ΠΏΠ°ΠΊΠ΅Ρ; zip Π΄Π»Ρ ΠΌΠ³Π½ΠΎΠ²Π΅Π½Π½ΠΎΠΉ Π·Π°Π³ΡΡΠ·ΠΊΠΈ. Π ΡΠΊΠΎΠ²ΠΎΠ΄ΡΡΠ²ΠΎ ΡΠΎΠ΄Π΅ΡΠΆΠΈΡ ΠΏΠΎΠ΄ΡΠΎΠ±Π½ΡΡ ΠΈΠ½ΡΠΎΡΠΌΠ°ΡΠΈΡ, ΠΈΠ½ΡΡΡΡΠΊΡΠΈΠΈ, ΠΈΠ·ΠΎΠ±ΡΠ°ΠΆΠ΅Π½ΠΈΡ ΠΈ ΡΠ΅ΡΡΠ΅ΠΆΠΈ CAD Ρ ΠΏΠΎΠ»Π½ΡΠΌΠΈ ΡΠ°Π·ΠΌΠ΅ΡΠ°ΠΌΠΈ
TRIKES
VW BUG
ΠΡΠΎ ΠΌΠ°ΡΡ Π²ΡΠ΅Ρ ΡΠ°ΠΌΠΎΠ΄Π΅Π»ΡΠ½ΡΡ Π³ΠΈΠ±ΠΎΡΠ½ΡΡ ΡΡΠ°Π½ΠΊΠΎΠ²! ΠΠ½ ΠΏΠΎΠ΄Ρ ΠΎΠ΄ΠΈΡ Π΄Π»Ρ ΡΡΠ΄Π° ΠΈΠΌΠ΅ΡΡΠΈΡ ΡΡ Π² ΠΏΡΠΎΠ΄Π°ΠΆΠ΅ ΡΡΠ°ΠΌΠΏΠΎΠ² ΠΈ ΡΠΏΠΎΡΠΎΠ±Π΅Π½ ΡΠ³ΠΈΠ±Π°ΡΡ ΡΡΡΠ±Ρ DOM ΠΈΠ· Ρ ΡΠΎΠΌΠΎΠΌΠΎΠ»ΠΈΠ±Π΄Π΅Π½ΠΎΠ²ΠΎΠΉ ΠΈ ΠΌΡΠ³ΠΊΠΎΠΉ ΡΡΠ°Π»ΠΈ (Γ12 ΠΌΠΌ [1/2β³] β Γ50 ΠΌΠΌ [2β³]), ΠΊΠ²Π°Π΄ΡΠ°ΡΠ½ΡΠ΅ ΡΡΡΠ±Ρ (12 ΠΌΠΌ [1/2β³] β 50 ΠΌΠΌ [2]. β³]) ΠΈ ΡΡΡΠ±Ρ (Γ12ΠΌΠΌ [1/2β³] β Γ38ΠΌΠΌ [1-1/2β³]).
20,00 Π΄ΠΎΠ»Π». Π‘Π¨Π β 35,00 Π΄ΠΎΠ»Π». Π‘Π¨Π
ΠΠΎΠ½Π²Π΅ΡΡΠ°ΡΠΈΡ Π²Π°Π»ΡΡ ΡΠ°ΡΡΡΠΈΡΠ°Π½Π° ΠΈ Π΄ΠΎΠ»ΠΆΠ½Π° ΠΈΡΠΏΠΎΠ»ΡΠ·ΠΎΠ²Π°ΡΡΡΡ ΡΠΎΠ»ΡΠΊΠΎ Π² ΠΈΠ½ΡΠΎΡΠΌΠ°ΡΠΈΠΎΠ½Π½ΡΡ
ΡΠ΅Π»ΡΡ
.
ΠΡΠΈ ΠΎΡΠΎΡΠΌΠ»Π΅Π½ΠΈΠΈ Π·Π°ΠΊΠ°Π·Π°/ΠΏΠΎΠΊΡΠΏΠΊΠ°Ρ
ΠΏΠΎ-ΠΏΡΠ΅ΠΆΠ½Π΅ΠΌΡ ΠΈΡΠΏΠΎΠ»ΡΠ·ΡΠ΅ΡΡΡ Π²Π°Π»ΡΡΠ° ΠΌΠ°Π³Π°Π·ΠΈΠ½Π° (AUD).
ΠΠΎΠ±Π°Π²ΠΈΡΡ Π² ΠΊΠΎΡΠ·ΠΈΠ½Ρ
ΠΠΎΠ΄ΡΠΎΠ±Π½Π΅Π΅
Π ΡΠΊΠΎΠ²ΠΎΠ΄ΡΡΠ²Π°, ΠΊΠΎΠΌΠΏΠ»Π΅ΠΊΡΡ ΠΈ Π·Π°ΠΏΠ°ΡΠ½ΡΠ΅ ΡΠ°ΡΡΠΈ
Π ΡΠΊΠΎΠ²ΠΎΠ΄ΡΡΠ²ΠΎ Rorty Bender #3
ΠΠΎΠ΄ΡΠΎΠ±Π½ΠΎΠ΅ ΡΡΠΊΠΎΠ²ΠΎΠ΄ΡΡΠ²ΠΎ ΠΏΠΎ ΡΠ±ΠΎΡΠΊΠ΅ ΠΈ ΠΏΠ»Π°Π½Ρ ΡΠ±ΠΎΡΠΊΠΈ ΡΡΡΠ±ΠΎΠ³ΠΈΠ±Π° ΠΏΡΠΎΡΠ΅ΡΡΠΈΠΎΠ½Π°Π»ΡΠ½ΠΎΠ³ΠΎ ΡΡΠΎΠ²Π½Ρ ΡΠ²ΠΎΠΈΠΌΠΈ ΡΡΠΊΠ°ΠΌΠΈ
Π ΡΠΊΠΎΠ²ΠΎΠ΄ΡΡΠ²ΠΎ ΠΏΠΎ ΡΡΡΠ±ΠΎΠ³ΠΈΠ±Ρ β 3Β ΠΏΡΠΎΠ²Π΅Π΄Π΅Ρ Π²Π°Ρ ΡΠ΅ΡΠ΅Π· ΠΊΠ°ΠΆΠ΄ΡΠΉ ΡΡΠ°ΠΏ ΠΏΡΠΎΡΠ΅ΡΡΠ° ΡΡΡΠΎΠΈΡΠ΅Π»ΡΡΡΠ²Π° Ρ ΠΈΡΠΏΠΎΠ»ΡΠ·ΠΎΠ²Π°Π½ΠΈΠ΅ΠΌ ΠΏΡΠΎΡΡΡΡ ΠΏΠΈΡΡΠΌΠ΅Π½Π½ΡΡ ΠΈΠ½ΡΡΡΡΠΊΡΠΈΠΉ ΠΈ ΠΎΡΠ΅Π½Ρ ΠΏΠΎΠ΄ΡΠΎΠ±Π½ΡΡ ΡΠ΅ΡΡΠ΅ΠΆΠ΅ΠΉ Π² ΠΌΠ°ΡΡΡΠ°Π±Π΅. ΠΠΎΠ½Π΅ΡΠ½ΡΠΌ ΡΠ΅Π·ΡΠ»ΡΡΠ°ΡΠΎΠΌ ΡΡΠ°Π» Π³ΠΈΠ±ΠΎΡΠ½ΡΠΉ ΡΡΠ°Π½ΠΎΠΊ ΠΏΡΠΎΡΠ΅ΡΡΠΈΠΎΠ½Π°Π»ΡΠ½ΠΎΠ³ΠΎ ΠΊΠ°ΡΠ΅ΡΡΠ²Π°, ΡΠΏΠΎΡΠΎΠ±Π½ΡΠΉ Π±Π΅Π·ΠΎΡΠΊΠ°Π·Π½ΠΎ Π²ΡΠΏΠΎΠ»Π½ΡΡΡ Π³ΠΈΠ±ΠΊΡ Π² ΡΠ΅ΡΠ΅Π½ΠΈΠ΅ ΠΌΠ½ΠΎΠ³ΠΈΡ Π»Π΅Ρ.
ΠΠ° ΡΠ΅ΡΡΠ΅ΠΆΠ°Ρ ΠΏΠΎΠΊΠ°Π·Π°Π½Ρ Π΄Π²ΠΎΠΉΠ½ΡΠ΅ ΡΠ°Π·ΠΌΠ΅ΡΡ, ΠΏΠΎΠ΄Ρ ΠΎΠ΄ΡΡΠΈΠ΅ Π΄Π»Ρ Π²ΡΠ΅Ρ ; ΠΌΠ΅ΡΡΠΈΡΠ΅ΡΠΊΠΎΠ΅ ΠΈΠ·ΠΌΠ΅ΡΠ΅Π½ΠΈΠ΅ ΠΈΠΌΠ΅Π΅Ρ ΠΏΡΠΈΠΎΡΠΈΡΠ΅Ρ, Π·Π° Π½ΠΈΠΌ ΡΠ»Π΅Π΄ΡΠ΅Ρ Π΄Π΅ΡΡΡΠΈΡΠ½ΠΎΠ΅ Π΄ΡΠΉΠΌΠΎΠ²ΠΎΠ΅ ΠΈΠ·ΠΌΠ΅ΡΠ΅Π½ΠΈΠ΅ Π² ΡΠΊΠΎΠ±ΠΊΠ°Ρ .
ΠΡΠΎΡΡΡΠ΅ ΠΈ ΠΏΠΎΠ½ΡΡΠ½ΡΠ΅ ΠΈΠ½ΡΡΡΡΠΊΡΠΈΠΈ ΠΏΡΠΎΠ²Π΅Π΄ΡΡ Π²Π°Ρ Π½Π΅ ΡΠΎΠ»ΡΠΊΠΎ ΠΏΠΎ ΠΏΡΠΎΡΠ΅ΡΡΡ ΡΡΡΠΎΠΈΡΠ΅Π»ΡΡΡΠ²Π°, Π½ΠΎ ΠΈ ΠΎΠ±ΡΡΡΠ½ΡΡ, ΠΊΠ°ΠΊ ΠΏΠΎΠ»ΡΠ·ΠΎΠ²Π°ΡΡΡΡ Π³ΠΈΠ±ΠΎΡΠ½ΡΠΌ ΡΡΠ°Π½ΠΊΠΎΠΌ, ΠΊΠ°ΠΊ ΡΠΈΡΠ°ΡΡ ΠΏΠ»Π°Π½Ρ Π³ΠΈΠ±ΠΊΠΈ, ΠΊΠ°ΠΊ ΡΠ°ΡΡΡΠΈΡΡΠ²Π°ΡΡ ΠΏΠΎΡΡΠ΅Π±Π½ΠΎΡΡΡ Π² ΠΌΠ°ΡΠ΅ΡΠΈΠ°Π»Π°Ρ
ΠΈ ΠΈΠ·ΠΌΠ΅ΡΡΡΡ Π³ΠΈΠ±Ρ.
ΠΠΊΠ»ΡΡΠ΅Π½Ρ ΡΠ΅ΠΊΠΎΠΌΠ΅Π½Π΄ΡΠ΅ΠΌΡΠ΅ ΠΏΠΎΡΡΠ°Π²ΡΠΈΠΊΠΈ Π³ΠΎΡΠΎΠ²ΡΡ
ΠΈΠ·Π΄Π΅Π»ΠΈΠΉ, ΡΠ°ΠΊΠΈΡ
ΠΊΠ°ΠΊ ΡΡΠ°ΠΌΠΏΡ.
ΠΡΠΎ ΠΏΠΎΠ΄ΡΠΎΠ±Π½ΠΎΠ΅ ΡΡΠΊΠΎΠ²ΠΎΠ΄ΡΡΠ²ΠΎ Π² ΡΠΎΡΠΌΠ°ΡΠ΅ PDF ΠΏΡΠ΅Π΄ΡΡΠ°Π²Π»ΡΠ΅Ρ ΡΠΎΠ±ΠΎΠΉ Π½Π΅ ΠΏΡΠΎΡΡΠΎ Π½Π°Π±ΠΎΡ ΡΠ΅ΡΡΠ΅ΠΆΠ΅ΠΉ Π‘ΠΠΠ , Π° ΡΠΎΡΡΠΎΠΈΡ ΠΈΠ· ΡΠ»Π΅Π΄ΡΡΡΠ΅Π³ΠΎ:
- Π’ΡΠΈΠ΄ΡΠ°ΡΡΒ ΡΠ΅ΡΡΡΠ΅ ΡΡΡΠ°Π½ΠΈΡΡ.
- Π¨Π΅ΡΡΠ½Π°Π΄ΡΠ°ΡΡΒ ΡΠ΅ΡΡΠ΅ΠΆΠ΅ΠΉ Π‘ΠΠΠ (Π² ΡΠΎΡΠΌΠ°ΡΠ΅ PDF).
- Π§Π΅ΡΡΡΠ΅ ΠΏΠΎΠ»ΠΈΡ ΡΠΎΠΌΠ½ΡΡ 3D-ΠΈΠ·ΠΎΠ±ΡΠ°ΠΆΠ΅Π½ΠΈΡ CAD.
- ΠΠΎΠ»Π½Π°Ρ ΡΠΏΠ΅ΡΠΈΡΠΈΠΊΠ°ΡΠΈΡ.
- ΠΠΎΠΌΠ±ΠΈΠ½ΠΈΡΠΎΠ²Π°Π½Π½ΡΠΉ Π΄ΡΠΉΠΌΠΎΠ²ΡΠΉ ΠΈ ΠΌΠ΅ΡΡΠΈΡΠ΅ΡΠΊΠΈΠΉ ΡΠΎΡΠΌΠ°Ρ.
Π€ΠΎΡΠΌΠ°Ρ:
- ΠΠ°ΠΊΠ΅Ρ PDF
- Π€Π°ΠΉΠ» Π² ΡΠΎΡΠΌΠ°ΡΠ΅ ZIP Π΄Π»Ρ ΠΌΠ³Π½ΠΎΠ²Π΅Π½Π½ΠΎΠΉ Π·Π°Π³ΡΡΠ·ΠΊΠΈ
Π Π°ΡΠΏΠ΅ΡΠ°ΡΠ°ΠΉΡΠ΅ Π½Π° Π±ΡΠΌΠ°Π³Π΅ Π²Π°ΡΠ΅Π³ΠΎ Π»ΡΠ±ΠΈΠΌΠΎΠ³ΠΎ ΡΠ°Π·ΠΌΠ΅ΡΠ°, Π²ΡΠ±ΡΠ°Π² Β«Π² ΡΠ°Π·ΠΌΠ΅Ρ ΡΡΡΠ°Π½ΠΈΡΡΒ» Π² ΠΏΠ°ΡΠ°ΠΌΠ΅ΡΡΠ°Ρ ΠΏΠ΅ΡΠ°ΡΠΈ.
Rorty Tube Bender #3 Π€Π°ΠΉΠ»Ρ Π΄Π»Ρ Π»Π°Π·Π΅ΡΠ½ΠΎΠΉ ΡΠ΅Π·ΠΊΠΈ
Π€Π°ΠΉΠ»Ρ DXF, ΠΊΠΎΡΠΎΡΡΠ΅ ΠΌΠΎΠΆΠ½ΠΎ Π²Π·ΡΡΡ Ρ ΡΠΎΠ±ΠΎΠΉ Π½Π° ΠΌΠ΅ΡΡΠ½ΡΠΉ ΡΡΠ°Π½ΠΎΠΊ Π΄Π»Ρ Π»Π°Π·Π΅ΡΠ½ΠΎΠΉ ΡΠ΅Π·ΠΊΠΈ!
ΠΡ ΠΌΠΎΠΆΠ΅ΡΠ΅ Π·Π°ΠΊΠ°Π·Π°ΡΡ Π»Π°Π·Π΅ΡΠ½ΡΡ ΡΠ΅Π·ΠΊΡ, Π³ΠΈΠ΄ΡΠΎΠ°Π±ΡΠ°Π·ΠΈΠ²Π½ΡΡ ΡΠ΅Π·ΠΊΡ ΠΈΠ»ΠΈ ΠΏΠ»Π°Π·ΠΌΠ΅Π½Π½ΡΡ ΡΠ΅Π·ΠΊΡ Ρ Π§ΠΠ£ Π΄Π»Ρ ΡΠ΅Π·ΠΊΠΈ Π²ΡΠ΅Ρ
ΠΎΡΠ½ΠΎΠ²Π½ΡΡ
ΠΊΠΎΠΌΠΏΠΎΠ½Π΅Π½ΡΠΎΠ² Π»ΠΈΡΡΠ°, Π³ΠΎΡΠΎΠ²ΡΡ
ΠΊ ΡΠ±ΠΎΡΠΊΠ΅. ΠΡ ΠΏΠΎΠ»ΡΡΠ°Π΅ΡΠ΅ ΠΎΡΠ»ΠΈΡΠ½ΠΎΠ΅ ΠΊΠ°ΡΠ΅ΡΡΠ²ΠΎ ΠΎΡΠ΄Π΅Π»ΠΊΠΈ ΠΈ ΡΠΊΠΎΠ½ΠΎΠΌΠΈΡΠ΅ ΠΌΠ½ΠΎΠ³ΠΎ ΡΠ°ΡΠΎΠ² ΠΈΠ»ΠΈ ΡΠ°Π±ΠΎΡΡ.
Π ΡΠΊΠΎΠ²ΠΎΠ΄ΡΡΠ²ΠΎ ΠΏΠΎ ΡΠ±ΠΎΡΠΊΠ΅ ΡΡΠ΅Π±ΡΠ΅ΡΡΡ Π΄Π»Ρ Π·Π°Π²Π΅ΡΡΠ΅Π½ΠΈΡ ΡΠ±ΠΎΡΠΊΠΈ, ΡΠ°ΠΉΠ»Ρ DXF ΠΏΡΠ΅Π΄Π½Π°Π·Π½Π°ΡΠ΅Π½Ρ ΡΠΎΠ»ΡΠΊΠΎ Π΄Π»Ρ Π΄Π΅ΡΠ°Π»Π΅ΠΉ ΠΏΠ»Π°ΡΡΠΈΠ½Ρ, Π²ΡΡΠ΅Π·Π°Π½Π½ΡΡ Π»Π°Π·Π΅ΡΠΎΠΌ, ΠΈΠ½ΡΡΡΡΠΊΡΠΈΠΈ ΠΏΠΎ ΡΠ±ΠΎΡΠΊΠ΅ Π½Π΅ ΠΏΡΠΈΠ»Π°Π³Π°ΡΡΡΡ.
ΠΠΊΠ»ΡΡΠ΅Π½Ρ ΡΠ°ΠΉΠ»Ρ Π΄Π»Ρ Π³ΠΈΠ±ΠΎΡΠ½ΡΡ ΡΡΡΠ°Π³ΠΎΠ², ΠΏΠΎΠ΄Ρ ΠΎΠ΄ΡΡΠΈΡ Π΄Π»Ρ ProTools ΠΈ ΡΡΠ°ΠΌΠΏΠΎΠ² JD2, ΠΊΠ°ΠΊ ΡΠΊΠ°Π·Π°Π½ΠΎ Π² ΡΡΠΊΠΎΠ²ΠΎΠ΄ΡΡΠ²Π΅ ΠΏΠΎ ΡΠ±ΠΎΡΠΊΠ΅, Π½Π΅ ΡΠ°Π·ΡΠ΅Π·Π°ΠΉΡΠ΅ ΠΎΠ±Π° ΠΊΠΎΠΌΠΏΠ»Π΅ΠΊΡΠ°.
Π€Π°ΠΉΠ»Ρ DXF ΠΏΡΠ΅Π΄Π½Π°Π·Π½Π°ΡΠ΅Π½Ρ ΡΠΎΠ»ΡΠΊΠΎ Π΄Π»Ρ ΠΎΠ΄Π½ΠΎΠΊΡΠ°ΡΠ½ΠΎΠ³ΠΎ ΠΈΡΠΏΠΎΠ»ΡΠ·ΠΎΠ²Π°Π½ΠΈΡ Π² ΡΠΎΠΎΡΠ²Π΅ΡΡΡΠ²ΠΈΠΈ Ρ Π½Π°ΡΠΈΠΌΠΈ ΡΡΠ»ΠΎΠ²ΠΈΡΠΌΠΈ.
ΠΠΎΠΆΠ΅Ρ ΠΏΠΎΡΡΠ΅Π±ΠΎΠ²Π°ΡΡΡΡ ΡΠ½ΡΡΠΈΠ΅ Π·Π°ΡΡΠ΅Π½ΡΠ΅Π² ΠΈ ΡΠ²Π΅ΡΠ»Π΅Π½ΠΈΠ΅/ΡΠ°Π·Π²ΡΡΡΡΠ²Π°Π½ΠΈΠ΅ ΠΎΡΠ²Π΅ΡΡΡΠΈΠΉ Π΄Π»Ρ ΡΡΠΈΡΡΠΎΠ²/ΡΠ°ΡΠ½ΠΈΡΠΎΠ².
ΠΠΎΠ»Π½ΡΠ΅ Ρ Π°ΡΠ°ΠΊΡΠ΅ΡΠΈΡΡΠΈΠΊΠΈ
| ΠΠΎΡΡΡΠΌΡ | ΠΠΈΠ±ΠΊΠ° ΠΊΡΡΠ³Π»ΡΡ ΠΈ ΠΊΠ²Π°Π΄ΡΠ°ΡΠ½ΡΡ ΡΡΡΠ± Ρ ΠΈΡΠΏΠΎΠ»ΡΠ·ΠΎΠ²Π°Π½ΠΈΠ΅ΠΌ ΠΈΠΌΠ΅ΡΡΠΈΡ ΡΡ Π² ΠΏΡΠΎΠ΄Π°ΠΆΠ΅ ΠΊΠΎΠΌΠΏΠ»Π΅ΠΊΡΠΎΠ² ΡΡΠ°ΠΌΠΏΠΎΠ² |
| Π‘Π±ΠΎΡΠΊΠ° | ΠΠΎΠ»Π½ΡΠΉ Π½Π°Π±ΠΎΡ ΠΏΠ»Π°ΡΡΠΈΠ½ Π΄Π»Ρ ΡΠ°ΠΌΠΎΡΡΠΎΡΡΠ΅Π»ΡΠ½ΠΎΠΉ ΠΈΠ»ΠΈ Π»Π°Π·Π΅ΡΠ½ΠΎΠΉ ΡΠ΅Π·ΠΊΠΈ. ΠΠΎ Π·Π°ΠΏΡΠΎΡΡ ΠΌΡ ΠΌΠΎΠΆΠ΅ΠΌ ΠΏΠΎΡΡΠ°Π²ΠΈΡΡ Π½Π°Π±ΠΎΡΡ Π΄Π»Ρ ΡΠ΅Π·ΠΊΠΈ. |
| Π ΡΠΊΠΎΠ²ΠΎΠ΄ΡΡΠ²ΠΎ | PDF-ΠΏΠ°ΠΊΠ΅Ρ; zip Π΄Π»Ρ ΠΌΠ³Π½ΠΎΠ²Π΅Π½Π½ΠΎΠΉ Π·Π°Π³ΡΡΠ·ΠΊΠΈ. Π ΡΠΊΠΎΠ²ΠΎΠ΄ΡΡΠ²ΠΎ ΡΠΎΠ΄Π΅ΡΠΆΠΈΡ ΠΏΠΎΠ΄ΡΠΎΠ±Π½ΡΡ ΠΈΠ½ΡΠΎΡΠΌΠ°ΡΠΈΡ, ΠΈΠ½ΡΡΡΡΠΊΡΠΈΠΈ, ΠΈΠ·ΠΎΠ±ΡΠ°ΠΆΠ΅Π½ΠΈΡ ΠΈ ΡΠ΅ΡΡΠ΅ΠΆΠΈ CAD Ρ ΠΏΠΎΠ»Π½ΡΠΌΠΈ ΡΠ°Π·ΠΌΠ΅ΡΠ°ΠΌΠΈ |
| ΠΡΠΏΠΎΠ»ΡΠ·ΠΎΠ²Π°Π½ΠΈΠ΅ | ΠΠΈΠ±ΠΊΠ° ΠΊΡΡΠ³Π»ΡΡ ΠΈ ΠΊΠ²Π°Π΄ΡΠ°ΡΠ½ΡΡ ΡΡΡΠ± |
| ΠΠΌΠ΅ΡΡΠΈΠΌΠΎΡΡΡ | 31,8 ΠΌΠΌ (1ΒΌ Π΄ΡΠΉΠΌΠ°), 38,1 ΠΌΠΌ (1Β½ Π΄ΡΠΉΠΌΠ°), 44,45 ΠΌΠΌ (1 ΒΎ Π΄ΡΠΉΠΌΠ°) ΠΈ 50,08 ΠΌΠΌ (2 Π΄ΡΠΉΠΌΠ°).
|

ΠΠ΅ΡΠΌΠΎΡΡΡ Π½Π° ΠΊΠ°ΠΆΡΡΡΡΡΡ ΠΏΡΠΎΡΡΠΎΡΡ ΠΊΠΎΠ½ΡΡΡΡΠΊΡΠΈΠΈ, Ρ ΠΈΡ
ΠΏΠΎΠΌΠΎΡΡΡ ΠΌΠΎΠΆΠ½ΠΎ ΠΏΡΠΎΠΈΠ·Π²ΠΎΠ΄ΠΈΡΡ ΠΏΡΠ°ΠΊΡΠΈΡΠ΅ΡΠΊΠΈ Π²ΡΠ΅ Π½Π΅ΠΎΠ±Ρ
ΠΎΠ΄ΠΈΠΌΡΠ΅ ΠΎΠΏΠ΅ΡΠ°ΡΠΈΠΈ Ρ Π»ΠΈΡΡΠΎΠ²ΡΠΌ ΠΌΠ΅ΡΠ°Π»Π»ΠΎΠΌ, Π² ΡΠΎΠΌ ΡΠΈΡΠ»Π΅ ΡΠ°Π»ΡΡΠ΅Π³ΠΈΠ±ΠΎΡΠ½ΡΠ΅ ΡΠ°Π±ΠΎΡΡ.
Π Π½Π΅ΠΉ Π½ΡΠΆΠ½ΠΎ ΠΏΡΠΎΡΠ²Π΅ΡΠ»ΠΈΡΡ ΠΎΡΠ²Π΅ΡΡΡΠΈΠ΅ ΠΏΠΎΠ΄ Π±ΠΎΠ»Ρ. ΠΡΠΈ Π²Π²Π°ΡΠΈΠ²Π°Π½ΠΈΠΈ Π½Π΅ΠΎΠ±Ρ
ΠΎΠ΄ΠΈΠΌΠΎ ΡΠΎΡΠ½ΠΎ ΠΎΡΡΠ΅Π½ΡΡΠΈΡΠΎΠ²Π°ΡΡ ΠΎΡΠ²Π΅ΡΡΡΠΈΠ΅ ΠΈ Π³Π°ΠΉΠΊΡ Π½Π° ΠΎΡΠ²Π΅ΡΠ½ΠΎΠΌ ΠΎΡΡΠ΅Π·ΠΊΠ΅ ΡΠ°Π²ΡΠ°.
Π ΡΠ»ΡΡΠ°Π΅ ΠΎΠ±Π½Π°ΡΡΠΆΠ΅Π½ΠΈΡ Π½Π΅ ΠΏΡΠΈΡΡΡΠΏΠ°ΡΡ ΠΊ ΡΠ°Π±ΠΎΡΠ΅ Π΄ΠΎ ΠΈΡ
ΡΡΡΡΠ°Π½Π΅Π½ΠΈΡ.



