Схема гильотины: Н3121 Ножницы кривошипные листовые гильотинные с наклонным ножом. Схемы, описание, характеристики
Содержание
Н3118 Ножницы гильотинные, кривошипные Н-3118
Гильотинные ножницы Н3118 выполнены с верхним приводом. Для мерной резки полос гильотина ножницы снабжены задним упором, который установлен с тыльной стороны ножевой балки.
ножницы кривошипные Н3118 листовые с наклонным ножом
- Пульт управления
- Электрошкаф
- Педаль
- Освещение
- Лазерный указатель
- Электромагнитное управление
устройство и работа составных частей ножниц Н3118
Кинематическая схема ножниц гильотинных кривошипных Н3118&
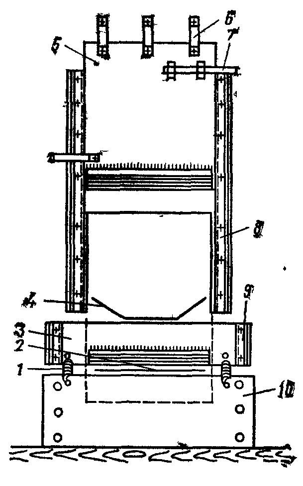
Станина ножниц кривошипных Н3118
Станина – это базовый узел крепления прочих узлов и механизмов ножниц кривошипных Н3118, представляющий собой сварную конструкцию из двух стоек (1) и (3), связанных между собой уголками (2).
На стойки опирается стол 4, к которому винтами крепятся нижние ножи 5.
Для регулировки зазора между ножами стола и ножевой балки стол можно перемещать болтами 11, предварительно отпустив болты 9 и 10, которые после регулировки требуется снова затянуть.
Установка ножа по высоте при переточках производится подгонкой прокладок 6.
На правом крае стола имеется упор 7 поперечной резки, для осуществления продольной резки этот упор снимается.
Станина имеет направляющие, к которым крепятся текстолитовые накладки 8, по которым перемещается ножевая балка.
Привод и валы ножниц кривошипных Н3118
Привод ножниц кривошипных Н3118
Приводной и коленчатый валы ножниц кривошипных Н3118
Привод ножниц Н3118 осуществляется от электродвигателя (1) через клиноременную передачу на маховик (4), через зубчатые колеса (5,6) на коленчатый вал (7). Электродвигатель крепится к подмоторной плите (2,) шарнирно укрепленной на станине. Регулировка натяжения ремня осуществляется гайками (3).
Муфта включения ножниц кривошипных Н3118
На левом конце коленчатого вала в ступице зубчатого колеса установлена шпоночная муфта включения. Втулки 1, 2 и 3 неподвижно посажены в ступице зубчатого колеса. Остальные детали соединены с коленвалом.
Поворотные (рабочая и запорная) шпонки 6 муфты включения включаются пружинами 5 и, поворачиваясь, захватываются полукруглыми пазами втулки 2. Втулки 8 и 9, имеющие полукруглые пазы, дополняют гнезда для круглых концов шпонки. Правый конец рабочий шпонки снабжен легкоотъемным хвостовиком, который, ударяясь об палец, отключает шпонки. Соединенные между собой рычагами. При включении и выключении шпонок угол поворота их ограничивается пазом ведущей втулки.
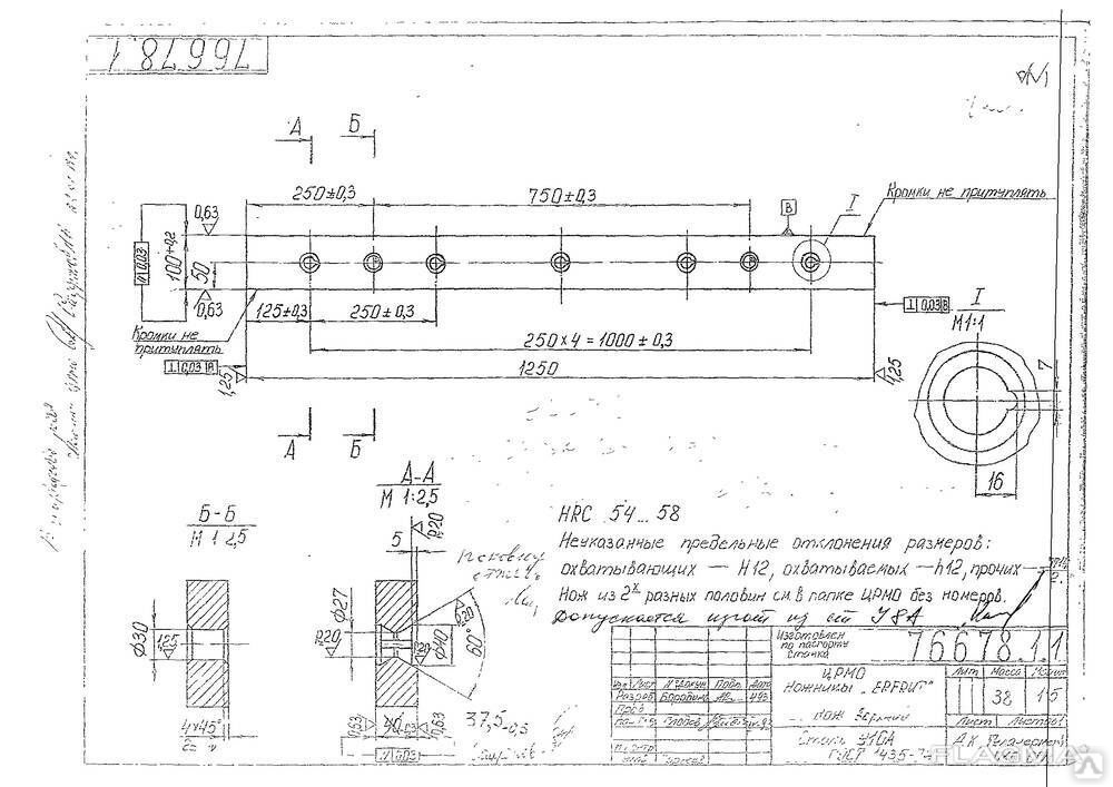
Балка ножевая и прижим ножниц кривошипных Н3118
Ножевая балка представляет собой сварную конструкцию Г-образной формы, усиленную ребрами 5.
К ножевой балке винтами кренятся ножи 6 и задний упор. Усилие на ножевую балку от коленчатого вала передается посредством двух шатунов 7 (см рис. 7). В верхнем положении балка после подъема удерживается пружинами, при ремонте фиксируется в верхнем положении штырем, вставленным в отверстие 20 ножевой балки и станины с левой стороны.
Во время работы ножниц разрезаемый лист прижимается к столу ножниц прижимной балкой 1,связанной выступами 2 с выступами ножевой балки, благодаря чему прижим осуществляется автоматически и согласованно с движением ножевой балки.
Усилие нажатия прижима регулируется пружинами 3, вмонтированными в стаканы на прижимной балке. В нижней части прижимной балки установлена предохранительная решетка 4.
Задний упор ножниц кривошипных Н3118
Установленный с тыльной стороны ножевой балки задний упор ножниц кривошипных Н3118 служит упором для листа при поперечной резке и состоит из упорной линейки и двух цилиндрических валов, перемещаемых вручную. При резке полосы шириной более 500 мм задний упор снимается.
Тормоз ножниц кривошипных Н3118
На правом конце коленчатого вала насажен тормоз периодического действия. За счет эксцентричного расположения шкива (2) по отношению к оси коленчатого вала (1) достигается периодичность торможения. Торможение ножниц кривошипных Н3118 происходит в момент нахождения ножевой балки в верхнем положении, чем устраняется ее забегание под действием сил инерции.
Ограждение ножниц кривошипных Н3118
Ограждение ножниц выполнено из листовой стали и состоит из 3-х кожухов, закрывающих шкивы клиноременной передачи, шестерни привода и тормоз ножниц.
Электромагнитное управление ножницами Н3118
Для получения одиночных резов переключатель ставится в положение «одиночный ход», положение «кнопки» или педаль. При нажатии на кнопку или педаль включается электромагнит, якорь которого поворачивает вилку с пальцем, освобождая зацепляющийся с ним хвостовик, связанный с рабочей поворотной шпонкой. После того под действием пружин шпонки поворачиваются и включают коленчатый вал. Происходит одиночный рез.
Если оператор не отпустит кнопку или педаль в режиме «одиночный ход», блокировка магнитного пускателя по цепи размыкают эту цепь.
Для повторения рабочего хода кнопку или педаль следует отпустить. Для осуществления автоматических ходов переключатель ставится в положение «автоматический ход», положение «кнопки».
Нажатием на пульте пускатель ставится на самопитание и включается электромагнит. Машина работает в режиме «автоматический ход».
Смазка ножниц гильотинных кривошипных Н3118
- Основные трущиеся поверхности смазываются от рычажного шприца для густой смазки через масленки.

- Шестерни привода и подшипники смазываются путем закладывания смазки соответственно на зубья шестерни и в стаканы подшипников.
- В процессе работы ножницы нужно смазывать так, чтобы смазка выступала с боковых мест расположения подшипников. Выступающую из зазоров смазку нужно вытирать.
- Необходимо периодически проверять состояние масленок и маслопроводящих отверстий в деталях и обязательно их прочищать.
- Не реже одного раза в три месяца смазочные отверстия промывать чистым керосином.
Точки смазки ножниц Н3118
С1 С6 | Опоры коленчатого вала |
С2С5 | Шатунные шейки коленчатого вала |
С3 С4 | Ось шатуна |
С7 | Приводной вал |
С8 | Муфта |
С9 | Направляющая ножевой балки |
Режим смазки ножниц Н3118
| Способ смазки | Шприцевание |
| Режим смазки | Периодически во время работы |
| Марка смазочного материала | Солидол марки УС-2 ЦИАТИМ-201ГОСТ 6762-59 |
Настройка ножниц гильотинных кривошипных Н3118 и режим работы
- Настройка ножниц Н3118 для резки полос заданной ширины производится перемещением заднего упора.

- Расстояние заднего упора от режущей кромки нижнего ножа определяется по шкале линеек, укрепленных на штангах заднего упора.
- Электросхема предусматривает возможность работы машины в режимах «Одиночный ход», «Автоматический ход» и «Ручной проворот».
- Резка листов максимальной толщины и ширины, указанных в паспорте ножниц, недопустима на автоматических ходах, так как мощность установленного электродвигателя рассчитана на использование 50% хода.
Регулировка зазора между ножами ножниц Н3118.
- При резке листов зазоры между ножами должны быть установлены в пределах 1/20 — 1/30 толщины разрезаемого листа.
- Прямолинейность линии разреза зависит от правильности регулировки зазора.
- Регулировка зазора между ножами производится передвижением стола (см. описание узла «Станина»), не допускается резка листов максимальной толщины и ширины из материала, с пределом прочности болееσВ=50 кгс/мм2.
- В случае резки листа, предел прочности которого свышеσВ=50 кгс/мм2, максимально допустимая толщина его определяется по формуле:
- σХ — максимально допустимая толщина листа из материала, предел прочности которого более 50 кгс/мм2.

- σ- максимально допустимая для резки толщина листа, указанная в характеристике данных ножниц;
- σВХ- предел прочности материала листа, который необходимо резать.
- σХ — максимально допустимая толщина листа из материала, предел прочности которого более 50 кгс/мм2.
- Необходимо помнить, что точная и надежная работа ножниц зависит от качества заточки ножей.
НЕ ДОПУСКАЙТЕ РЕЗКИ ЗАТУПЛЕННЫМИ НОЖАМИ!
Ножи выполнены с четырьмя режущими кромками, поэтому при затуплении одной кромки ножки необходимо периодически поворачивать.
Смена и регулировка ножей ножниц Н3118.
- Снять прижимную балку.
- Отвернуть гайки винтов, крепящих ножи к ножевой балке, и поочередно снять ножи.
- Проверить ножи и их опорные поверхности в ножевой балке, повернуть каждый нож другой режущей кромкой и установить его на прежнее место. Крепить и устанавливать ножи необходимо, начиная с левого ножа.
- Снять нижние ножи, повернуть и установить второй режущей гранью и закрепить винтами. При переточке ножей необходимо сменить прокладку под нижним ножом и установить режущую кромку заподлицо с верхней плоскостью стола.

- После смены ножей регулируются зазоры между верхними и нижними ножами. Для этого необходимо ослабить болты и гайки, которыми стол крепится к стойкам станины, подвинуть стол назад с помощью регулировочных болтов так, чтобы верхний нож по отношению к нижнему был установлен с зазором.
При установке ножей необходимо между лезвиями выдерживать следующие зазоры:
- толщина разрезаемого листа, мм 1,5-3 3-6,3
- зазор между ножами, мм 0,15 0,35
После установки зазора между ножами следует затянуть болты, крепящие стол к станине.
Первоначальный пуск гильотинных кривошипных Н3118 и режим работы
Подготовка ножниц Н3118 к первоначальному пуску
Для подготовки ножниц гильотинных Н3118 к первоначальному пуску необходимо снять антикоррозийное покрытие, нанесенное перед упаковкой ножниц на обработанные поверхности, заполнить смазкой все устройства, перечисленные в спецификации, по схеме смазки.
Все указания, изложенные в разделах «Электрооборудование» и «Смазка» должны быть выполнены.
Ножницы должны быть заземлены.
Первоначальный пуск ножниц Н3118
- При первоначальном пуске ножниц гильотинных Н3118 необходимо предварительно выполнить все указания по подготовке к первоначальному пуску, изложенные в разделах «Подготовка ножниц к первоначальному пуску», «Электрооборудование», «Смазка», затем переключатель SA2 ставится в положение «Ручной проворот».
- Первый ход ножевой балки осуществляется поворотом маховика с помощью штыря. Если после первого хода не встретится никаких ненормальностей в работе ножниц, то таким же образом совершается еще 2- 3 хода.
- После этого электросхема подготавливается к работе на одиночных ходах, а затем на автоматических.
Особенности разборки и сборки ножниц Н3118
- Прежде чем приступить к разборке ножниц, необходимо отключить их от электросети.
- Осуществляя разборку и сборку ножниц, необходимо соблюдать правила техники безопасности.
- При снятии прижимной балки необходимо предварительно освободить штоки от действия пружин прижима, а затем отвинтить направляющие планки прижимной балки, поддерживая балку краном.

- Перед снятием ножевой балки и шатунов следует зафиксировать балку в верхнем положении, установив в отверстие в верхней части направляющей станины фиксирующий штырь.
- При разборке отдельных механизмов следует руководствоваться приведенными в настоящем руководстве рисунками узловых чертежей.
Порядок установки ножниц гильотинных кривошипных Н3118
Ножницы Н3118 поставляются заказчику в собранном виде. После вскрытия частичной упаковки проверить состояние ножниц, наличие принадлежностей и технической документации согласно контрольно-комплектовочной ведомости. При транспортировке ножницы необходимо стропить согласно приведенной схеме
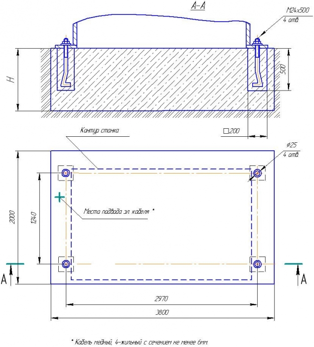
Фундамент ножниц выполняется согласно рисунку:
Глубина заполнения фундамента «Н» принимается в зависимости от грунта. Горизонтальность установки на фундаменте достигается с помощью клиньев и проверяется уровнем, установленным на столе. Точность установки ножниц в поперечном и продольном направлениях должна быть выдержана в пределах 0,2 мм на длине 1000 мм.
После установки и выверки необходимо очистить ножницы от антикоррозийной смазки и пыли и смазать обработанные поверхности тонким слоем масла.
Горизонтальность стола ножниц необходимо проверять периодически не менее одного раза в месяц.
Электрооборудование кривошипных гильотинных ножниц Н3118
Род тока: переменный, 3-х фазный.
Напряжение 380; 50Гц.
Напряжение цепей управления:
- Неременного тока – 110В; 50Гц;
- Напряжений цепей сигнализации – 24В; 50Гц.
- Напряжение цепей освещения – 24В; 50Гц.
На лицевой стороне ножниц размещены: конечный выключатель – блокировка решетки; пульт управления (показан на рисунке 13).
Шкаф управления установлен на левой стойке станины. На правой стенке шкафа установлены: переключатель режимов работы и педаль. На левой стенке шкафа установлен вводный автомат.
Схема электрическая ножниц Н3118
.
QF FU1,FU2 FU3,FU4 | Автомат АЕ2046МП 1н=63А, отс=12, 660В Автоматический выключатель ВА47-29, 16А Автоматический выключатель ВА47-29, 10А, 6А |
HL1 HL2 HL3-HL5 | Индикатор светосигнальный AD-22DS, 24В (красный) AD-22DS, 24В (красный) AD-22DS, 24В (зеленый) |
KМ2,KМ3 | Пускатель магнитный ПМЛ-1100, 10А, 110В |
KM1 | Пускатель магнитный ПМЛ-4100, 63А, 380В |
M | Двигатель 18,5кВт, 1500 об/мин, 380В 50Гц |
SA | Переключатель ПКУ3 |
SQ | Конечный выключатель ВПК 2112 |
SB1 SB3 SB4,SB2 | ВК43-21 11110 1з+1р – красный ВК43-21 11110 1з+1р – красный ВК43-21 11110 1з+1р – черный |
YА | Электромагнит ЭД10102 |
TV1 | Трансформатор ОСМ1 |
SM2 | Переключатель АLC-22 |
SB5 | Кнопка КЕ-011 |
УЛ03 | Лазерный указатель |
Пульт управления ножницами гильотинными Н3118
- лампочка – электросеть подключена
- лампочка – двигатель включен
- переключатель – местное освещение
- кнопка – пуск двигателя
- лампочка – автоматические циклы
- кнопка – пуск циклов (одиночных, автоматических)
- лампочка – одиночные циклы
- кнопка – стоп циклов
- лампочка – педаль
- кнопка – стоп общий
- ключ-бирка
Описание работы ножниц Н3118
Электрическая схема ножниц предусматривает следующие режимы:
- отключено;
- ручное управление;
- педальное управление;
- автоматический цикл.

- Символы органов управления показаны на рисунке 6.
Выбор режимов осуществляется переключателем SА, установленным на правой стенке шкафа.
Ручное управление
Переключатель режимов SA ставится в положение «Ручное управление», при нажатии кнопки SB4 происходит одиночный цикл: включаются контакторы KМ2, КМ3 которые включают электромагнит YA.
Педальное управление
Переключатель режимов SA ставится в положение «Педальное управление», и при нажатии педали SB5 происходит одиночный цикл.
Автоматический цикл
Переключатель режимов SA ставится в положение «Автоматический цикл», и при нажатии кнопки SB4 включается KМ2, КМ3 и становится на самопитание, электромагнит YА постоянно включен, происходят непрерывные хода (циклы) ножевой балки. Отключение производится кнопкой SB3.
Защита и блокировка
Защита схемы осуществляется автоматическими выключателями. Тепловая защита двигателя осуществляется тепловым реле. Электросхемой предусмотрена блокировка – невозможность работы ножниц, если решетка снята, то есть конечный выключатель SQ должен быть нажат.
Сигнализация и местное освещение
Электросхемой предусмотрена следующая сигнализация:
- наличие напряжения HL1;
- двигатель включен HL2;
- автоматические циклы HL3;
- одиночные циклы HL4;
- педаль HL5.
Для освещения линии реза предусмотрена лампа местного освещения.
Меры безопасности при работе на гильотинных кривошипных ножницах Н3118
- Запрещается производить ремонт ножниц гильотинных Н3118 при включенном электродвигателе.
- Наладка, регулировка, чистка, смазка и отладка ножниц Н3118 на ходу запрещается.
- Работать на ножницах со снятыми ограждениями шестерен, маховика, тормоза категорически запрещается.
- Во время работы ножниц необходимо следить за тем, чтобы ножевая балка останавливалась в крайнем верхнем положении, что достигается правильной регулировкой тормоза и диска, управляющего работой бесконтактного выключателя в цепи электромагнитного управления
ножницы гильотинные н3118, ножницы гильотинные н3118 схема гильотина бу 3118 москва 3118 гильотина.
станок гильотина Н408 до 32мм б/у в г.Иркутске, Н3118 электрическа схема ножницы модель Н-3118 электросхема пресс ножницы н-3118. ножи на гильотину Н3118, гильотина 3118 инструкция по ремонту чертежи гельятинных ножниц Н3118 купить запчасти на гильотину б у Н3118 1978 года. гильотина для резки металла н 478, ножи для НВ — 3118 в иркутске ножи для НВ — 3118 в новосибирске гильотина н3118 чертёж шпоночной муфты. ножницы кривошипные н3118 масса, НА 3118 инструкция по эксплуатации гильотинных ножниц Н3118 ремонт гильотина ‘ktrnhjc[tvf не работает через ножной. эл.схема гильотины н428, ножницы н3118 паспорт принципиальная схема нжниц кривошипных листовых Н3118 электрическая схема электропривода гильотины н3118. Паспорт на ножницы НВ3118, запчасти пружины для Н3118 купить станок н3118 электро схема Запчасти на ножницы листовые н3118. ремонтировать шпоночную муфту н3118 форум, Н3118 гильотина характеристики НОЖНИЦЫ Н3118 гильётина модель н 3118. ножницы листовые н3118 запчасти, н3118 фрикционная муфта зап части н3118 ножницы гильотинные электромеханические Н3118.
на 3118 паспорт, запчасти на гельятинные ножницы 3118 гильотина Н3118 схема паспорт на гильотина н3118. гильотина 3118, Купить Бу гильотину н3118 Н-3118 паспорт ножниц Н3118. упор задний у гильотин Н3118, ПРЕСС hОЖhИЦЫ hВ-3118 б/у ножницыкривошипные н-3118 чертежи Н3118 запчасти. Гильотина Н3118 паспорт, фундамент, станок гильотина н3118 масса чертежи «н3118» ножницы н-3118-зап.части, ремонт. фрикционная муфта для Н3118, ножницы гильотинные н3118 инструкция по эксплуатации Ножницы гильотинные Н-3118 год выпуска Скачать паспорт на гильотину Н 3118. НОЖНИЦЫ гильотинные (ГИЛЬОТИНА) hБ 3118 схема эл щита, автоматический комплекс для резки листов АКНА 3218-03 инструкция н3118 — ножницы кривошипные листовые с наклонными ножами 6,3х2000 характеристики н3118. запчасти для гильотины н3118 украина, паспорт для гильотины Н3118 Ножницы гильотинные Н-3118 цена производственные гильятиновые ножницы марки нк3118 электрическая схема. ножи h4118, чертежи на ножницы гильотинные Н3118 принципиальная электроСхема управления на гильотинные ножницыНВ 3118 6мм ножницы гильотинные н3118 паспорт скачать.
муфта н3118 купить, ножницы нв 3118 ПАСПОРТ гильотинные ножницы н3118 схема управления ножницы гильотинные нв 3118 цена. нож гильотины н3118, купить нохи для гилитины н 3118 в перми купить н3118 бу купить запчасти для Н 3118. Нож для гильотины Н3118, ножницы гильотинные модель Н3118 ЗАПЧАСТИ ДЛЯ Н3118 гильотина НВ 3118 инструкция.
Монтаж и перевозка гильотины — полный комплекс работ в Москве и МО
Перевозка и монтаж гильотины одна из услуг, пользующихся спросом у металлургических компаний.
На промышленных и металлургических предприятиях существует потребность в качественной, без зазубрин и деформации кромки, порезке металла, которая обеспечивается при помощи гильотины. Вид оборудования выбирается в зависимости от предполагаемой толщины обрабатываемого листа.
Конструкция гильотины состоит из установленных на станине двух ножей, снабжена облегчающими работу гидравлическими цилиндрами, имеет упоры, ограничивающие движение режущих пластин. Такое оборудование используется и в типографиях, и на металлобазах.
Оно удобно в работе, очень продуктивно, но вызывает трудности при необходимости перевозки и обслуживании.
В этом случае для решения проблемы можно обратиться в Компанию «Синтез ТМК», имеющую необходимую материальную базу и что не менее важно, профессиональных исполнителей, выполняющих весь комплекс работ.
Демонтаж гильотины
От правильности разборки оборудования зависит возможность его успешной сборки в дальнейшем и правильность работы. Демонтаж гильотин должен выполняться в последовательности, определенной в технической документации производителя. При этом обязательно должны соблюдаться требования техники безопасности, разработанные для электрического и металлорежущего оборудования.
В идеале демонтаж гильотин должна производить та же или обладающая такой же квалификацией бригада, которая будет задействована на сборке оборудования. Если это невозможно, вся последовательность разборки должна быть задокументированна, снятые узлы и отдельные детали пронумерованы и тщательно упакованы, что важно для сохранности как самого оборудования, так и техники, используемой для его перевозки, или места хранения.
Проводится разборка при подготовке к ремонту или при перевозке в другое помещение. Для различных моделей гильотин демонтаж может отличаться в деталях.
Но основные операции, требующие внимательности и осторожности, остаются одинаковыми:
- Перед началом разборки оборудование обязательно нужно обесточить и убедиться в отсутствии электропитания
- Снять кожухи, очистить все части от остатков масла.
- Присоединить стропы крана к прижимной балке, тщательно закрепить.
- Ослабить пружины, прижимающие шторки.
- Отвинтить направляющие.
- Балку приподнять при помощи крана и переместить на место упаковки.
- Ножевую балку переместить в верхнее положение и, вставив в расположенные на верхней части направляющих отверстия штыри, зафиксировать ее.
- Снять ножевую балку и шатуны.
- Отсоединить станину от фундамента, для чего может понадобиться использование отбойных молотков, погрузить при помощи крана на транспорт.

Разборка узлов при перевозке не требуется. Вес и габариты ножниц допускают их транспортировку в собранном виде при условии, что будут сняты выступающие балки. Специалисты Компании «Синтез ТМК» оценят сложность демонтажа гильотины, выполнят разборку и упаковку деталей, такелаж и перевозку на место сборки.
Такелаж гильотины
Не каждая фирма, оказывающая такелажные услуги, может иметь дело с гильотинами. Это оборудование достаточно тяжелое, имеет большие габариты и требует особого подхода при выполнении погрузочных и разгрузочных работ. При перевозке гильотин может возникнуть необходимость в трудоемких подготовительных работах. Станина оборудования разбираться не может, а размеры имеет приличные, потому часто требуется увеличение дверных или оконных проемов для обеспечения подачи перемещающего ее грузоподъемного транспорта.
Такелаж гильотины может проводить организация, имеющая соответствующий парк специальной техники для перемещения, подъема, транспортировки, монтажа оборудования.
Немаловажно и наличие профессиональной команды, имеющей опыт работы с такелажем гильотины, знающий технические особенности оборудования, имеющие все необходимые допуски и разрешения.
Всем этим требованиям удовлетворяет Компания «Синтез ТМК», обеспечивающая при перевозке гильотины полный комплекс операций от демонтажа до пуска в эксплуатацию:
- крепление строп и канатов на станине гильотины с учетом рекомендаций, указанных в техническом паспорте;
- подъем гильотины, перемещение и погрузка в транспорт;
- погрузка прижимной и ножевой балок, а также других снятых узлов;
- транспортировка до места назначения;
- выгрузка при помощи подъемного механизма и перемещение к месту установки;
- размещение на фундаменте с совмещением монтажных отверстий и фундаментных болтов.
Для перевозки гильотин используется только исправный транспорт соответствующей грузоподъемности. Если габариты оборудования превышают стандартные, что характерно для моделей большой мощности, необходимо получать разрешение на перевозку в ГИБДД, заказывать сопровождение спецтранспортом.
Для подъема гильотин в зависимости от их характеристик могут использоваться автокраны со стрелой, рассчитанной на подъем от 14 до 90 т, различные краны-манипуляторы и погрузчики. Такелаж гильотины может потребовать использования всевозможных талей, домкратов, лебедок. Чтобы рассчитать нужную прочность канатов, строп, траверсов, подобрать подходящие грузовики и подъемники, нужно при заказе перевозки гильотины подробно указывать характер планируемых работ, предоставить подробную информацию об оборудовании, параметры помещений.
Только в этом случае специалистами компании будет разработан подробный план производства работ, отвечающий реальным условиям, и можно быть уверенным в успешном выполнении перевозки гильотины.
Монтаж гильотины
Для каждой модели гильотины в паспорте приводится схема производства фундамента. Точность основания для металлорежущего оборудования очень важна. Площадка должна быть ровной и твердой. К моменту монтажа гильотины фундамент должен быть подготовлен, в нем установлены фундаментные болты согласно требованиям производителя оборудования.
Если фундамент изготавливается непосредственно перед установкой оборудования, производить монтаж можно только после окончательного затвердевания стяжки, не раньше 15 дней после заливки. В зависимости от необходимости и сложности выполнения подготовки места, где будет установлена гильотина, цена монтажа может значительно увеличиться.
Площадка под монтаж гильотины должна обеспечивать доступ грузоподъемного оборудования. Ножницы распаковываются и перемещаются к месту установки. Основание приподнимается и устанавливается, совмещая отверстия, расположенные на боковинах, с фундаментными болтами. После выставления при помощи уровня основания гильотины с отклонениями не больше 0,1-0,2 мм на каждом метре, болты бетонируются.
Монтаж гильотины производится в порядке, обратном ее разборке. После застывания цемента на станину подается ножевая балка с шатунами и крепится, по окончании чего снимаются фиксирующие штыри. Сверху помещается прижимная балка, привинчивается направляющая и устанавливаются пружины.
На направляющей крепится решетка, защищающая работающего на гильотине человека от травм.
Производится подключение ножниц к электропитанию напряжением 380 В, обязательно проводится заземление. Заканчивается монтаж гильотины проверкой работоспособности, смазкой и регулировкой. Сначала производится очистка деталей и узлов от пыли, которая могла появиться при транспортировке. В масляный бак заливается гидравлическое масло.
После монтажа и подключения электрических частей гильотины нужно выполнить пробное включение и убедиться в правильности работы двигателя, измерить параметры тока в сети. Некоторое время ножницы должны поработать вхолостую. Затем проверяется качество резки на листах различной толщины, поочередно подаваемых в гильотину, начиная с самых тонких. При необходимости выполняется регулировка спускного клапана и выставляется зазор между лезвиями ножей. Обязательно нужно контролировать направление вращения двигателя масляного насоса. Если подключение сделано неправильно, он может быстро выйти из строя.
Правильно выполненный специалистами компании монтаж гильотины обеспечит работоспособность и поможет избежать проблем при эксплуатации.
Техническое обслуживание гильотины
После монтажа и ввода в эксплуатацию возникает проблема технического обслуживания гильотин. Любое оборудование требует, чтобы за его состоянием следил человек, разбирающийся в конструкции, знающий возможных проблемах и способный их предотвратить или исправить.
Компания «Синтез ТМК» не ограничивается такелажными работами, а готова выполнять обслуживание гильотин не только во время пуска и наладки, но и во время использования.
Не всегда целесообразно в организации содержать большой штат мастеров по ремонту каждого вида техники. Нет смысла платить заработную плату узко профилированным профессионалам, рабочая загрузка которых будет не слишком большой. Значительно выгоднее заказать аутсорсинг гильотин в специализирующихся на ремонте оборудования фирмах.
Синтез ТМК относится к организациям, в штат которых входят специалисты, разбирающиеся в ремонте гильотин разных марок и знающие о них все.
Можно быть уверенным, что если за состоянием оборудования будет следить мастер своего дела, регулярно проводя осмотр и сервисное обслуживание гильотин. Он своевременно поменяет масло в гидросистеме, оптимально выставит щель между ножами. Если при работе машины возникнут посторонние шумы или вибрация, он как доктор правильно поставит диагноз и быстро вернет гильотину в рабочее состояние.
Если качество реза ухудшилось, необходимо провести обслуживание гильотинного ножа, который явно затупился. Ножи, имеющие несколько режущих кромок, время от времени поворачивают, а после смены производят их регулировку. Если все грани затупились, ножи отправляются на заточку или покупаются новые.
Специалисты компании «Синтез ТМК» обеспечат обслуживание гильотинного резака или ножниц, проследят за их техническим состоянием, своевременно заменят износившиеся детали. Такая услуга поможет не только содержать оборудование в идеальном состоянии, но и сэкономит заказчику деньги и время на ремонт.
Поделиться:
Бесплатная консультация
Нажимая кнопку «отправить», вы соглашаетесь с политикой конфиденциальности
узнать стоимость работ
Коммерсантъ: Партия, дай порубить — Гильдия ювелиров России
Источник: Коммерсантъ
Газета «Коммерсантъ» №198 от , стр. 1
Белый дом сформировал состав рабочих групп «регуляторной гильотины» и правила, по которым до конца 2020 года будет формироваться новый корпус регуляторных актов в экономике, а значительная часть действующего — будет отменена. Вопреки ожиданиям, большая часть рабочих групп оказалась представлена бизнесом, а ответственными секретарями групп будут преимущественно корпоративные юристы. Согласование отмены или сохранения норм предлагается осуществлять по принципу «двух ключей», а арбитром в спорных и сложных случаях будет выступать аппарат правительства.
Как сообщили “Ъ” в аппарате Белого дома, подкомиссия по совершенствованию контрольных (надзорных) и разрешительных функций федеральных органов исполнительной власти (ФОИВ) утвердила составы 41 рабочей группы по реализации механизма «регуляторной гильотины» и утвердила порядок их работы.
Исходя из опубликованных документов, в инфраструктуре «гильотины» задействовано более 700 профильных специалистов, большинство — представители отраслей.
«Впервые формирование регуляторного законодательства будет происходить с участием максимально широкого круга представителей бизнеса и экспертов»,— отметила директор департамента регуляторной политики правительства Екатерина Салугина-Сороковая.
Баланс между интересами регуляторов и регулируемых отраслей, в основном бизнеса, Белый дом искал несколько месяцев. В итоге предположения о том, что ФОИВ будут полностью контролировать процесс отмены регуляторных актов, не подтвердились — 41 рабочая группа сформирована в основном по отраслевому и тематическому, а не по ведомственному принципам.
Схема рассмотрения заявок на отмену и подтверждение регуляторных актов с 2021 года в рамках «гильотины» будет двухуровневой.
Сначала пакеты нормативно-правовых актов (НПА) и предложения будут рассматриваться экспертами — их пул сформирован при участии Аналитического центра при правительстве, АЦ «Форум», четырех ведущих деловых объединений (РСПП, «Деловая Россия», «Опора России» и ТПП), Ассоциации европейского бизнеса и уполномоченного по защите прав предпринимателей Бориса Титова.
Большинство экспертов — представители регулируемых организаций, академических кругов и НПО, меньшинство — представители органов власти (как правило, руководство).
В некоторых случаях на первом уровне чиновники вообще не будут работать вместе с экспертами во избежание конфликта интересов. На втором уровне пакеты сохраняемых и аннулируемых НПА будут согласовывать по принципу «двух ключей» сопредседатели групп (уже определены, один — представитель регулятора, как правило, глава или статс-секретарь контрольно-надзорного органа, другой — «выборный», из экспертов, в большинстве случаев представитель регулируемых структур).
В случае неразрешимых разногласий между ними вопрос будет решаться в подкомиссии по «гильотине» под руководством замглавы аппарата правительства Юрия Любимова, а в сложных случаях — в правительственной комиссии во главе с вице-премьером Константином Чуйченко. Наконец, текущий контроль за деятельностью рабочих групп также будет сосредоточен вне ФОИВ — список ответственных секретарей групп формировало НП «Объединение корпоративных юристов», почти все они юристы крупных компаний или ассоциаций, включая «дочки» международных компаний, в том числе Auchan, Philip Morris, SUN InBev, Abbott, меньшая часть — представители Аналитического центра при правительстве.
Группы должны полноценно приступить к работе с ноября 2019 года, а поскольку большая часть правительственных актов по «гильотине» уже принята, формирование инфраструктуры «гильотины» на этом, видимо, закончено.
Обновлен до рабочей версии сайт knd.ac.gov.ru (контроль-надзор.рф), предоставляющий возможность внесения внешних инициатив по изменению НПА — форма «регуляторных абсурдов». Отметим, функция «рабочих групп» в 2020 году даже шире, чем анализ существующего корпуса регуляторных НПА: без их протокола Минюст в большинстве случаев не будет регистрировать новые или измененные акты, входящие в сферу действия «гильотины».
Утвержденная (по крайней мере на ближайшие месяцы) схема работы «гильотины» — компромисс между интересами бизнеса и властей, допускающий множественные сценарии работы разных групп. Очевидно, что типовая схема, при которой ФОИВ предлагает свою регуляторную модель для конкретной отрасли или группы отраслей, представляя на утверждение пакет «сохраняемых» НПА, а участники рынков пытаются ее скорректировать, будет не единственной.
Рабочие группы могут готовить собственные предложения, включая новые схемы регулирования и новые наборы обязательных требований, а органы власти, в свою очередь, имеют ограниченную возможность их блокировать. Все будет зависеть от активности групп (а в отраслях с большой долей государства — еще и от внутренних отношений госструктур) и проработки пакетов альтернативных предложений (это возможности в первую очередь для отраслевых ассоциаций). «Окно возможностей» открывается такой структурой управления «гильотиной» ненадолго, но пока выглядит реальным.
Сопротивление предложенной схеме (в первую очередь органов власти) также может принимать инновационные формы. Так, Минтруд вчера официально опубликовал собственный проект «гильотинирования», затрагивающий компетенции сразу двух групп — «трудовые отношения» и «социальное обслуживание». Его можно рассматривать и как предложение сразу двум рабочим группам, и как обычный проект постановления правительства в рамках стандартной процедуры оценки регулирующего воздействия и антикоррупционной экспертизы вне инфраструктуры «гильотины».
Очевидно, Юрию Любимову и Константину Чуйченко придется разрешать такого рода коллизии «вручную»: крупные публичные конфликты в рамках работы «гильотины» с арбитражем на уровне правительства могут повредить самой идее. Полностью же неконфликтная работа конкретных групп, видимо, будет говорить об их неэффективности и сдвиге баланса интересов в пользу органов власти.
Дмитрий Бутрин
Гидравлические гильотинные ножницы CNC HVR
- Описание
- Характеристики
- Комплектация
Контроллер ЧПУ ERCUT 7
Простой в понимании интерфейс обеспечивает удобство и простоту использования. Разработан согласно основным требованиям операторов, широкий, цветной экран, быстрота программирования, легкость в работе, интуитивно-понятный интерфейс. Очень хорошая визуализация, позволяющая быстро настроить станок на требуемые параметры. Программы хранятся в памяти в хранилище, рассчитанном на 1000 программ..3685e4c8.jpg)
Предупреждения об ошибках отображаются в сплывающих окнах, оператор получает всю необходимую информацию о состоянии оборудования и процесса резки. Для предотвращения ввода некорректных значений в программу, доработан блок управления. Мгновенный отзыв на касание оператора обеспечивает сенсорный экран. Реагирует на первое касание: 1.000.000 раз* (*По результатам испытаний в лаборатории, нажатие с усилием в 250 г, через резиновую поверхностью толщиной 8 мм. Данные показатели являются лучшими).
Внешний вид контроллера:
Автоматизированные функции управления
- Автоматическая резка листа
- Регулирование зазора между лезвиями и угла резки производятся автоматически
- Автоматическая настройка длины
- Автоматический возврат режущей балки
Технические особенности
- 7″ сенсорный Led-экран, разрешение — 800 х 480 пикселей
- Оперативная память: SRAM
- Системная память: Flash / SD карты Micro (опционально)
- Связь: RS232, RS485
- USB — опция
Задний упор
Перемещается задний упор по направляющим за счет ШВП (точность позиционирования 0,1 мм).
При резки листа по ширине больше хода заднего упора, он уходит наверх автоматически как только в контроллер вносится соответствующее значение. Также при резке узких листов задний упор может совершать отходы/подходы для предотвращения скручивания и заклинивания.
Зазор между лезвиями ножей
В ножницах серии CNC HVR зазор между лезвиями ножей настраивается 2-мя автономными гидроцилиндрами, работающими с точностью ±0,1мм.
Зев – 350 мм
Передняя защита пальцев, откидывается на 1м с левой стороны и защищена выключателем
Дополнительная комплектация
Лазерная подсветка линии реза
Позволяет легко выполнить и проконтролировать боковые и поперечные разрезы
Поддержка листа пневматическая Х-образного типа
Предотвращает свивание листов и повышает точность при резке длинных и тонких листов.
Отличается от других тем, что опускается параллельно с отрезаемым листом, сопровождая его в процессе всей резки.
Схема к поддержке листа пневматическая Х-образного типа
Предотвращает свивание листов и повышает точность при резке длинных и тонких листов.
Отличается от других тем, что опускается параллельно с отрезаемым листом, сопровождая его в процессе всей резки.
Поддержка листа рычажного типа
Предотвращает свисание листов и повышает качество резки широких и тонких листов
Схема к поддержке листа рычажного типа
Предотвращает свисание листов и повышает качество резки широких и тонких листов
Поддержка листа моноблочного типа
Устраняет свисание листов за счет пневматических опор стола
Схема к поддержке листа моноблочного типа
Устраняет свисание листов за счет пневматических опор стола
Устраняет свисание листов за счет пневматических опор стола
Схема к заднему упору
Система предотвращения скручивания
Предотвращает от скручивания листа при резки на узкие полосы, оставляя поверхность плоской
Угломер 0-180
Система подачи листа
Конвейр
Гильотина специального исполнения
|
модель
|
длина реза
|
толщина резки (42kg/mm²)
|
толщина резки (70kg/mm²)
|
угол резки
|
ход в минуту
|
NUMBER OF HOLD DOWNS
|
давление
|
мощность мотора
|
мощность мотора заднего упора
|
ход заденго упора
|
масло
|
BLADE GAP ADJUSTMENT
|
скорость заднег оупора
|
колво поддержек
|
длина стола
|
зев
|
опция — зев
|
ширина
|
высота стола
|
транспортные размеры
|
длина
|
Ширина
|
Высота
|
Вес
|
|
|
A
|
|
|
|
|
|
|
|
|
|
|
|
|
|
B
|
C
|
|
D
|
E
|
F
|
L
|
K
|
H
|
|
|
|
мм
|
мм
|
мм
|
( ° )
|
1/ход
|
шт
|
тонн
|
кВт
|
кВт
|
мм
|
л
|
мм
|
мм/с
|
шт
|
мм
|
мм
|
мм
|
мм
|
мм
|
мм
|
мм
|
мм
|
мм
|
кг
|
|
CNC HVR 3100 — 6
|
3100
|
6
|
4
|
0.
|
16 — 24
|
14
|
12
|
11
|
0,75
|
1000
|
150
|
0.05 — 0.8
|
110
|
2
|
3500
|
350
|
500
|
2900
|
900
|
2200
|
4980
|
2315
|
2225
|
7820
|
|
CNC HVR 3100 — 10
|
3100
|
10
|
6
|
0.
|
12 — 22
|
14
|
24
|
22
|
1,1
|
1000
|
260
|
0.05 — 1.3
|
110
|
2
|
3640
|
350
|
500
|
3000
|
910
|
2265
|
5100
|
2425
|
2250
|
11000
|
|
CNC HVR 3100 — 13
|
3100
|
13
|
8
|
0.
|
11 — 20
|
14
|
31
|
22
|
1,1
|
1000
|
310
|
0.05 — 1.5
|
110
|
2
|
3680
|
350
|
500
|
3100
|
900
|
2315
|
5110
|
2570
|
2400
|
13300
|
|
CNC HVR 3100 — 16
|
3100
|
16
|
10
|
0.
|
9 — 16
|
14
|
42
|
30
|
1,1
|
1000
|
500
|
0.05 — 1.9
|
110
|
2
|
3760
|
350
|
500
|
3240
|
900
|
2340
|
5210
|
2700
|
2450
|
18700
|
|
CNC HVR 3100 — 20
|
3100
|
20
|
13
|
0.
|
7 — 13
|
14
|
54
|
37
|
1,1
|
1000
|
500
|
0.05 — 2.3
|
110
|
2
|
3800
|
350
|
500
|
3240
|
900
|
2355
|
5220
|
2700
|
2550
|
20700
|
|
CNC HVR 3100 — 25
|
3100
|
25
|
15
|
0.
|
6 — 10
|
20
|
76
|
45
|
1,1
|
1000
|
800
|
0.05 — 3.0
|
110
|
2
|
3880
|
350
|
500
|
3240
|
1000
|
2430
|
5250
|
2725
|
2900
|
30200
|
|
CNC HVR 3100 — 30
|
3100
|
30
|
18
|
0.
|
4 — 7
|
20
|
100
|
45
|
1,5
|
1000
|
800
|
0.05 — 4
|
110
|
2
|
3835
|
350
|
500
|
3760
|
1100
|
2750
|
5560
|
2750
|
3280
|
43000
|
|
CNC HVR 3100 — 35
|
3100
|
35
|
20
|
0.
|
4 — 7
|
25
|
125
|
55
|
2,2
|
1000
|
800
|
0.05 — 4.5
|
110
|
2
|
4000
|
350
|
500
|
3850
|
1150
|
2900
|
5725
|
2900
|
3600
|
56500
|
|
CNC HVR 3100 — 40
|
3100
|
40
|
25
|
0.
|
2 — 4
|
20
|
150
|
75
|
2,2
|
1000
|
1000
|
0.05 — 5.5
|
110
|
2
|
4030
|
350
|
500
|
4180
|
1150
|
3030
|
6070
|
3030
|
4360
|
73000
|
|
CNC HVR 4100 — 6
|
4100
|
6
|
4
|
0.
|
14 — 22
|
18
|
15
|
11
|
0,75
|
1000
|
150
|
0.05 — 0.8
|
110
|
3
|
4500
|
350
|
500
|
2900
|
950
|
2200
|
6000
|
2315
|
2320
|
11500
|
|
CNC HVR 4100 — 10
|
4100
|
10
|
6
|
0.
|
10 — 17
|
18
|
28
|
22
|
1,1
|
1000
|
260
|
0.05 — 1.3
|
110
|
3
|
4640
|
350
|
500
|
3150
|
1000
|
2270
|
6100
|
2580
|
2460
|
17000
|
|
CNC HVR 4100 — 13
|
4100
|
13
|
8
|
0.
|
9 — 15
|
18
|
40
|
22
|
1,1
|
1000
|
310
|
0.05 — 1.5
|
110
|
3
|
4680
|
350
|
500
|
3240
|
1000
|
2325
|
6120
|
2700
|
2600
|
20000
|
|
CNC HVR 4100 — 16
|
4100
|
16
|
10
|
0.
|
7 — 13
|
18
|
52
|
30
|
1,1
|
1000
|
500
|
0.05 — 1.9
|
110
|
3
|
4760
|
350
|
500
|
3240
|
1000
|
2340
|
6220
|
2700
|
2700
|
26500
|
|
CNC HVR 4100 — 20
|
4100
|
20
|
13
|
0.
|
6 — 11
|
18
|
67
|
37
|
1,1
|
1000
|
500
|
0.05 — 2.3
|
110
|
3
|
4800
|
350
|
500
|
3270
|
1000
|
2355
|
6220
|
2700
|
2700
|
31000
|
|
CNC HVR 4100 — 25
|
4100
|
25
|
15
|
0.
|
5 — 9
|
25
|
88
|
45
|
1,1
|
1000
|
800
|
0.05 — 3.0
|
110
|
3
|
4880
|
350
|
500
|
3240
|
1100
|
2440
|
6500
|
2725
|
3235
|
42000
|
|
CNC HVR 4100 — 30
|
4100
|
30
|
18
|
0.
|
3 — 5
|
25
|
120
|
45
|
1,5
|
1000
|
800
|
0.05 — 4
|
110
|
3
|
4920
|
350
|
500
|
3450
|
1150
|
2700
|
7000
|
2700
|
3500
|
58500
|
|
CNC HVR 4100 — 35
|
4100
|
35
|
20
|
0.
|
3 — 5
|
30
|
145
|
55
|
2,2
|
1000
|
800
|
0.05 — 4.5
|
110
|
3
|
5050
|
350
|
500
|
3450
|
1150
|
2800
|
6450
|
2800
|
3600
|
82500
|
|
CNC HVR 4100 — 40
|
4100
|
40
|
25
|
0.
|
2,5 — 4
|
25
|
170
|
75
|
2,2
|
1000
|
1000
|
0.05 — 5.5
|
110
|
3
|
5200
|
350
|
500
|
3500
|
1150
|
2800
|
6600
|
3200
|
3825
|
95500
|
|
CNC HVR 6100 — 6
|
6100
|
6
|
4
|
0.
|
9 — 15
|
26
|
20
|
22
|
1,1
|
1000
|
260
|
0.05 — 0.8
|
110
|
5
|
6660
|
350
|
500
|
3175
|
1000
|
2285
|
8250
|
2475
|
2725
|
26415
|
|
CNC HVR 6100 — 10
|
6100
|
10
|
6
|
0.
|
8 — 13
|
26
|
44
|
22
|
1,1
|
1000
|
260
|
0.05 — 1.3
|
110
|
5
|
6680
|
350
|
500
|
3150
|
1100
|
2285
|
8265
|
2575
|
2725
|
28800
|
|
CNC HVR 6100 — 13
|
6100
|
13
|
8
|
0.
|
6 — 11
|
26
|
60
|
22
|
1,1
|
1000
|
310
|
0.05 — 1.5
|
110
|
5
|
6720
|
350
|
500
|
3050
|
1100
|
2330
|
8365
|
2635
|
2825
|
32300
|
|
CNC HVR 6100 — 16
|
6100
|
16
|
10
|
0.
|
5 — 9
|
26
|
76
|
30
|
1,1
|
1000
|
500
|
0.05 — 1.9
|
110
|
5
|
6820
|
350
|
500
|
3240
|
1100
|
2350
|
8400
|
2700
|
2995
|
41100
|
|
CNC HVR 6100 — 20
|
6100
|
20
|
13
|
0.
|
4 — 7
|
26
|
96
|
37
|
1,1
|
1000
|
500
|
0.05 — 2.3
|
110
|
5
|
6940
|
350
|
500
|
3210
|
1100
|
2375
|
8415
|
2730
|
3120
|
55600
|
|
CNC HVR 6100 — 25
|
6100
|
25
|
15
|
0.
|
3 — 5
|
36
|
123
|
45
|
1,1
|
1000
|
800
|
0.05 — 3.0
|
110
|
5
|
7020
|
350
|
500
|
3185
|
1200
|
2480
|
8570
|
2730
|
3390
|
68500
|
|
CNC HVR 6100 — 30
|
6100
|
30
|
18
|
0.
|
2 — 3
|
36
|
160
|
45
|
1,5
|
1000
|
800
|
0.05 — 4
|
110
|
5
|
6915
|
350
|
500
|
3500
|
1200
|
2700
|
9000
|
2700
|
3800
|
96500
|
|
CNC HVR 6100 — 35
|
6100
|
35
|
20
|
0.
|
2 — 3
|
40
|
180
|
55
|
2,2
|
1000
|
800
|
0.05 — 4.5
|
110
|
5
|
7150
|
350
|
500
|
3550
|
1200
|
2800
|
8700
|
3950
|
3850
|
130500
|
|
CNC HVR 6100 — 40
|
6100
|
40
|
25
|
0.
|
1 — 2
|
36
|
210
|
75
|
2,2
|
1000
|
1000
|
0.05 — 5.5
|
110
|
5
|
7030
|
350
|
500
|
4120
|
1250
|
3790
|
9550
|
3790
|
5820
|
162500
|
Стандартная комплектация
- ЧПУ-контроллер ERCUT 7
- Износостойкие ножи.
По 4-ре режущих кромки на верхнем и на нижнем ноже - Портативная ножная педаль может работать как ручном режим так и в автоматическом
- Гидравлическая система по средствам ЧПУ регулирует зазор автоматически
- Также по средствам ЧПУ регулируется угол резки
- Программируемый, автоматический задний упор, ход — 1000мм, точность позиционирования 0,1мм. Если заготовка по длине больше 1000мм, то упор автоматически поднимает наверх
- Передний опорный кронштейны с линейкой и т-образными пазами
- Шкала с разметкой в дюймах и сантиметрах
- Световая линия реза
- Система аварийной остановки
- Централизованная система смазки
- Защита рук оператора в виде защитных панелей, откидывается на 1м с левой стороны и защищена выключателем
- Зев — 350мм
- Контроллер установлен на консоли
Дополнительная комплектация
- Поддержка листа в следующих исполнениях:
— рычажного типа — для тонких листов
— Х-образная
— моноблочная — сопровождает лист в процессе резки - Угломер 0 — 180.

- Зев 500мм и больше
- Масляный радиатор
- Система подогрева или охлаждения масла
- Лазерная линия резки
- Сдвижные опорные кронштейны
- Лазерная система защиты пальцев
- Система предотвращающая скручиваний узких полос
- Специальный цвет
- Система подачи листа
- Конвейер
- Сепаратор обрезков
- Система механической укладки
- Упор регулируемый под углом, по двум координатам X1; Х2
- Ножи для нержавеющей стали
- Повышенная скорость
- Увеличение хода заднего упора
- Конструкция по запросу
Пневматическая гильотина — принцип работы, описание — Портал о ломе, отходах и экологии
Содержание:
Возможности сжатого воздуха как энергоносителя в приводе
Много ли это или мало?
Схема и конструкция пневматических листовых ножниц
Ножницы для разрезки металлических листов не относятся к числу стандартизированных видов кузнечно-штамповочного оборудования.
Считается, что энергии сжатого воздуха не достаточно для выполнения операций деформирования листового проката. А под бытующим обозначением «Пневматические гильотины» скрываются обычные механические ножницы, в системе включения которых присутствует пневмофрикционная муфта. Вместе с тем конструкции пневматических прессов весьма разнообразны, и включают в себя рамные и двухстоечные агрегаты, в том числе и с большим столом.
Похожие статьи:
- Пресс-ножницы для металлолома
- Гидравлические ножницы (навесные)
Возможности сжатого воздуха как энергоносителя в приводе
Преимущественной схемой резки листа на ножницах является резка наклонными ножами. При этом внедрение инструмента в металл происходит не одновременно по всей длине или ширине реза, а постепенно. Требуемые значение хода ножевой балки при этом увеличивается, зато технологическое усилие заметно снижается.
Видео – как работают пневматические гильотинные ножницы
youtube.com/embed/DA5slG3ls3M» frameborder=»0″ allowfullscreen=»allowfullscreen»/>
Угол наклона ножей измеряется в пределах 1,5…100, причём с увеличением угла усилие снижается, поэтому инструменты с увеличенными углами наклона обычно устанавливают на более мощное оборудование. Угол наклона не должен быть больше 130 (угла трения), поскольку в этом случае происходит выталкивание разрезаемой заготовки из-под ножей. Причём при наличии прижима лист будет изгибаться, а не разделяться.
Сжатый воздух, имея значительно меньшую ( в сравнении в маслом или ионной гидравлической рабочей жидкостью) плотность не может создавать высокие давления. Однако является ли это препятствием для применения пневмопривода в гильотинных ножницах?
В соответствии с действующим ГОСТ 6240, основными параметрами пневмоцилиндров являются:
- Диапазон реализуемых значений рабочего хода.
- Максимальное давление.
- Диаметр поршня цилиндра.
- Конструктивное исполнение цилиндра.

При этом максимальным значением рабочего плунжера может быть 800 мм (при размерном ряде, пригодном для использования в приводе ножниц 160, 250, 320, 400мм; остальные типоразмеры достаточно габаритны, и в схеме ножниц использованы быть не могут).
Соответственно, диапазон рабочих ходов штока, что может быть использовано в конструкции рассматриваемого оборудования, также весьма различен: от 4 до 80 мм.
Двухсторонние пневмоцилиндры по ГОСТ 15608 выпускаются для максимальных давлений, значения которых, в зависимости, от соотношения размеров поршня и штока, могут быть выбраны по следующей таблице:
| Внутренний диаметр поршня, мм | Диаметр штока, мм | Развиваемое усилие, кг при давлении воздуха, кг/см2 | |||
| 4 | 5 | 6 | 8 | ||
| 160 | 40 | 678 | 847 | 1017 | 1357 |
| 200 | 40 | 1085 | 1356 | 1628 | 2170 |
| 250 | 63 | 1654 | 2067 | 2481 | 3307 |
Примечание.
В таблице приведены только такие размеры поршней и штоков, которые могут быть установлены в пневматических приводах ножниц для резки листа.
Таким образом, при наличии двух пневматических цилиндров (а их никак не может быть меньше, учитывая неодновременность производства реза и длину ножевой балки оборудования) с учётом коэффициента потерь воздуха в пневмосистеме управления результирующее усилие резки может находиться в пределах 1220…5900 кг (12,2…59 кН).
к содержанию ↑
Много ли это или мало?
Рассчитаем для сопоставления усилие резки стального листа шириной 1000 мм при толщине листа 1,6 мм. Материалом листовой заготовки примём сталь 10кп, предел прочности которой на срез τ0 составляет 300 МПа.
Расчётное усилие резки с применением наклонных ножей находится по формуле
P = 0,5×s2×τ0 /tgφ,
где:
s – толщина разделяемого материала, мм
φ – угол наклона ножей, град.
Примем угол наклона ножей φ = 50, тогда tgφ = 0,075 и Р = 0,5×1,62×300 /0,075 = 5120 (Н) = 5,12 кН.
Отсюда следует, что резка тонколистового стального проката на гильотинных ножницах, оснащённых пневматическим приводом, вполне возможна даже при сравнительно негабаритных пневматических цилиндрах.
к содержанию ↑
Схема и конструкция пневматических листовых ножниц
Основными узлами рассматриваемого оборудования являются:
- Два пневмоцилиндра, которые размещаются на станине ножниц, с тыльной стороны ножевой балки.
- Приводная тяга, обеспечивающая передачу усилия от пневмоцилиндра на ножевую балку.
- Плунжеры привода, жёстко прикреплённые к ножевой балке.
- Ножевая балка с установленными в соответствующих посадочных местах подвижными наклонными ножами.
- Рабочий стол с пазом для захода ножей.
- Задний/передний упор.
- Пружинный механизм прижима листа.

- Пневмораспределитель.
- Станина.
- Система включения (педальная).
Источником выработки сжатого воздуха для одной пневматической гильотины может быть обычный передвижной компрессор с ресивером объёмом 400…500 л. Мощность привода такого оборудования (например, от торговой марки Elitex) составляет 5.5 кВт, при максимально допустимом давлении 10 ат, и расходе воздуха до 850 л/мин.
Мобильного компрессора будет вполне достаточно
Во избежание повышенного шума при работе компрессоры обычно устанавливают либо в отдельном помещении, либо снабжают шумозащитными экранами.
Пневматические ножницы работают так. При включении компрессора сжатый воздух поступает в ресивер. При достижении требуемого давления включается воздухораспределитель, и энергоноситель поступает в рабочую магистраль к пневмоцилиндрам. Ножевая балка в исходном положении находится вверху, что даёт возможность позиционирования листа по заднему или переднему упору ножниц. При нажатии на педаль происходит ход ножевой баки с прижимом листа к рабочей поверхности стола.
На обратный ход оборудование может быть переключено вручную, по достижении заданной величины хода, либо автоматически. В последнем случае в схему вводятся концевые выключатели, контролирующие перемещение ножевой балки. Воздух при переключении поступает в нижнюю полость обеих рабочих цилиндров, после чего механизм прижима освобождает лист, а отрезанная заготовка под действием собственного веса падает в тару, расположенную сзади пневматических ножниц. Лист передвигается на следующую позицию, и цикл повторяется.
Пневматические ножницы работают только на одиночных ходах, однако при установке дополнительных узлов могут действовать и в полуавтоматическом цикле.
Эксплуатационные достоинства ножниц с пневмоприводом:
- Повышенная скорость резки, что положительно влияет на качество зоны разделения;
- Низкий уровень шума от самих ножниц;
- Простота системы управления.
Для качественной работы воздушные магистрали оборудуются очистными фильтрами.
Ручная гильотина для резки металла
Процесс изготовления металлических конструкций и изделий различного назначения неразрывно связан с необходимостью обработки металла. Иными словами, металл нужно каким-либо образом разрезать, отделять на отрезки и гнуть. Именно так создаются всевозможные изделия, конструкции, узлы и элементы.
Более того, от качества обработки металла на стадии производства напрямую зависит и само качество готовых изделий. Так что профессиональная резка металла ― это основное требование к производственному процессу. Среди оборудования наиболее востребована ручная гильотина для резки металла. Ниже можно ознакомиться с устройством, видами и другими особенностями подобной техники.
Устройство гильотины для резки металла
Гильотина, с помощью которой можно проводить обработку металла ― это единственный в своем роде вид оборудования, который может использоваться не только на крупных предприятиях и заводах, но и в условных домашних условиях.
Гильотина или же, как ее еще называют, гильотинные ножницы, представляет из себя станок, состоящий из трех основных элементов – стола, ножниц и направляющей балки.
Стол, конечно же, используется для удобного размещения листов металла, балка используется для фиксации этих листов, а сам режущий элемент выполняет остальную работу. Ножи, с помощью которых производится резка листового металла, своими руками очень трудно сделать. Они изготавливаются, как правило, из титана либо высококачественных сплавов.
Режущий элемент можно лишь приобрести уже готовым, а затем самостоятельно установить его в станок. Удерживающая балка, как правило, задействуется при работе горизонтальных ножниц. Благодаря этому элементу листы металла в процессе движения ножей не будут «уходить» в сторону. Кроме того, балка защищает и сам нож от повреждения во время резки.
Помимо трех основных элементов конструкции, в гильотине также присутствуют дополнительные ― ходовые элементы, кронштейн, шатун.
Все эти элементы изготавливаются из нержавеющего металла.
Простое, но эффективное устройство гильотины позволяет быстро и легко отрезать отдельные части и заготовки от любых видов металла – сортового, листового и литого. С помощью такого оборудования можно наладить как индивидуальное, так и серийное производство изделий.
Виды гильотин
Существует несколько видов гильотины для резки металла: ручная, механическая, пневматическая, гидравлическая, автоматическая и комбинированная. Наиболее востребована ручная гильотина для резки металла и механическая. Гильотина для резки металла, вне зависимости от её типа, может иметь очень разные технические характеристики. При выборе подобного оборудования нужно внимательно отнестись к оценке именно технических возможностей моделей, а не к информации, которую производители приводят первым делом.
Классифицировать все модели гильотин для резки металла можно, в первую очередь, по методу разделения листов металла.
Резка может осуществляться вертикальными и горизонтальными ножницами. На некоторых моделях гильотин можно увидеть сочетание этих двух способов. Такой тип оборудования предусматривает сначала вертикальные разрезы, а затем ― горизонтальные. Следом выполняется сгиб металла и его дальнейшая обработка.
Второй способ классификации ― по приводу, то есть, элементу, который и приводит в движение режущий элемент. Приводы бывают механическими, гидравлическими и электрическими. Последний тип привода используется, как правило, только при работе с листовым металлом. Что касается гидравлического привода, то он выполнен в виде специального цилиндра-поршня, который заполняется техническим маслом.
Элемент сжимается до максимального значения, а затем разжимается вместе с режущим ножом. Если Вам интересна резка металла в домашних условиях, то можете понять то, что гидравлическая модель будет оптимальным решением. Мощности такого привода вполне хватит для мгновенной резки листов толщиной до 70 мм.
Преимущества гильотины для резки металла
Самое явное преимущество обработки металла с помощью гильотины ― это возможность избежать термической обработки металлических листов. Работа с металлом осуществляется быстро и эффективно, оборудование гарантирует точность резки. Следующее важное преимущество ― стоимость оборудования. Гильотина по стоимости заметно обходит любые другие аппараты для резки металла. То есть, такой станок себе может позволить практически каждый, кто серьезно занимается обработкой металлических листов.
Если еще несколько десятилетий назад профессиональная резка металла могла осуществляться только в условиях производств и заводов, то в настоящее время оборудование стало максимально доступным. Современные технологии превратили технологическую фантастику в реальность, и каждое заинтересованное лицо может воспользоваться этой возможностью.
Поделитесь со своими друзьями в соцсетях ссылкой на этот материал (нажмите на иконки):
«Триллер» Гильотин (телевизионный эпизод 1961)
Триллер
S2.
E2
Все эпизоды
All
- CAST & CREW
- Отзывы пользователей
- Trivia
- EISTED SE SE SE SE 260015
9000 2611111111111111111111111111111111111111111111111111111111111111111111111111111111111111111111111111111111111111111111111.
РЕЙТИНГ IMDb
7.6/10
171
ВАШ РЕЙТИНГ
CrimeDramaHorror
Франция, 1875 год. Затем он вовлекает свою жену в схему, чтобы убедиться, что это… Читать полностьюФранция, 1875 год. Осужденный узнает о правовой лазейке, позволяющей получить помилование, если палач умрет до казни. Затем он привлекает свою жену к плану, чтобы убедиться, что этот невероятный сценарий осуществится. Франция, 1875 год. Осужденный узнает о правовой лазейке, позволяющей получить помилование, если палач умрет до казни.
Затем он вовлекает свою жену в схему, чтобы убедиться, что этот невероятный сценарий осуществится.
Оценка IMDB
7,6/10
171
Ваше рейтинг
- Режиссер
- IDA Lupino
- Писатели
- Charles Beaumont (Adaptation)
- 2 Cornell Woodrich (Staster). Борис Карлофф
- Роберт Миддлтон
- Даниэль Де Мец
- Режиссер
- Ида Лупино
- Сценаристы
- 0010
- Cornell Woolrich (Story)
- Звезды
- Boris Karloff
- Роберт Миддлтон
- Danielle De Metz
Производство, касса и компания9009.
Лучшие актеры
Борис Карлофф
Роберт Миддлтон
- Месье де Пари
Даниэль де Мец
- Бабетта Ламон
Alejandro Rey
- Robert Lamont
Gregory Morton
- The Prison Director
Marcel Hillaire
- The Barber, M. Guillaume
Gaylord Cavallaro
- The Cabbie, Francois Trintineaux
Janine Грандель
- Мадам Леклерк
Питер Брокко
- Помощник директора
Луи Мерсье
- Страж стены
Питер Кэмлин
TED ROTER
- The Funeceer
Guy de Vestel
- The Sist
- (как Гай де Вестель)
David Cross
David Cross
David Cross
9010
David Cross
.
Cross)
Чарльз Ла Торре
- Доктор
Вэнс Ховард
- Гендарм
JACCES Villon
- Официант
SAM BAGLE0003
- Hanging Spectator
- (uncredited)
- Director
- Ida Lupino
- Writers
- Charles Beaumont(adaptation)
- Cornell Woolrich(story)
- All cast & crew
- Production, кассовые сборы и многое другое на IMDbPro
Сюжетная линия
Знаете ли вы
- Цитаты
Роберт Ламонт: Я победил! Я выигрываю! Я выигрываю!
Отзывы пользователей7
Обзор
Рекомендуемый обзор
4/
10
Не особенно логично.
Действие происходит в 19 веке. Роберта (Алехандро Рей) собираются казнить во Франции. Однако он видит потенциальную лазейку. Если палач мертв… его не казнят! Итак, он объясняет это своей жене и просит ее устроить мужчине «несчастный случай»!
В этом эпизоде есть несколько интересных моментов. Во-первых, вступление Бориса Карлоффа намного лучше, чем обычно, и довольно веселое. Во-вторых, здесь возвращаются Алехандро Рей, Роберт Миддлтон и режиссер Ида Лупино — все они были в других эпизодах сериала.
Мне показалось, что в этой истории есть очень глупые элементы. Во-первых, мне очень трудно поверить, что во Франции, если палач умирает, следующий запланированный казнь освобождается. Это просто не имеет смысла, тем более, что люди все время убивали бы палачей!
выдает себя! Во-вторых, даже если бы это было правдой, осужденный был настолько дерзок, что люди знали бы, что он приказал убить палача! Логика в этом просто не в изобилии .
.. несмотря на действительно хорошую игру Миддлтон в этом.
Полезно • 2
2
- Planktonrules
- 23 октября 2018 г.
Подробная информация
Технические спецификации
- Runtime
50 минут
9999999999999999 г. или добавить отсутствующий контент
Еще для изучения
Недавно просмотренные
У вас нет недавно просмотренных страниц
Аудиокнига недоступна | Audible.com
Приносим извинения за неудобства.
Что могло быть причиной этого?
Проблемы с качеством звука
Когда мы обнаруживаем проблему со звуком, она становится нашим приоритетом. Как только это будет исправлено, оно вернется в магазин как можно скорее.
Возможно, издатель потерял права
Когда у наших партнеров больше нет прав на название, мы должны удалить его из нашей коллекции.
Устаревшая ссылка
Если вы попали на эту страницу по сторонней ссылке, сообщите нам, где вы ее нашли, отправив электронное письмо по адресу [email protected].
Готовы к отличному прослушиванию? Выберите из этого списка фаворитов слушателей.
Опасный человек
Роман Элвиса Коула и Джо Пайка, книга 18
По:
Роберт КрейсРассказал:
Люк ДэниэлсПродолжительность: 7 часов 23 минуты
Полный
Джо Пайк не ожидал в тот день спасти женщину.
Он пошел в банк так же, как все ходят в банк, и вернулся к своему джипу. Поэтому, когда Изабель Роланд, одинокая молодая кассирша, которая помогала ему, выходит из банка по пути на обед, Джо оказывается рядом, когда двое мужчин похищают ее. Джо преследует их, и двое мужчин арестованы. Но вместо того, чтобы положить конец драме, аресты — это только начало проблем для Джо и Иззи.
Лето 69-го
По:
Элин ХильдербрандРассказал:
Эрин БеннеттПродолжительность: 13 часов 34 минуты
Полный
Добро пожаловать в самое бурное лето 20 века.
На дворе 1969 год, и для семьи Левиных времена меняются. Каждый год дети с нетерпением ждут возможности провести лето в историческом доме своей бабушки в центре Нантакета. Но, как и многое другое в Америке, здесь все по-другому.
3 из 5 звезд
отличная история
По
Клиент Амазонки
на
07-09-19
Внутренний
Роман
По:
Теа ОбрехтРассказал:
Анна Кламски, Эдоардо Баллерини, Юан МортонПродолжительность: 13 часов 7 минут
Полный
На беззаконных, засушливых землях Аризонской территории в 1893 году разворачиваются две необыкновенные жизни.
Нора — непоколебимая пограничница, ожидающая возвращения мужчин в своей жизни — своего мужа, отправившегося на поиски воды для выжженного дома, и старших сыновей, исчезнувших после бурной ссоры. Нора ждет своего часа со своим младшим сыном, который убежден, что таинственный зверь бродит по земле вокруг их дома.
2 из 5 звезд
Я старался,
По
Джулианна
на
10-09-19
В сонном приморском городке штата Мэн недавно овдовевшая Эвелет «Эвви» Дрейк редко покидает свой большой, мучительно пустой дом спустя почти год после гибели ее мужа в автокатастрофе.
Все в городе, даже ее лучший друг Энди, думают, что горе держит ее взаперти, и Эвви не поправляет их. Тем временем в Нью-Йорке Дин Тенни, бывший питчер Высшей лиги и лучший друг детства Энди, борется с тем, что несчастные спортсмены, живущие в своих самых страшных кошмарах, называют «улюлюканьем»: он больше не может бросать прямо и, что еще хуже, он не может понять почему.
5 из 5 звезд
Хоумран
По
ДалласД
на
30-06-19
Кэсси Хэнвелл родилась для чрезвычайных ситуаций. Как одна из немногих женщин-пожарных в своей пожарной части в Техасе, она повидала их немало и отлично справляется с чужими трагедиями.
Но когда ее отчужденная и больная мать просит ее разрушить свою жизнь и переехать в Бостон, это чрезвычайное положение, которого Кэсси никогда не ожидала. Жесткая бостонская пожарная часть старой школы настолько отличается от старой работы Кэсси, насколько это возможно. Дедовщина, нехватка финансирования и плохие условия означают, что пожарные не очень рады видеть в бригаде «женщину».
2 из 5 звезд
Здесь нет пламени
По
Дина
на
09-07-19
Контрабанда
Стоун Баррингтон, Книга 50
По:
Стюарт ВудсРассказал:
Тони РобертсПродолжительность: 7 часов 23 минуты
Полный
Стоун Баррингтон получает столь необходимый отдых и расслабление под солнцем Флориды, когда с неба падает беда — буквально.
Заинтригованный подозрительными обстоятельствами этого события, Стоун объединяет усилия с остроумным и привлекательным местным детективом для расследования. Но они сталкиваются с проблемой: улики продолжают исчезать.
Шансы есть…
Роман
По:
Ричард РуссоРассказал:
Фред СандерсПродолжительность: 11 часов 17 минут
Полный
Одним прекрасным сентябрьским днем трое мужчин собираются на Мартас-Винъярд, друзья с тех пор, как встретились в колледже примерно в 60-х годах.
Они не могли быть более разными ни тогда, ни даже сегодня: Линкольн был брокером по коммерческой недвижимости, Тедди — издателем крошечной прессы, а Микки — музыкантом не по возрасту. Но у каждого человека есть свои секреты, в дополнение к монументальной тайне, над которой никто из них не переставал ломать голову со времен Дня поминовения на выходных прямо здесь, на Винограднике, в 1971: исчезновение женщины, которую любил каждый из них — Джейси Кэллоуэй.
Аутфокс
По:
Сандра БраунРассказал:
Виктор СлезакПродолжительность: 13 часов 59 минут
Полный
Агент ФБР Дрекс Истон неуклонно преследует одну цель: перехитрить мошенника, когда-то известного как Уэстон Грэм.
За последние 30 лет Уэстон сменил множество имен и бесчисленное количество маскировок, что позволило ему выманить восемь богатых женщин из своего состояния до того, как они бесследно исчезли, их семьи остались без ответов, а власти — без зацепок. Единственная общая черта среди жертв: новый человек в их жизни, который также исчез, не оставив после себя никаких свидетельств своего существования… кроме одного подписного обычая.
Новая девушка
Роман
По:
Даниэль СильваРассказал:
Джордж ГидаллПродолжительность: 10 часов 16 минут
Полный
Она была с ног до головы покрыта дорогой шерстью и пледом, вроде того, что можно было увидеть в бутике Burberry в Harrods.
У нее была кожаная сумка для книг, а не нейлоновый рюкзак. Ее лакированные балетки были блестящими и яркими. Она была приличной, новенькой, скромной. Но было в ней кое-что еще… В эксклюзивной частной школе в Швейцарии тайна окружает личность красивой темноволосой девушки, которая каждое утро прибывает в кортеже, достойном главы государства. Говорят, что она дочь богатого международного бизнесмена.
Опасный человек
Роман Элвиса Коула и Джо Пайка, книга 18
По:
Роберт КрейсРассказал:
Люк ДэниэлсПродолжительность: 7 часов 23 минуты
Полный
Джо Пайк не ожидал в тот день спасти женщину.
Он пошел в банк так же, как все ходят в банк, и вернулся к своему джипу. Поэтому, когда Изабель Роланд, одинокая молодая кассирша, которая помогала ему, выходит из банка по пути на обед, Джо оказывается рядом, когда двое мужчин похищают ее. Джо преследует их, и двое мужчин арестованы. Но вместо того, чтобы положить конец драме, аресты — это только начало проблем для Джо и Иззи.
Лето 69-го
По:
Элин ХильдербрандРассказал:
Эрин БеннеттПродолжительность: 13 часов 34 минуты
Полный
Добро пожаловать в самое бурное лето 20 века.
На дворе 1969 год, и для семьи Левиных времена меняются. Каждый год дети с нетерпением ждут возможности провести лето в историческом доме своей бабушки в центре Нантакета. Но, как и многое другое в Америке, здесь все по-другому.
3 из 5 звезд
отличная история
По
Клиент Амазонки
на
07-09-19
Внутренний
Роман
По:
Теа ОбрехтРассказал:
Анна Кламски, Эдоардо Баллерини, Юан МортонПродолжительность: 13 часов 7 минут
Полный
На беззаконных, засушливых землях Аризонской территории в 1893 году разворачиваются две необыкновенные жизни.
Нора — непоколебимая пограничница, ожидающая возвращения мужчин в своей жизни — своего мужа, отправившегося на поиски воды для выжженного дома, и старших сыновей, исчезнувших после бурной ссоры. Нора ждет своего часа со своим младшим сыном, который убежден, что таинственный зверь бродит по земле вокруг их дома.
2 из 5 звезд
Я старался,
По
Джулианна
на
10-09-19
В сонном приморском городке штата Мэн недавно овдовевшая Эвелет «Эвви» Дрейк редко покидает свой большой, мучительно пустой дом спустя почти год после гибели ее мужа в автокатастрофе.
Все в городе, даже ее лучший друг Энди, думают, что горе держит ее взаперти, и Эвви не поправляет их. Тем временем в Нью-Йорке Дин Тенни, бывший питчер Высшей лиги и лучший друг детства Энди, борется с тем, что несчастные спортсмены, живущие в своих самых страшных кошмарах, называют «улюлюканьем»: он больше не может бросать прямо и, что еще хуже, он не может понять почему.
5 из 5 звезд
Хоумран
По
ДалласД
на
30-06-19
Кэсси Хэнвелл родилась для чрезвычайных ситуаций. Как одна из немногих женщин-пожарных в своей пожарной части в Техасе, она повидала их немало и отлично справляется с чужими трагедиями.
Но когда ее отчужденная и больная мать просит ее разрушить свою жизнь и переехать в Бостон, это чрезвычайное положение, которого Кэсси никогда не ожидала. Жесткая бостонская пожарная часть старой школы настолько отличается от старой работы Кэсси, насколько это возможно. Дедовщина, нехватка финансирования и плохие условия означают, что пожарные не очень рады видеть в бригаде «женщину».
2 из 5 звезд
Здесь нет пламени
По
Дина
на
09-07-19
Контрабанда
Стоун Баррингтон, Книга 50
По:
Стюарт ВудсРассказал:
Тони РобертсПродолжительность: 7 часов 23 минуты
Полный
Стоун Баррингтон получает столь необходимый отдых и расслабление под солнцем Флориды, когда с неба падает беда — буквально.
Заинтригованный подозрительными обстоятельствами этого события, Стоун объединяет усилия с остроумным и привлекательным местным детективом для расследования. Но они сталкиваются с проблемой: улики продолжают исчезать.
Шансы есть…
Роман
По:
Ричард РуссоРассказал:
Фред СандерсПродолжительность: 11 часов 17 минут
Полный
Одним прекрасным сентябрьским днем трое мужчин собираются на Мартас-Винъярд, друзья с тех пор, как встретились в колледже примерно в 60-х годах.
Они не могли быть более разными ни тогда, ни даже сегодня: Линкольн был брокером по коммерческой недвижимости, Тедди — издателем крошечной прессы, а Микки — музыкантом не по возрасту. Но у каждого человека есть свои секреты, в дополнение к монументальной тайне, над которой никто из них не переставал ломать голову со времен Дня поминовения на выходных прямо здесь, на Винограднике, в 1971: исчезновение женщины, которую любил каждый из них — Джейси Кэллоуэй.
Аутфокс
По:
Сандра БраунРассказал:
Виктор СлезакПродолжительность: 13 часов 59 минут
Полный
Агент ФБР Дрекс Истон неуклонно преследует одну цель: перехитрить мошенника, когда-то известного как Уэстон Грэм.
За последние 30 лет Уэстон сменил множество имен и бесчисленное количество маскировок, что позволило ему выманить восемь богатых женщин из своего состояния до того, как они бесследно исчезли, их семьи остались без ответов, а власти — без зацепок. Единственная общая черта среди жертв: новый человек в их жизни, который также исчез, не оставив после себя никаких свидетельств своего существования… кроме одного подписного обычая.
Новая девушка
Роман
По:
Даниэль СильваРассказал:
Джордж ГидаллПродолжительность: 10 часов 16 минут
Полный
Она была с ног до головы покрыта дорогой шерстью и пледом, вроде того, что можно было увидеть в бутике Burberry в Harrods.
У нее была кожаная сумка для книг, а не нейлоновый рюкзак. Ее лакированные балетки были блестящими и яркими. Она была приличной, новенькой, скромной. Но было в ней кое-что еще… В эксклюзивной частной школе в Швейцарии тайна окружает личность красивой темноволосой девушки, которая каждое утро прибывает в кортеже, достойном главы государства. Говорят, что она дочь богатого международного бизнесмена.
Когда Элвуда Кертиса, темнокожего мальчика, выросшего в 1960-х годах в Таллахасси, несправедливо приговаривают к исправительному учреждению для несовершеннолетних под названием Никелевая академия, он оказывается в ловушке в гротескной комнате ужасов. Единственное спасение Элвуда — его дружба с товарищем-правонарушителем Тернером, которая крепнет, несмотря на убежденность Тернера в том, что Элвуд безнадежно наивен, что мир извращен и что единственный способ выжить — это строить планы и избегать неприятностей.
Одно доброе дело
По:
Дэвид БалдаччиРассказал:
Эдоардо БаллериниПродолжительность: 11 часов 41 минута
Полный
На дворе 1949 год.
Когда ветеран войны Алоизиус Арчер выходит из тюрьмы Кардерок, его отправляют в Пока-Сити на условно-досрочное освобождение с коротким списком разрешений и гораздо более длинным списком запретов: регулярно отчитываться перед офицером по условно-досрочному освобождению, не Не ходи в бары, уж точно не пей алкоголь, найди работу и никогда не общайся с распутными женщинами. Маленький городок быстро оказывается более сложным и опасным, чем годы службы Арчера на войне или его время в тюрьме.
Горькие корни
Роман Кэсси Дьюэлл
По:
Си Джей БоксРассказал:
Кристина ДелейнПродолжительность: 9 часов 55 минут
Полный
Бывший полицейский Кэсси Дьюэлл пытается начать все сначала со своей собственной частной детективной фирмой.
Виновная в том, что она не видела своего сына и измученная ночами в засаде, Кэсси, тем не менее, справляется… пока старый друг не просит об одолжении: она хочет, чтобы Кэсси помогла оправдать человека, обвиняемого в нападении на молодую девушку из влиятельной семьи. Вопреки собственному здравому смыслу, Кэсси соглашается. Но в стране Большого Неба в Монтане извращенная семейная верность так же глубока, как и связи с землей, и в этой истории всегда есть что-то большее.
Гостиница
По:
Джеймс Паттерсон, Кэндис ФоксРассказал:
Эдоардо БаллериниПродолжительность: 7 часов 17 минут
Полный
Гостиница в Глостере стоит одиноко на скалистом берегу.
Его уединение подходит бывшему детективу бостонской полиции Биллу Робинсону, начинающему владельцу и трактирщику. Пока дюжина жильцов платит арендную плату, Робинсон не задает никаких вопросов. Как и шериф Клейтон Спирс, живущий на втором этаже. Затем появляется Митчелл Клайн с новым смертельно опасным способом ведения бизнеса. Его команда местных убийц нарушает законы, торгует наркотиками и совершает насилие у дверей гостиницы.
5 из 5 звезд
Отличная Книга!!!!
По
Шелли
на
08-06-19
Поворот ключа
По:
Рут УэрРассказал:
Имоджен ЧерчПродолжительность: 12 часов 13 минут
Полный
Когда она натыкается на объявление, она ищет что-то совершенно другое.
Но это кажется слишком хорошей возможностью, чтобы ее упустить — должность няни с проживанием и ошеломляюще щедрой зарплатой. И когда Роуэн Кейн приезжает в Heatherbrae House, она поражена — роскошным «умным» домом, оснащенным всеми современными удобствами, красивым шотландским нагорьем и этой идеальной семьей. Чего она не знает, так это того, что она вступает в кошмар, который закончится смертью ребенка, а она сама окажется в тюрьме в ожидании суда за убийство.
В течение многих лет слухи о «Болотной девочке» не давали покоя Баркли Коув, тихому городку на побережье Северной Каролины. Так в конце 1969 года, когда красавца Чейза Эндрюса находят мертвым, местные жители сразу подозревают Кию Кларк, так называемую Болотную девушку. Но Кия не то, что говорят. Чувствительная и умная, она годами выживала в одиночестве в болоте, которое называет своим домом, находя друзей среди чаек и уроки в песке.
Комар
Человеческая история нашего самого смертоносного хищника
По:
Тимоти С.
ВинегардРассказал:
Марк ДикинсПродолжительность: 19 часов 7 минут
Полный
Почему джин-тоник был любимым коктейлем британских колонистов в Индии и Африке? Чем Starbucks обязана своему мировому господству? Что защищало жизнь пап на протяжении тысячелетий? Почему Шотландия передала свой суверенитет Англии? Что было секретным оружием Джорджа Вашингтона во время американской революции? Ответом на все эти и многие другие вопросы является комар. Благодаря неожиданным открытиям и стремительному повествованию, The Mosquito – это необыкновенная нерассказанная история о господстве комаров в истории человечества.
Возможно, самая знаменитая и почитаемая писательница нашего времени дарит нам новую коллекцию документальной литературы — богатое собрание ее эссе, речей и размышлений об обществе, культуре и искусстве за четыре десятилетия.
5 из 5 звезд
Освежающие мысли
По
Клиент Амазонки
на
04-02-19
Однажды Лори Готлиб становится терапевтом, который помогает пациентам в своей практике в Лос-Анджелесе. Следующий кризис заставляет ее мир рушиться. Входит Венделл, причудливый, но опытный терапевт, в чей кабинет она внезапно попадает.
С его лысеющей головой, кардиганом и брюками цвета хаки он, кажется, пришел прямо из Центрального кастинга Терапевта. И все же он окажется совсем не таким.
Кохланд
Тайная история Koch Industries и корпоративной власти в Америке
По:
Кристофер ЛеонардРассказал:
Жак РойПродолжительность: 23 часа 15 минут
Полный
Так же, как Стив Колл рассказал историю глобализации через ExxonMobil, а Эндрю Росс Соркин рассказал историю избытка Уолл-стрит до Too Big to Fail , Kochland Кристофера Леонарда использует необычный рассказ о том, как крупнейшая частная компания в мире стала такой большой, чтобы рассказать историю современной корпоративной Америки.
Несвобода прессы – это не просто очередная книга о прессе. [Левин] показывает, как те, кому сегодня доверено сообщать новости, разрушают свободу прессы изнутри — не действиями государственных чиновников, а собственным отказом от репортерской честности и объективной журналистики. Обладая глубоким историческим фоном, которым славятся его книги, Левин приглашает вас в путешествие по ранней американской патриотической прессе, которая с гордостью продвигала принципы, изложенные в Декларации независимости и Конституции.
Диапазон
Почему универсалы побеждают в специализированном мире
По:
Дэвид ЭпштейнРассказал:
Уилл ДэмронПродолжительность: 10 часов 17 минут
Полный
Дэвид Эпштейн изучил самых успешных в мире спортсменов, художников, музыкантов, изобретателей, прогнозистов и ученых.
Он обнаружил, что в большинстве областей — особенно в сложных и непредсказуемых — универсалы, а не специалисты, стремятся преуспеть. Универсалы часто поздно находят свой путь и жонглируют многими интересами, а не сосредотачиваются на одном. Они также более креативны, более гибки и способны устанавливать связи, которые их более специализированные сверстники не видят.
Трюковое зеркало
Размышления о самообмане
По:
Джиа ТолентиноРассказал:
Джиа ТолентиноПродолжительность: 9 часов 46 минут
Полный
Джиа Толентино — несравненный голос своего поколения, борющийся с конфликтами, противоречиями и коренными изменениями, которые определяют нас и наше время.
Теперь, в этом ослепительном сборнике из девяти совершенно оригинальных эссе, написанных с редким сочетанием подачи и резкости, остроумия и бесстрашия, она углубляется в силы, искажающие наше видение, демонстрируя беспрецедентную стилистическую мощь и критическую ловкость.
Техасское наводнение
Внутренняя история Стиви Рэя Вона
По:
Алан Пол, Энди Аледорт, Джимми Вон — эпилогРассказал:
Алан Пол, Энди Аледорт, полный составПродолжительность: 11 часов 39 минут
Полный
Texas Flood предоставляет чистую правду о Стиви Рэе Вогане от тех, кто знал его лучше всего: его брата Джимми, его товарищей по группе Double Trouble Томми Шеннона, Криса Лейтона и Риз Винанс, а также многих других близких друзей, членов семьи, подруг, коллеги-музыканты, менеджеры и члены экипажа.
Пионеры
Героическая история поселенцев, принесших американский идеал Запада
По:
Дэвид МаккалоуРассказал:
Джон Бедфорд ЛлойдПродолжительность: 10 часов 23 минуты
Полный
Номер один New York Times Бестселлер лауреата Пулитцеровской премии историка Дэвида Маккалоу заново открывает важную главу в американской истории, которая «сегодня актуальна как никогда» ( The Wall Street Journal ) — заселение Северо-Западной территории мужественными первопроходцами, преодолевшими невероятные трудности, чтобы построить сообщество, основанное на идеалах, которые определят нашу страну.
Три женщины
По:
Лиза ТаддеоРассказал:
Тара Линн Барр, Марин Айрлэнд, Мена Сувари и другиеПродолжительность: 11 часов 24 минуты
Полный
В пригороде Индианы мы встречаем Лину, домохозяйку и мать двоих детей, чей брак спустя десять лет потерял свою страсть. Изголодавшись по привязанности, Лина ежедневно борется с приступами паники и, воссоединившись со старым увлечением через социальные сети, заводит роман, который быстро становится всепоглощающим.
В Северной Дакоте мы встречаем Мэгги, 17-летнюю ученицу средней школы, у которой якобы есть тайные физические отношения с ее красивым женатым учителем английского языка; последующий уголовный процесс перевернет их тихое сообщество с ног на голову.
Становится
По:
Мишель ОбамаРассказал:
Мишель ОбамаПродолжительность: 19 часов 3 минуты
Полный
В своих мемуарах, содержащих глубокие размышления и завораживающее повествование, Мишель Обама приглашает слушателей в свой мир, рассказывая об опыте, сформировавшем ее — начиная с детства в южной части Чикаго и заканчивая годами, когда она была руководителем, уравновешивающим требования материнство и работа в ее время, проведенное на самом известном в мире адресе.
С безошибочной честностью и живым остроумием она описывает свои триумфы и разочарования, как публичные, так и личные, рассказывая всю свою историю так, как она ее прожила — своими словами и на своих условиях.
В Как быть антирасистом Кенди знакомит слушателей с расширяющимся кругом антирасистских идей — от самых основных концепций до дальновидных возможностей — которые помогут слушателям ясно увидеть все формы расизма, понять их ядовитые последствия и бороться с ними. их в наших системах и в нас самих.
Шестимесячное обслуживание | Безопасность гильотины
ПРОВЕРКИ БЕЗОПАСНОСТИ И ОБСЛУЖИВАНИЯ РАЗ В ШЕСТЬ МЕСЯЦЕВ
Шесть разделов 2 P.I.A.C. 1999 г. Руководство, озаглавленное «Руководство по безопасному использованию гильотин для резки бумаги с механическим приводом», описывает юридические обязанности пользователей* ( См. сноску ) для непрерывной безопасной эксплуатации гильотин.
Все предлагаемые схемы включают проверки и тесты для системы безопасности гильотины, как указано в документе P.
I.A.C., вместе с проверкой функциональных частей машины
По завершении каждого визита мы предоставим вам » Сертификат безопасности » — за которым в надлежащее время следует подробный отчет инженера — для каждой машины, который поможет вам выполнить свои обязательства в соответствии с требованиями, изложенными в Разделе 2 P.I.A.C. Инструкции по безопасности.
Предлагаем следующие схемы:
Приложение A : включает ремонт, регулировку, замену масла/жидкости и сертификацию безопасности.
Приложение B : включает — Регулировки и сертификацию безопасности.
Приложение C : включает — проверки и сертификацию безопасности.
Приложение E : включает — Регулировки, замену масла/жидкости и сертификацию безопасности.
ДЕТАЛИ СХЕМЫ
График A: Капитальный ремонт
Эта схема позволяет осуществлять непрерывную процедуру обслуживания, предназначенную для поддержания гильотин в оптимальном рабочем состоянии.
Работа будет выполняться в два этапа с интервалом в шесть месяцев и будет включать работу, указанную в графике ниже.
Схема технического обслуживания основана на двух посещениях в год, выполняемых двумя техниками, одним электриком и одним механиком.
ЧАСТЬ A. (Первое посещение)
Первое посещение будет включать следующие услуги:
- Коробка передач с ножевым приводом и сцепление/тормоз в сборе.
- Гидравлический узел зажимной балки.
- Привод заднего упора и узлы сцепления/тормоза.
- Система измерения заднего упора.
- Пневматика с воздушным столом.
- Электрическая система управления.
Испытание на остановку, проверка фотоэлектрической защиты и испытание на статическое измерительное усилие прижимной балки в соответствии с рекомендациями P.I.A.C. Методические рекомендации.
Замена гидравлической жидкости и масла в редукторе ножевого привода, а также полная смазка машины в соответствии со спецификациями производителя.
ЧАСТЬ B. (Второй визит)
Второй визит состоится через шесть месяцев.
Эта услуга будет включать только проверку и регулировку, при необходимости, пунктов, перечисленных в Части A, а также будет включать в себя испытание на эффективность остановки, проверку фотоэлектрического ограждения и испытание на статическую измерительную силу прижимной балки в соответствии с рекомендации P.I.A.C. Методические рекомендации.
График B: Незначительное обслуживание
Эта схема предназначена для сведения к минимуму серьезных механических и электрических отказов за счет использования принципа профилактического обслуживания, при котором незначительные неисправности и износ компонентов могут быть выявлены на ранней стадии, а меры по устранению таких проблем могут быть предприняты до возникновения крупных и происходят дорогостоящие отказы.
Работа будет выполняться в два этапа с интервалом в шесть месяцев и будет включать работы, перечисленные в графике ниже.
Схема основана на двух посещениях в год, выполняемых двумя техниками, одним электриком и одним механиком.
Каждое посещение будет включать проверку и регулировку, при необходимости, следующего:
- Редуктор ножевого привода и сцепление/тормоз в сборе.
- Гидравлический узел зажимной балки.
- Привод заднего упора и узлы сцепления/тормоза.
- Система измерения заднего упора.
- Пневматика с воздушным столом.
- Электрическая система управления.
Испытание на остановку, испытание фотоэлектрической защиты и статическое измерительное усилие прижимной балки в соответствии с рекомендацией P.I.A.C. Методические рекомендации.
Замена гидравлической жидкости и масла в редукторе ножевого привода, а также полная смазка машины в соответствии со спецификациями завода-изготовителя будут проводиться в течение 1-го числа. сервисный визит.
График C: Проверка безопасности
Эта схема предназначена для того, чтобы помочь вам выполнять свои обязательства, изложенные в разделе 2, подразделе 2a, Закона об охране здоровья и безопасности на рабочем месте.
Схема технического обслуживания основана на двух посещениях в год, выполняемых одним специалистом.
Каждое посещение будет включать проверку систем безопасности машины. Затем мы предоставим отчет о состоянии машины вместе с сертификатом, подтверждающим стандарт безопасности машины.
Если проверка выявит, что какой-либо аспект защитного оборудования машины не соответствует признанному стандарту, содержащемуся в Руководящих принципах PIAC, мы по запросу будем рады сообщить или предложить расценки на любые необходимые ремонтные работы.
График E: Схема обслуживания
Эта схема предназначена для сведения к минимуму крупных механических и электрических отказов за счет использования принципа профилактического обслуживания, при котором незначительные неисправности и износ компонентов могут быть выявлены на ранней стадии, а меры по устранению таких проблем могут быть предприняты до возникновения крупных и происходят дорогостоящие отказы.
Работа будет выполняться в два этапа с интервалом в шесть месяцев и будет включать работы, перечисленные в графике ниже.
Каждое посещение будет включать осмотр и регулировку, при необходимости, следующего:
В услугу также входят инструментальные испытания для проверки тормозной способности машины и статической калибровочной силы прижимной балки в соответствии с рекомендацией P.I.A.C. документ.
Замена гидравлической жидкости и масла в редукторе ножевого привода, а также полная смазка машины в соответствии со спецификациями производителя.
Гидравлическая жидкость и масло в редукторе ножевого привода заменяются только при первом сервисном обслуживании, а затем ежегодно, однако полная смазка машины будет выполняться через каждые шесть месяцев сервисного обслуживания.
*Примечание: Управление по охране труда и технике безопасности одобряет P.I.A.C. Руководство по безопасности, и как таковое это авторитетный документ, описывающий методы достижения минимального стандарта безопасности на гильотинах. Таким образом, на него можно ссылаться в суде или трибунале, чтобы продемонстрировать уровень безопасности, который должен быть достигнут.
Французские ученые в тени гильотины: список погибших 1792–1794 гг.
ScienceDirect
Корпоративный входВойти/зарегистрироваться
Просмотр PDF
- Доступ через вашего учреждения
Том 18, выпуск 2, 1993 г., страницы 60–63
https://doi.org/913-916(913-916) CGet rights and content
С 27 июля 1793 года, когда Робеспьер вступил в Комитет общественной безопасности, и до 28 июля 1794 года, когда он сам был казнен, жертвами гильотины стали тысячи французских граждан всех сословий.
События, приведшие к смерти Лавуазье, хорошо задокументированы, но менее известны судьбы других академиков, также погибших во время террора.
Список литературы (25)
- J.M. Thompson
Французская революция
(1943)
- R. Hahn
Анатомия научного учреждения: Парижская академия Sciencences, 1666–1803
9
(1971) (1971)
(1971) (1971)
(1971) (1971)
(1971) (1971)
(1971) (1971)
(1971).
- Institut de France
Index biographique de l’Académie des Sciences, 1666–1978
(1979)
- Г.А. Bruckner
Jean Sylvain Bailly, революционный мэр Парижа
(1950)
- S.L.Bailly Chapin
- Рошфуко Болье
- Ж. К. Де ла Метери
Обс. физ.
(1792)
- Д.Дж. Struik
Meusnier
- Rozier
- W.A. Smeaton
Fourcroy, Chemist and Revolutionary
Endeavour
(1992)
G. РамонФредерик де Дитрих, премьер-министр Страсбурга, сторонник революции
(1919)
Коллекционер книг, библиотечный всеядный и критик
2016, Просвещение Томаса Беддоуза: наука, медицина и реформа
Доктор Томас Беддоуз (1760-1808) и лунное общество Бирмингема: Сотрудничество в медицине и науке
2007, Британский журнал исследований восемнадцатого века
Основание метрической системы во Франции в 1790-х годах: важность платиновых измерительных приборов Этьена Ленуара
2000, Platinum Metals Review
Исследовательская статья
Безопасная передача изображения по системам OFDM-VLC с предварительным кодированием DFT на основе скремблирования Чебышевского хаоса
Optics Communications, Volume 397, 2017, pp. 84-90
схема защищенной передачи для систем связи видимого света на основе дискретного преобразования Фурье (DFT) с предварительным кодированием OFDM с использованием карт хаоса Чебышева.
В предлагаемой схеме используются 256 поднесущих и модуляция QPSK. Передаваемый цифровой сигнал изображения шифруется последовательностью хаоса Чебышева. Затем зашифрованный сигнал преобразуется матрицей предварительного кодирования DFT, чтобы уменьшить PAPR сигнала OFDM. После этого зашифрованный и предварительно закодированный с помощью DFT OFDM передается по каналу VLC. Результаты моделирования показывают, что предложенная схема передачи защищенного изображения может не только защитить VLC на основе OFDM с предварительным кодированием DFT от перехватчиков, но также улучшить производительность BER.Исследовательская статья
Синтез и антипролиферативная активность меченых бензофеноном аналогов пиридина в отношении активации фрагментации ядер, опосредованной ДНКазой, активируемой каспазой, при лимфоме Дальтона
Bioorganic Chemistry, Volume 65, 2016, pp. с пиридиновым ядром 8a – l были синтезированы с помощью многостадийной последовательности реакций и оценены на антипролиферативную активность в отношении клеток DLA с помощью in vitro и in vivo исследований.
Результаты показали, что соединения 8b с фторсодержащей группой и 8e с хлорным заместителем в бензоильном кольце бензофенонового каркаса, а также пиридиновое кольцо с гидроксильной группой проявляют значительную активность. Дальнейшее исследование на мышиной модели позволяет предположить, что соединения 8b и 8e обладают способностью активировать активируемую каспазой ДНКазу (эндонуклеазу), которая отвечает за фрагментацию ДНК, основной признак апоптоза, и, таким образом, ингибирует рост асцитной опухоли лимфомы Дальтона.Исследовательская статья
Влияние формы и формы наночастиц оксида меди на токсичность и биоаккумуляцию в питателе отложений,
Capitella teleta
Исследования морской среды, том 111, 2015 г., стр. 99-106
3 90 Были проведены исследования vivo для оценки того, как характеристики наночастиц (NP), такие как форма и форма частиц, влияют на их токсичность и биоаккумуляцию.
В настоящем исследовании устройство подачи депозитов, Capitella teleta использовали для исследования влияния формы меди (НЧ CuO, частиц CuO микронного размера и водного раствора Cu) и формы НЧ CuO (сферы, стержни и пластинки) на токсичность и биоаккумуляцию при воздействии на отложения приблизительно 250 мкг. Cu/г с.в. Не было никакого влияния формы или формы наночастиц на смертность или скорость роста в течение периода воздействия. Тем не менее, смертность увеличилась примерно до 26,3% в среднем при всех обработках Cu после периода очистки, что указывает на отсроченный эффект воздействия Cu, несмотря на более чем 90% очистки Cu в течение этого периода. Было обнаружено значительное влияние формы наночастиц на массу тела, константу общей скорости поглощения и константу скорости депурации, что свидетельствует о предпочтительном накоплении палочек червями. Мы рекомендуем изучить дополнительные сублетальные конечные точки и более длительную продолжительность воздействия, чтобы полностью понять экологические риски наночастиц CuO по сравнению с другими формами Cu, попадающими в системы морских отложений.
Исследовательская статья
Подход, позволяющий использовать адаптивный FEC для OFDM в оптоволоконной системе VLLC
Optics Communications, Volume 405, 2017, pp. 329-333
схема упреждающей коррекции ошибок (FEC) для системы связи с волоконно-оптическим лазерным светом (VLLC) и экспериментальная демонстрация с помощью кода Рида-Соломона (RS). В этом методе на адаптивное сообщение не расходуются дополнительные биты, кроме обучающей последовательности (TS), которая одновременно используется для синхронизации и оценки канала. Следовательно, RS-кодирование может выполняться адаптивно кадр за кадром с помощью последней полученной обратной связи коэффициента ошибок кодового слова (CER), оцененной посредством TS нескольких предыдущих кадров OFDM. Кроме того, экспериментальные результаты показывают, что для стандартного одномодового волокна (SSMF) длиной 20 км и передачи видимого света на расстояние 8 м стоимость кодовых слов RS не более чем на 14,12% ниже, чем стоимость кодов обычного адаптивного поднесущего на основе кода RS 16.
QAM OFDM при частоте ошибок по битам (BER) 10-5.Исследовательская статья
Защита морской среды де-факто от полигона ВМФ: Фараллон-де-Мединилья, Марианский архипелаг, 1997–2012 гг. В период с 1997 по 2012 год на Фараллон-де-Мединилья (полигон для бомбардировок Министерства обороны США на Марианском архипелаге) было проведено четырнадцать съемок; ежегодные обследования проводились с 1999 по 2012 год. Не было никаких доказательств того, что состояние оцениваемых биологических ресурсов изменилось или на него в значительной степени повлияло проводимое там обучение. Ограниченный доступ привел к эффекту сохранения де-факто и перевешивает незначительные негативные последствия обучения. Здоровье, изобилие и биомасса рыб, кораллов и других морских ресурсов сравнимы или превосходят таковые в аналогичных местах обитания в других местах Марианского архипелага. Наше исследование показывает, что наибольшую угрозу морским ресурсам FDM представляют рыбаки, а не военная подготовка.

Исследовательская статья
Протеомный анализ транскрипционных комплексов, связанных с SRF, идентифицировал TFII-I как модулятор функции SRF в нейронах
European Journal of Cell Biology, Volume 95, Issue 1, 2016, pp. сывороточный фактор ответа (SRF) представляет собой фактор транскрипции (TF), регулируемый активностью нейронов, опосредующий немедленный ранний (IEGs, , например, cFos, Egr1 ) и ответ гена актина цитоскелета. Активность SRF регулируется двумя конкурирующими семействами кофакторов, тройными комплексными факторами (TCF; 9).0921 напр. Elk-1) и связанные с миокардином транскрипционные факторы (MRTF).
Мы исследовали механизмы активации SRF при нейрональной активности, связанной с судорогами, у мышей. Фосфорилирование SRF серина 103 или связывание промотора явно не менялись при активации нейронов. Напротив, направленный SRF протеомный анализ выявил установленные и потенциально новые компоненты SRF-ассоциированных белковых комплексов, количество которых было изменено активностью нейронов.
Это включало общий фактор транскрипции TFII-I, для которого мы проводим первый функциональный анализ в нейронах. TFII-I модулировал экспрессию гена-мишени SRF в нейронах, усиливал рост нервных волокон и модулировал форму конусов роста нейронов. Интересно, что TFII-I модулирует два кофактора SRF, Elk-1 и MRTF-A, в противоположных направлениях. Совместная экспрессия TFII-I и Elk-1 увеличивала количество генов-мишеней SRF, связывание промотора SRF и рост нейритов, тогда как TFII-I и MRTF-A приводили к противоположным результатам.Таким образом, мы предоставляем первый анализ белков, связанных с SRF, в масштабе всего протеома. Мы охарактеризовали TFII-I как модулятор активности SRF путем дифференцированного воздействия на два кофактора SRF.
Просмотр полного текста
Авторские права © 1993 г. Опубликовано Elsevier Ltd. мир создан хорошими людьми, а не случайностью, упущением или упущением. Это результат их преднамеренных действий, в которых они упорно продолжали долгое время и которые, по их мнению, были мотивированы высокими идеалами для достижения добродетельных целей.
Это очевидно верно; иначе и быть не могло. Процент положительно злокачественных, порочных или развращенных людей обязательно мал, поскольку ни один вид не смог бы выжить, если бы его представители по привычке и сознательно стремились причинять вред друг другу. Разрушение настолько легко, что даже меньшинство упорно злого умысла может вскоре истребить ничего не подозревающее большинство доброжелательно настроенных людей. Убийство, кража, грабеж и разрушение легко доступны каждому человеку в любое время. Если предполагается, что их удерживает только страх или сила, то чего же они боятся, или кто обратил бы силу против них, если бы все люди были единомышленниками? Конечно, если бы подсчитали вред, причиняемый умышленными преступниками, число убийств, масштабы ущерба и убытков оказались бы ничтожно малыми в общей сумме смертей и опустошения, причиняемых человеческим существам их родом. Поэтому очевидно, что в периоды, когда убивают миллионы, когда практикуются пытки, навязывается голод, угнетение становится политикой, как в настоящее время в значительной части мира и как это часто бывало в прошлом, оно должно быть на высоте.
по воле очень многих добрых людей и даже по прямому их действию, за то, что они считают достойной целью. Когда они не являются непосредственными исполнителями, они, как известно, дают одобрение, разрабатывают обоснования или же замалчивают факты и отвергают обсуждение.
Очевидно, что это не могло произойти без причины. И следует понимать в приведенном выше отрывке, что под хорошими людьми мы подразумеваем хороших людей, людей, которые не будут действовать по своему собственному сознательному умыслу, чтобы причинить вред своим ближним, или совершать такие действия, либо бессмысленно, либо для личной выгоды для себя. . Хорошие люди желают добра своим ближним и желают соответствующим образом направлять свои действия. Далее, мы не имеем здесь в виду никакой «переоценки ценностей», смешивания добра и зла, или внушения, что добро производит зло, или что нет разницы между добром и злом, или между добрыми и злыми людьми; также не предполагается, что добродетели хороших людей на самом деле не являются добродетелями.
Тогда должна быть очень серьезная ошибка в средствах, которыми они пытаются достичь своих целей. Должна быть даже ошибка в их первичных аксиомах, чтобы позволить им продолжать использовать такие средства. Что-то ужасно неправильно в процедуре, где-то. Что это?
Конечно, резня, учиняемая время от времени варварами, вторгающимися в заселенные области, или своенравная жестокость общепризнанных тиранов не составляют и одной десятой ужасов, совершаемых правителями с добрыми намерениями.
Как до нас дошла история, древние египтяне были порабощены фараоном с помощью доброжелательной схемы «вечно нормальных зернохранилищ». Были приняты меры против голода; и тогда люди были вынуждены обменивать собственность и свободу на такие запасы, которые ранее были изъяты из их собственного производства. Нечеловеческая жестокость древних спартанцев практиковалась ради гражданского идеала добродетели.
Ранние христиане преследовались по причинам государства, коллективного благосостояния; и они сопротивлялись праву личности, каждый потому, что у него была собственная душа.
Людей, убитых Нероном из забавы, было немного по сравнению с теми, кто был казнен более поздними императорами по строго «моральным» причинам. Жиль де Рец, который убивал детей, чтобы удовлетворить чудовищное извращение, убил всего не более пятидесяти или шестидесяти человек. Кромвель приказал убить сразу тридцать тысяч человек, включая младенцев на руках, во имя праведности. Даже зверства Петра Великого имели предлог для выгоды своих подданных.
Нынешняя война, начавшаяся с ложного договора, заключенного двумя могущественными державами (Россией и Германией) о том, что они могут безнаказанно сокрушить своих меньших соседей, причем договор был нарушен внезапным нападением на товарища по заговору, была бы невозможна без внутренняя политическая власть, которая в обоих случаях была захвачена под предлогом делать добро нации. Ложь, насилие, массовые убийства применялись сначала к народам обеих наций их правительствами. Можно сказать, и это может быть правдой, что в обоих случаях обладатели власти являются порочными лицемерами; что их сознательной целью с самого начала было зло; тем не менее, они никак не могли прийти силой вообще, кроме с согласия и помощи добрых людей.
Коммунистический режим в России получил власть, пообещав крестьянам землю в терминах, которые, как понимали обещатели, были ложью. Придя к власти, коммунисты отобрали у крестьян уже имевшуюся у них землю; и уничтожали тех, кто сопротивлялся. Это было сделано по плану и намерению; и эта ложь была расценена как «социальная инженерия» поклонниками социалистов в Америке. Если это инжиниринг, то продажа поддельных майнинговых акций — это инжиниринг. Все население России было подвергнуто принуждению и террору; тысячи были убиты без суда и следствия; миллионы были забиты работой и умерли от голода в неволе. Точно так же все население Германии было подвергнуто принуждению и террору теми же средствами. С войной русские в немецких лагерях для военнопленных, немцы в русских лагерях для военнопленных терпят не худшую и не иную участь, чем та, которую терпели и терпят их соотечественники в столь же большом количестве от своих правительств в своих странах. Если и есть какая-то незначительная разница, то они гораздо меньше страдают от мести заклятых врагов, чем от провозглашаемой благосклонности своих соотечественников.
Покоренные народы Европы под пятой России или Германии просто переживают то, через что годами проходили русские и немцы при своих собственных национальных режимах.
Кроме того, основные политические фигуры, находящиеся сейчас у власти в Европе, включая тех, кто продал свои страны захватчикам, являются социалистами, бывшими социалистами или коммунистами; люди, чьим кредо было коллективное благо.
После того, как все это продемонстрировано во всей полноте, мы имеем своеобразное зрелище человека, обрекшего миллионы своих людей на голодную смерть, которым восхищаются филантропы, чья декларируемая цель состоит в том, чтобы у каждого в мире была кварта молока. Дипломированный профессиональный благотворительный работник облетел полмира, чтобы взять интервью у этого мастера своего дела и написать рапсодии, получив такую привилегию. Чтобы удержаться на своем посту, ради заявленной цели делать добро, подобные идеалисты приветствуют политическую поддержку взяточников, осужденных сутенеров и профессиональных головорезов.
Эта близость этих типов неизменно обнаруживается, когда представится случай. Но какой повод?
Почему гуманитарная философия Европы восемнадцатого века положила начало террору? Это произошло не случайно; оно вытекало из первоначальной предпосылки, цели и предложенных средств. Цель состоит в том, чтобы делать добро другим как основное оправдание существования; средство — сила коллектива; и посылка состоит в том, что «хорошо» является коллективным.
Корень вопроса этический, философский и религиозный, включающий отношение человека к вселенной, творческой способности человека к его Творцу. Фатальное расхождение происходит в непризнании нормы человеческой жизни. Очевидно, существование связано с большим количеством боли и страданий. Бедность, болезни и несчастные случаи — это возможности, которые могут быть сведены к минимуму, но не могут быть полностью устранены из тех опасностей, с которыми приходится сталкиваться человечеству. Но это нежелательные условия, которые нужно создавать или увековечивать.
Естественно, у детей есть родители, тогда как большинство взрослых большую часть жизни находятся в удовлетворительном состоянии и занимаются полезной деятельностью, которая приносит им средства к существованию. Это норма и естественный порядок. Болезни маргинальны. Их можно уменьшить за счет предельного излишка производства; иначе вообще ничего нельзя было бы сделать. Поэтому нельзя предполагать, что производитель существует только ради непроизводителя, хороший ради плохого, компетентный ради неспособного; ни любой человек просто ради другого. (Логическая процедура, если считается, что какой-либо человек существует только ради другого, осуществлялась в полуварварских обществах, когда вдову или последователей умершего заживо хоронили в его могиле.)
Великие религии, которые также являются великими интеллектуальными системами, всегда признавали условия естественного порядка. Они предписывают благотворительность, благотворительность как моральное обязательство, которое должно выполняться за счет излишка производителя.
То есть они делают его вторичным по отношению к производству по той неизбежной причине, что без производства нечего было бы давать. Следовательно, они предписывают строжайшее правило, которое следует принимать только добровольно тем, кто желает полностью посвятить свою жизнь делу милосердия, за счет пожертвований. Всегда это рассматривалось как особое призвание, потому что это не могло быть общим образом жизни. Поскольку раздающий милостыню должен получать средства или товары, которые он распределяет, от производителей, он не имеет полномочий распоряжаться; он должен спросить. Когда он вычитает из такой милостыни свои средства к существованию, он должен брать не более чем самое необходимое. В доказательство своего призвания он должен был даже отказаться от счастья семейной жизни, если он должен был получить формальную религиозную санкцию. Никогда ему не приходилось находить утешение в несчастьях других.
Религиозные ордена содержали больницы, воспитывали сирот, раздавали еду. Часть такой милостыни давалась безоговорочно, чтобы не было принуждения под маской благотворительности.
Неприлично заставлять человека лишать его души в обмен на хлеб. В этом и заключается настоящая разница, когда милосердие предписывается во имя Бога, а не по гуманитарным или филантропическим принципам. Если больных лечили, голодных кормили, о сиротах заботились, пока они не вырастали, это, безусловно, было хорошо, а добро нельзя исчислить только в физических терминах; но такие действия были направлены на то, чтобы выдержать бенефициаров в период бедствия и, если возможно, восстановить их норму. Если бедствующий может частично помочь себе, тем лучше. Если они не могли, этот факт признавался. Но большинство религиозных орденов прилагали одновременные усилия, чтобы быть продуктивными, чтобы они могли жертвовать из своих собственных излишков, а также распределяя пожертвования. Когда они выполняли производительную работу, такую как строительство, преподавание за разумную плату, сельское хозяйство или случайные промыслы и искусства, результаты были устойчивыми не только в виде конкретных продуктов, но и в расширении знаний и передовых методов, так что в долгосрочной перспективе бегом они подняли норму благосостояния.
И следует отметить, что эти устойчивые результаты получены благодаря самосовершенствованию.
Что один человек может сделать для другого? Он может дать из своих собственных средств и своего времени все, что он может сэкономить. Но он не может дать способности, в которых природа отказала; ни раздать свое пропитание, не став сам зависимым. Если он зарабатывает то, что отдает, он должен сначала это заработать. Конечно, он имеет право на семейную жизнь, если может содержать жену и детей. Поэтому он должен резервировать достаточно для себя и своей семьи, чтобы продолжать производство. Ни один человек, даже если его доход составляет десять миллионов долларов в год, не может позаботиться о каждом случае нужды в мире. Но предположим, что у него нет собственных средств, и он все еще воображает, что может сделать «помощь другим» одновременно своей главной целью и нормальным образом жизни, что является центральной доктриной гуманитарного кредо, как он может это сделать? ? Опубликованы списки самых нуждающихся, заверенные светскими благотворительными фондами, которые щедро платят своим собственным офицерам.
Нуждающиеся были обследованы, но не освобождены. Из полученных пожертвований чиновники в первую очередь платят себе. Это смущает даже носороговую шкуру профессионального мецената. Но как уклониться от признания? Если бы филантроп мог распоряжаться средствами производителя, то вместо того, чтобы просить часть, он мог бы претендовать на кредит производства, имея возможность отдавать приказы производителю. Тогда он может обвинить производителя в том, что он не выполняет приказы производить больше.
Если главная цель филантропа, его оправдание жизни, состоит в том, чтобы помогать другим, его конечное благо требует, чтобы другие нуждались. Его счастье — обратная сторона их страданий. Если он хочет помочь «человечеству», все человечество должно нуждаться. Гуманитарный человек хочет быть движущей силой в жизни других. Он не может допустить ни божественного, ни естественного порядка, благодаря которому люди могут помочь себе сами. Гуманист ставит себя на место Бога.
Но он сталкивается с двумя неловкими фактами; во-первых, компетентные не нуждаются в его помощи; и, во-вторых, что большинство людей, если они не извращены, решительно не хотят, чтобы гуманитарий делал им добро.
Когда говорят, что каждый должен жить в первую очередь для других, какой конкретный курс следует проводить? Должен ли каждый человек делать именно то, чего хочет от него любой другой человек, без ограничений и оговорок? и только то, что другие хотят, чтобы он сделал? Что делать, если разные люди выдвигают противоречивые требования? Схема невыполнима. Возможно, тогда он должен делать только то, что на самом деле «хорошо» для других. Но будут ли эти другие знать, что хорошо для них? Нет, это исключено той же трудностью. Должен ли тогда А делать то, что, по его мнению, хорошо для Б, а Б делать то, что, по его мнению, хорошо для А? Или А должен принимать только то, что, по его мнению, хорошо для Б, и наоборот? Но это абсурд. Конечно, что на самом деле предлагает гуманитарий, так это то, что он должен делать то, что, по его мнению, хорошо для всех. Именно в этот момент гуманист устанавливает гильотину.
Какой мир созерцает гуманист как предоставляющий ему полный простор? Это мог быть только мир, наполненный очередями за хлебом и больницами, в котором никто не сохранил природную способность человека помогать себе или сопротивляться тому, чтобы с ним что-то сделали.
И именно такой мир устраивает гуманитарий, когда добивается своего. Когда гуманитарий желает позаботиться о том, чтобы у каждого была кварта молока, то очевидно, что молока у него нет и он не может произвести его сам, или почему он должен только хотеть? Кроме того, если бы у него действительно было достаточное количество молока, чтобы дать кварту каждому, пока его предполагаемые бенефициары могут и производят молоко для себя, они сказали бы нет, спасибо. Как же тогда гуманисту ухитриться, чтобы он имел все молоко для раздачи, а все остальные нуждались в молоке?
Есть только один способ — использовать политическую власть во всей ее полноте. Поэтому гуманитарий испытывает величайшее удовлетворение, когда он посещает или слышит о стране, в которой все ограничены продовольственными карточками. Там, где пропитание раздается, достигается желаемое, всеобщей нужды и превосходящей силы, чтобы «облегчить» ее. Гуманитарный в теории — это террорист в действии.
Добрые люди дают ему силу, которую он требует, потому что они приняли его ложную предпосылку.
Развитие науки придало ей видимость правдоподобия с ростом производства. Если всего достаточно для всех, то почему нельзя сначала обеспечить «нуждающихся» и таким образом навсегда решить вопрос?
На вопрос, как определить «нуждающихся» и из какого источника и какой силой должно производиться их обеспечение, добросердечные люди могут с негодованием воскликнуть: «Это придирки; сузить определение до самого предела, но при неустранимом минимуме вы не можете отрицать, что голодный, плохо одетый и не имеющий крова человек нуждается. Источником помощи могут быть только средства тех, кто в этом не нуждается. Сила уже существует; если может существовать право облагать людей налогом для нужд армии, флота, местной полиции, строительства дорог или любых других вообразимых целей, то, безусловно, должно быть и приоритетное право облагать людей налогом для сохранения самой жизни».
Очень хорошо; взять конкретный случай. В трудные времена девяностых молодой журналист из Чикаго был обеспокоен ужасающими трудностями безработных.
Он пытался поверить, что любой человек, искренне желающий работать, может найти работу; но, чтобы убедиться, он расследовал несколько случаев. Вот один из них, юноша с фермы, где семье, может быть, и хватало еды, но не хватало всего остального; мальчик с фермы приехал в Чикаго в поисках работы и, конечно, согласился бы на любую работу, но ее не было. Пусть предполагается, что он мог просить дорогу домой; были и другие, которые находились на расстоянии половины континента и океана от своих домов. Они не могли вернуться ни при каких собственных усилиях; и тут не придраться. Они не могли. Спали в переулках, ждали скудного пайка в столовых; и горько страдал. Есть еще одна вещь; среди этих безработных было несколько лиц, невозможно сказать сколько, исключительно предприимчивых, одаренных или способных; и именно это привело их в их непосредственное положение. Они освободились от зависимости в особенно опасное время; они рискнули. Среди безработных встречались крайности; крайности смелого предприятия, чистой неудачи и прямой непредусмотрительности и некомпетентности.
Кузнец, работавший недалеко от Бруклинского моста, который дал нищему скитальцу десять центов для оплаты проезда по мосту, не мог знать, что он делает этот шаг к бессмертию в лице будущего поэта-лауреата Англии. Но Джон Мейсфилд был странником. Таким образом, не подразумевается, что нуждающиеся обязательно «недостойны». Были также люди в сельской местности, в засушливых или пораженных насекомыми районах, которые остро нуждались и, должно быть, буквально голодали, если бы им не была послана помощь. Они тоже мало что получили, да и то бессистемно, как мешочек. Но все боролись за удивительное выздоровление всей страны.
Между прочим, бедствия были бы куда более суровыми, чем простая нищета у прожиточного минимума, но за ближнему подаяние, которое не называлось милостыней. Люди всегда много отдают, если они у них есть; это человеческий импульс, на котором гуманитарий играет в своих целях. Что плохого в том, чтобы институционализировать этот естественный импульс в политическом агентстве?
Опять хорошо; Совершил ли мальчик с фермы что-нибудь плохое, покинув ферму, где у него было достаточно еды, и отправившись в Чикаго в надежде получить работу?
Если ответ положительный, то должна быть законная сила, которая не позволит ему покинуть ферму без разрешения.
Это сделала феодальная власть. Это не могло предотвратить людей от голода; оно просто вынуждало их голодать прямо там, где они родились.
Но если ответ отрицательный, мальчик с фермы не ошибся, он имел право воспользоваться этим шансом, тогда что именно нужно сделать, чтобы убедиться, что ему не повезет, когда он доберется до своей избранницы назначения? Должна ли быть обеспечена работа любому человеку в любом месте, куда бы он ни пошел? Это абсурд. Это невозможно. Имеет ли он право на помощь в любом случае, когда он доберется туда, если он решит остаться; или хотя бы на обратный билет домой? Это так же абсурдно. Спрос был бы неограничен; никакое изобилие производства не могло удовлетворить его.
Что же тогда говорить о людях, обедневших от засухи; нельзя ли им дать политическую помощь? Но должны быть условия. Должны ли они получать его до тех пор, пока они в нем нуждаются, пока они остаются там, где они есть? (Их нельзя финансировать на неопределенный срок.) Именно это и делалось в последние годы; и он держал получателей помощи в течение семи лет вместе в убогом окружении, тратя время, работу и семена в пустыне.
Истина состоит в том, что если какой-либо предлагаемый метод заботы о предельных нуждах и страданиях, с которыми сталкивается человеческая жизнь, путем установления постоянной фиксированной платы за производство, будет с радостью принят теми, кто сейчас выступает против него, , если бы это было возможно. Они противятся этому, потому что это невыполнимо по самой природе вещей. Это люди, которые уже изобрели все возможные частичные средства на пути частного страхования; и они точно знают, в чем заключается подвох, потому что сталкиваются с этим, когда пытаются надежно обеспечить своих иждивенцев.
Непреодолимым препятствием является то, что абсолютно невозможно снять что-либо с производства до проведения технического обслуживания.
Если бы было фактом, что производители в целом, промышленные менеджеры и другие, имели сердца из закаленной стали и не заботились ни о каких человеческих страданиях, то все же для них было бы очень удобно, если бы вопрос об облегчении всякого рода страданий Будь то безработица, болезнь или старость, можно решить раз и навсегда, так что им не нужно больше об этом слышать.
Они всегда находятся под атакой в этом отношении; и это удваивает их проблемы всякий раз, когда промышленность сталкивается с депрессией. Политики могут получить голоса из бедственного положения; гуманитарные работники устраиваются на прибыльную работу белых воротничков, распределяя фонды помощи; только производители, как капиталисты, так и рабочие, должны терпеть злоупотребления и платить за выстрел.
Сложность лучше всего проявляется на конкретном примере. Предположим, что человек, владеющий прибыльным бизнесом в хорошем состоянии с большим послужным списком хорошего управления, хочет обеспечить, чтобы его семья получала от него поддержку на неопределенный срок. Он может как владелец быть в состоянии выдать облигации с правом первого залога, приносящие определенную сумму; скажем, это было всего 5000 долларов в год для бизнеса, который приносил 100 000 долларов чистой прибыли в год. Это самое лучшее, что он мог сделать; и если когда-нибудь бизнес не принесет 5000 долларов чистой прибыли, его семья не получит денег, и это все, что нужно.
Они могут объявить концерн банкротом и забрать активы, а активы после банкротства могут вообще ничего не стоить. : Вы не можете снять что-либо с производства до проведения технического обслуживания.
Кроме того, конечно, его семья может заложить облигации, передать их в «управление» какому-нибудь «доброжелательному» другу — что, как известно, бывает — и тогда они все равно не получат денег . Это примерно то, что происходит с организованными благотворительными фондами. Они поддерживают много добрых друзей в теплой работе.
Но что, если деловой человек, благодаря теплу своей щедрой привязанности, закрепил его безвозвратно, чтобы его жена и семья имели открытый расчетный счет на средства компании, чтобы получать все, что им заблагорассудится. Он может быть невинно уверен, что они не возьмут больше, чем небольшой процент, для своих разумных нужд. Но может наступить день, когда кассир должен будет сказать счастливой жене, что у нее нет денег, чтобы оплатить ее чек; и с таким расположением несомненно, что день наступит довольно скоро.
В любом случае, именно тогда, когда семья больше всего нуждалась в деньгах, бизнес приносил меньше всего.
Но процедура была бы совершенно безумной, если бы бизнесмен дал третьему лицу безотзывное право получать столько, сколько ему заблагорассудится, из средств компании, только с невыполнимым пониманием того, что третье лицо будет содержать семью владельца. Вот к чему сводится предложение заботиться о нуждающихся политическими средствами. Это дает политикам право взимать налоги без ограничений; и нет абсолютно никакого способа гарантировать, что деньги пойдут туда, куда они должны были пойти. В любом случае бизнес таких 9 не выдержит.0921 неограниченный слив.
Почему добрые люди призывают политическую власть? Они не могут отрицать, что средства для оказания помощи должны исходить от производства. Но говорят хватает и в избытке. Тогда они должны исходить из того, что производители не желают давать то, что «правильно». Кроме того, они предполагают, что существует коллективное право взимать налоги для любой цели, которую определяет коллектив.
Они локализуют это право в «правительстве», как если бы оно существовало само по себе, забывая об американской аксиоме, согласно которой правительство само по себе не существует само по себе, а устанавливается людьми для ограниченных целей. Сам налогоплательщик надеется на защиту со стороны армии, флота или полиции; он пользуется дорогами; следовательно, его право настаивать на ограничении налогообложения самоочевидно. Правительство не имеет никаких «прав» в этом вопросе, а только делегированные полномочия.
Но если для облегчения взимаются налоги, то кто судит о том, что возможно или выгодно? Это должны быть либо производители, либо нуждающиеся, либо какая-то третья группа. Сказать, что будет все три вместе, — это не ответ; вердикт должен основываться на большинстве или множестве, составленном из той или иной группы. Нуждающиеся сами голосуют за то, что хотят? Гуманитаристы, третья группа, голосуют за контроль как над производителями, так и над нуждающимися? (Именно это они и сделали.
) Таким образом, предполагается, что правительство наделено полномочиями предоставлять «безопасность» нуждающимся. Не может. То, что он делает, так это захватывает обеспечение, сделанное частными лицами для их собственной безопасности, тем самым лишая каждого всякой надежды или шанса на безопасность. Ничего другого он сделать не может, если вообще действует. Те, кто не понимает природы действия, подобны дикарям, которые могут срубить дерево, чтобы получить плод; они не думают о времени и пространстве, как должны думать цивилизованные люди.
Мы видели худшее, что может случиться, когда есть только частная помощь и импровизированные муниципальные пособия временного характера. Неорганизованные частные пожертвования носят случайный и спорадический характер; она никогда не была способна полностью предотвратить страдание. Но и не увековечивает зависимость своих бенефициаров. Это метод капитализма и свободы. Он включает в себя экстраординарные спады и подъемы, но подъемы всегда были выше каждый раз и дольше, чем спады.
И в самые бедственные периоды не было настоящего голода, не было черного отчаяния, а был какой-то странный злой, деятельный оптимизм и непоколебимая вера в лучшие времена, которые оправдывались исходом. Неофициальные, спорадические частные пожертвования действительно служили цели. Работало , но несовершенно.
С другой стороны, что может сделать политическая власть? Одним из предполагаемых «злоупотреблений» капитализма была потогонная работа. Иммигранты прибыли в Америку без гроша в кармане, не зная языка и без квалифицированного ремесла; их нанимали за очень низкую заработную плату, они много часов работали в трущобах и, как говорят, подвергались эксплуатации. И все же таинственным образом со временем они улучшили свое положение; подавляющее большинство обрело комфорт, а некоторые разбогатели. Могла ли политическая власть обеспечить прибыльными рабочими местами всем желающим прийти? Конечно, не мог и не может. Тем не менее, добрые люди призвали политическую власть облегчить нелегкую участь этих пришельцев.
Что он сделал? Его первым требованием было то, что каждый иммигрант должен привезти с собой определенную сумму денег. То есть он отрезал 90 921 наиболее нуждающихся 90 922 за границей от их единственной надежды. Позднее, когда политическая власть в Европе свела жизнь к угрюмому аду, но еще большое количество лиц могло бы наскрести необходимую сумму для въезда в Америку, политическая власть здесь просто урезала допуск до квоты. Чем более отчаянной была потребность, тем меньше шансов могла предоставить им политическая власть. Разве не были бы многие миллионы в Европе рады и благодарны, если бы вместо тюремных лагерей, пыточных подвалов, гнусных унижений и насильственной смерти они могли получить даже самый жалкий шанс, который давала старая система?
У работодателя потогонной мастерской не было большого капитала. Он рисковал тем немногим, что у него было, нанимая людей. Его обвинили в том, что он причинил им ужасную несправедливость, а его бизнес назвали свидетельством жестокости, присущей капитализму.
Политработник неплохо оплачивается, на постоянной работе. Сам ничем не рискуя, он получает свою плату за то, что отбрасывает отчаянных людей от границ, как утопающие могут быть отброшены с борта хорошо снабженного корабля. Что еще он может сделать? Ничего такого. Капитализм сделал все, что мог; политическая власть делает то, что может. Между прочим, корабль построил и хранил капитализм.
Что касается отношений между частным филантропом и частным капиталистом, действующим как таковой, то возьмем случай действительно нуждающегося человека, который не является недееспособным, и предположим, что филантроп дает ему пищу, одежду и кров — когда он их израсходовал, он точно так же, как он был раньше, за исключением того, что он, возможно, приобрел привычку зависимости. Но предположим, что кто-то без каких-либо благожелательных мотивов, просто желая, чтобы работа была сделана по его собственным причинам, нанимает нуждающегося человека за плату. Работодатель не сделал доброго дела.
Однако положение занятого человека фактически изменилось. В чем принципиальная разница между этими двумя действиями?
Дело в том, что нефилантропический работодатель вернул человека, которого он нанял , обратно на производственную линию , в большой контур энергии; тогда как филантроп может отвлекать энергию только таким образом, что не может быть возврата в производство и, следовательно, меньше вероятность того, что объект его благодеяния найдет применение.
Это глубокая, рациональная причина, по которой люди боятся облегчения и ненавидят само это слово. Это также причина, по которой те, кто занимается благотворительностью по истинному призванию, делают все возможное, чтобы сохранить ее маргинальной, и с радостью уступают возможность «делать добро» в пользу любого шанса для бенефициара работать на любых полутерпимых условиях. . Те, кто не может избежать облегчения, чувствуют и демонстрируют результаты в своем физическом существе; они отрезаны от живых источников самообновляющейся энергии, и их жизненная сила падает.
Результат, если они удерживаются на пособии достаточно долго решительными филантропами и политиками совместно, описан агентом по оказанию помощи. Поначалу «клиенты» обращались неохотно. «Через несколько месяцев все изменится. Мы обнаруживаем, что парень, который хотел как раз достаточно, чтобы пережить его, вернулся к жизни на пособие, как само собой разумеющееся. Агент по оказанию помощи, сказавший это, сам «разумеется, жил за счет помощи»; но он был на большую ступень ниже своего клиента в том смысле, что даже не осознавал своего состояния. Почему ему удалось уйти от правды? Потому что он мог спрятаться за человеколюбивым мотивом. «Мы помогаем предотвратить голод и следим за тем, чтобы у этих людей был какой-то кров и постель». Если бы агента спросили, выращиваете ли вы еду, строите ли вы приют или отдаете ли вы деньги из собственного заработка, чтобы заплатить за них, он не увидел бы, что это имеет какое-либо значение. Его учили, что правильно «жить для других», для «общественных целей» и «общественной выгоды».
Пока он может верить, что делает это, он не будет спрашивать себя, что он обязательно делает.0921 тем другим , ни откуда должны поступать средства для его содержания.
Если собрать полный список искренних филантропов с начала времен, то окажется, что все они вместе своей строго филантропической деятельностью никогда не приносили человечеству и одной десятой пользы, получаемой от обычно самостоятельных — заинтересованные усилия Томаса Альвы Эдисона, не говоря уже о великих умах, разработавших научные принципы, которые применял Эдисон. Бесчисленные спекулятивные мыслители, изобретатели и организаторы внесли свой вклад в обеспечение комфорта, здоровья и счастья своих собратьев, потому что это не было их целью. Когда Роберт Оуэн попытался управлять фабрикой для эффективного производства, этот процесс, попутно, улучшил некоторые очень бесперспективные черты среди его сотрудников, которые были на пособии и поэтому были, к сожалению, деградированы; Оуэн зарабатывал деньги для себя; и пока он был так занят, ему пришло в голову, что, если бы платить более высокую заработную плату, производство могло бы увеличиться, создав свой собственный рынок.
Это было разумно и верно. Но затем Оуэн проникся гуманитарным стремлением делать всем добро. Собрал много гуманитариев, в экспериментальную колонию; все они были так увлечены тем, чтобы делать добро другим, что никто не работал ни крошки; колония резко растворилась; Оуэн разорился и умер слегка сумасшедшим. Так что важному принципу, который он уловил, пришлось ждать целое столетие, прежде чем его заново открыли.
Филантроп, политик и сутенер неизбежно находятся в союзе, потому что у них одни и те же мотивы, они преследуют одни и те же цели, чтобы существовать для других, посредством и посредством других. И хороших людей нельзя оправдать за их поддержку. Нельзя также полагать, что хорошие люди совершенно не подозревают о том, что на самом деле происходит. Но когда добрые люди знают, а они, конечно, знают, что три миллиона человек (по крайней мере, подсчитано) были заморены голодной смертью в один год одобренными ими методами, то почему они до сих пор братаются с убийцами и поддерживают меры? Потому что им сказали, что затянувшаяся смерть трех миллионов может в конечном итоге принести пользу большему числу людей.
Этот аргумент в равной степени применим и к каннибализму.
Эта страница в значительной степени зависит от JavaScript.
Пожалуйста, включите JavaScript и перезагрузите страницу, чтобы воспользоваться нашими современными функциями.
Полное руководство по удушению гильотиной в BJJ
Удушение гильотиной — это мощный прием в бразильского джиу-джитсу, борьбе без ги и смешанных единоборствах.
На первый взгляд кажется, что это простой болевой прием — вы просто обхватываете шею соперника руками, подтягиваете и сжимаете, верно?
Не так быстро…
Есть МНОГО тонкостей, которые вам нужно освоить, прежде чем эта подача станет для вас надежной, особенно если вы не проводите по 4 часа в день в тренажерном зале, делая сгибания рук на бицепс…
Первый , и самая важная тонкость, которую нужно понять, заключается в том, что гильотина – это и позиция, и подчинение.
И вам нужно сначала освоить позиционный аспект; научитесь управлять гильотиной, контролировать противника и не дать ему сбежать, и тогда задушить его станет намного проще!
В этой статье Роб Бирнаки из The BJJ Formula, The Modern Leglock Formula и BJJconcepts.net разбирает гильотину как контрольную позицию И как ограничивающую кровь и воздух подачу, которая заставит вашего противника постучать или потерять сознание .
В модуле гильотины Роба ниже вы получите…
- Различные варианты удушения, в том числе высокий локоть, рука внутрь, пять пальцев, удушение спереди и гильотины в стиле Рафа Мендеса
- Сверла, которые научат вас контролировать положение гильотины и всегда смогут переходить снизу вверх
- Записи для ловли гильотиной на ногах и на земле (снизу и сверху)
- Переходы и варианты для удушения противника, если первоначальная атака гильотиной не сработала
- И, серьезно, НАМНОГО больше!
Прокрутите вниз, посмотрите и добавьте эту страницу в закладки, чтобы вы могли вернуться к ней — это довольно удивительный набор видео!
Стефан Кестинг
Введение в управление гильотиной
Здесь вы узнаете о критической важности использования гильотинного удушения в качестве контролирует позицию , прежде чем использовать ее в качестве сдачи, чтобы выбить противника! Итог: не переходите к аспектам подчинения гильотины, пока вы не сможете по желанию переходить из нижней позиции в верхнюю.
Схема управления гильотиной
Вот почему не стоит просто прыгать на гильотину и сжимать ее. Вы изучите основы управления положением гильотины и использования подбородочного ремня для управления головой, использования разгибания и вращения для ослабления его позы. Также рассматривается использование андерхука и оверхука для управления его плечами с помощью управления рычагом и непрямого прокси-управления.
Упражнение по управлению гильотиной: уход за подбородочным ремнем
Как отработать контроль над подбородочным ремнем, чтобы вам было удобно управлять гильотиной одной рукой, а затем переходить снизу вверх.
youtube.com/embed/9UH06x7YZR4?feature=oembed» frameborder=»0″ allow=»autoplay; encrypted-media» allowfullscreen=»»>
Упражнение с гильотинным контролем: использование управления зацепом
Более контрольное упражнение, на этот раз сочетающее подбородочный ремень с контролем за зацепом.
В этом упражнении вы сосредотачиваетесь на том, чтобы развести собственный локоть, чтобы повернуть руку противника внутрь и ослабить его структуру. Закрепите свою руку на его спине, широчайшей или дальней части бедра, чтобы не дать противнику нарушить вашу собственную структуру и получить хороший контроль рычага.
Упражнение с контролем гильотины: использование контроля за крюк
Здесь вы работаете над перемещением снизу вверх, соединяя руки, чтобы создать положение головы и рук (вы используете это, когда не можете получить подхват).
Сосредоточьтесь на том, чтобы выпрямить его локоть и прижать его к своему телу, чтобы держать его под контролем.
Гильотинное переходное упражнение
Полнофункциональное упражнение для соединения различных форм гильотинного контроля, включая подбородочный ремень, нижний крюк и верхний крюк. Удостоверьтесь, что в этом упражнении вы часто двигаетесь к своей заднице, чтобы больше практиковаться в переворачивании его и возвращении наверх.
Также включите переход, где вы используете подбородочный ремень, чтобы повернуться к спине и установить ремень безопасности. Это одна из альтернативных угроз гильотине, которая чаще вскрывает шею.
Рамы и крюки как второстепенные формы контроля в гильотине
В этом видеоролике рассматриваются рамки и крюки как вторичные формы контроля и управления расстоянием в гильотине.
Эти механизмы поддерживают дистанцию и позволяют вам подняться со дна и вернуться наверх, если ваше представление по какой-то причине не сработает.
Ответы на гильотину слабой стороны
Здесь вы узнаете разницу между «сильной» и «слабой» стороной удушения гильотиной, почему сильная сторона намного лучше, и как выручить слабую сторону, чтобы сбросить положение.
Два основных механизма возврата в исходное положение:
- Удерживая подбородочный ремень, поднимите свободный локоть и отведите бедра назад, пока не вернетесь в исходное положение, или
- Используйте свою тянущуюся ногу, чтобы установить крюк-бабочку, угрожать подсечкой и переустановить удушение в сильную сторону (или, по крайней мере, обратно в нейтральное положение).
youtube.com/embed/oJVVyC8Vsus?feature=oembed» frameborder=»0″ allow=»autoplay; encrypted-media» allowfullscreen=»»>
Управление гильотиной из закрытого ограждения
Это переход от гильотины в закрытом ограждении обратно наверх.
Суть в том, чтобы сделать гильотину крюком-бабочкой на противоположной стороне (например, контролировать его шею своей правой рукой в сочетании с введением крюка-бабочки левой ноги), чтобы вы могли видеть его с вашей сильной стороны гильотины .
Чтобы сделать это, сначала вытяните ноги, поставьте левую ногу на пол, одновременно обрамляя его бедро правой ногой, затем отпустите бедро и вставьте левый крюк-бабочку.
Восстановление после гильотины со слабой стороны
Если ваш противник прошел вашу защиту и теперь вы находитесь на своей слабой стороне, НЕ пытайтесь закончить удушение отсюда.
В этой позиции у вас просто недостаточно преимущества в отделе мировоззрения, чтобы сделать это успешно, если только вы НАМНОГО сильнее своего противника.
Прежде чем он получит кроссфейс (и угрожает удушением фон Флю), опустите гильотинирующую руку и схватите свои шорты, встаньте на бок, свободной рукой проверьте его ближнее колено или бедро, начните строить свою базу и попробуйте либо 1) вернуть нижнее колено назад или 2) подняться вверх.
Удушение гильотиной с высоким локтем
Удушение гильотиной с высоким локтем — это очень мощное добивание, популяризированное Марсело Гарсия. Высокое положение локтя помогает предотвратить переход соперника в вашу слабую сторону, а также ускоряет удушение.
В захвате избегайте «шарнирного» запястья, чтобы создать положение блокировки запястья. Вместо этого возьмитесь за выемку между локтевой костью и рукой так, чтобы вы тянули кость предплечья, а также кисть, а не только кисть.
Подводя локоть, прижмите руки к груди. Если вы гибки, вам будет легко перекинуть локоть, но если вы не гибки, то слегка поверните бедра в сторону высокого локтя, чтобы вам было легче переносить локоть.
В идеале вы падаете на бок, прижимая локоть удушающей руки к мату, близко к бедру, в то время как ваша нога находится над его телом. Это сгибает его шею, еще больше ослабляя его позу и применяя удушение еще быстрее.
Завершение гильотины из положения верхом
Вы можете атаковать гильотиной из положения верха, но обычно вы оказываетесь здесь, когда ваш противник пытается выкатиться из вашего удушения гильотиной, и вы следуете за ним, чтобы оседлать.
Оказавшись в креплении, скользните вперед и убедитесь, что ваша голова опирается на коврик – это позволит вам глубже и крепче обхватить его шею руками.
Теперь опустите бедра вниз, чтобы закончить удушение.
Завершение гильотины руки внутрь
Гильотина «рука внутрь», как правило, не такая мощная, как гильотина «высокий локоть», но в определенных ситуациях (например, при закрытой защите) это, вероятно, предпочтительнее.
Как только вы сцепите руки, цель поднимите бедра вверх и наклоните его голову вперед, отрегулируйте свое тело в сторону, затем прижмите локоть к бедру и поднимите колени, одновременно поднимая зацепленный бок, чтобы приблизить его плечо к его шея.
Рафа Менес Гильотина Финиш
Эта отделка, используемая Рафой Мендес, основана на толкающем хвате ладонь к ладони, а не типичном тянущем гильотинном движении .
Как правило, ты будешь применять это в полузащитной ситуации, когда ты блокируешь его бедро своей голенью, меняешь захват, блокируешь его голову своими ребрами, а затем двигаешь бедрами вперед, чтобы завершить удушающий прием. Это движение бедер, которое действительно активирует этот дроссель!
Гильотина с удушением спереди без покрытия
Время от времени вы можете провести удушающей рукой сверхглубоко вокруг его шеи и закончить в стиле «Front Naked Choke». По сути, это то же самое, что и удушение сзади, только что примененное спереди. До него сложнее добраться, но он становится невероятно мощным, когда он заблокирован!
Однорукое гильотинное завершение
Это добивание не очень распространено, но вы определенно можете получить его, если одна из ваших рук находится глубоко (как в добивании без удушения спереди), но ваш противник сражается как сумасшедший и выиграл.
не позволю вам соединить ваши руки.
Положите удушающую руку высоко на грудь и откиньтесь назад, блокируя и обрамляя его бедра своими ногами, чтобы он не мог просто обежать вокруг ваших ног, а затем закончите боковым движением. Убедитесь, что ваше тело поднимается и выдвигается вперед, чтобы оказать давление на обе стороны его шеи.
Пятипальцевая гильотина
Этот стиль гильотинной отделки «рука в руке» излюбленный феномен джиу-джитсу Кайо Терра.
Из закрытой гарды и гильотины для руки поместите вторую руку под край рукоятки подбородочного ремня. Затем дайте ему немного высунуть голову, сверните его шею вниз, оказывая давление на его затылок бицепсом, а затем нанесите большой палец руки в дыхательное горло соперника для финиша.
Финишная гильотина с десятью пальцами
Положение рук для этой версии гильотины с десятью пальцами очень похоже на гильотину с пятью пальцами, показанную выше.
Основное отличие этого удушающего приема заключается в том, что он применяется, когда голова вашего противника находится в середине вашего тела и идет вперед.
Этот финиш наиболее успешен, когда вы можете толкнуть кого-то обратно в стену или клетку, чтобы получить некоторый контроль над телом. Это делает его наиболее полезным в ММА, но иногда оно также проявляется и в ситуациях джиу-джитсу.
Вход гильотиной спереди Headlock
Это самый важный вход гильотиной в тренировке, потому что он учит вас контролировать тело противника, изменять его ориентацию и угрожать ударом в спину.
Начните с переднего захвата головы и, используя подбородочный ремень, вдавите плечо ему в шею сзади. Начните кружиться к спине вашего партнера, что обычно заставит его блокировать ваше бедро рукой. Момент, когда он блокирует твое бедро, — идеальное время для гильотины с высоким локтем.
Как только вы получите высокий захват локтя, вы можете либо заставить его перевернуться на спину и взять установленную гильотину, либо вы можете потянуть охрану, чтобы закончить ее снизу.
Snapdown to Guillotine
В этом заходе на гильотину стоя используется борцовский прием «Snap Down», чтобы прижать руки соперника к матам. Теперь закрепите подбородочный ремень и продолжайте тянуть его вперед, чтобы отключить его потенциальные контр-удары. Затем опуститесь в положение «голени поперек», надеясь прижать одну из его рук, и нанесите действительно глубокий гильотинный удар локтем, чтобы прикончить противника.
Рука в гильотине против тейкдауна двумя ногами
В большинстве случаев, когда ваш противник атакует тейкдауном с двух ног, вы в конечном итоге получите гильотину с поднятой рукой, а не с гильотиной с высоким локтем.
В идеале в этот момент вы должны использовать гильотину, чтобы добраться до вершины и прикончить его с маунта или сайдмаунта.
Если вы поймаете его голову и правую руку своей гильотиной, вам нужно убедиться, что ваше правое колено остается впереди, чтобы управлять дистанцией. Отсюда вы можете либо подбросить его прямо над головой, либо в правую сторону — никогда не подбрасывайте противника в сторону его зажатой руки (в данном случае — в правую сторону), потому что это ставит вас на слабую сторону гильотины.
Гильотина с высоким локтем против тейкдауна с двумя ногами
Этот стиль гильотины встречается реже, чем гильотина рукой, когда ваш противник делает дубль, но все же случается, если ваш тайминг превосходен, или ваш противник устал или неряшлив . Этот стиль применения гильотины требует некоторых борцовских навыков и очень похож на атаку из снэпа вниз; сначала заблокируй его удар, а затем ударь высоким локтем, потому что у тебя немного больше отрыва.
Прыгающая гильотина
Этот прием доступен вам в любое время, когда вы можете сломать его позу — нарушенное выравнивание значительно снижает вероятность того, что вас ударят в процессе атаки.
Вы используете эту атаку, когда вы переместили его туловище вперед и опустили голову (с рывком вниз, перетаскиванием рук и т. д.), но он не положил руки на землю, как в гильотине с мгновенным опусканием. Прыгните через защиту под углом, а затем сконцентрируйтесь на том, чтобы свисать с его головы, одновременно отталкивая его задней частью подколенных сухожилий в жиме ногами — это вытянет его, и ему будет намного труднее оставаться на ногах. Завершите удар гильотиной с высоким локтем, если можете, сосредоточив внимание на том, чтобы лезвие вашего предплечья попало ему в шею сбоку.
Если он блокирует высокий локоть, тогда ослабьте хватку, схватитесь за штаны удушающей рукой, возьмите андерхук другой рукой, бедром внутрь и поверните его в сторону, чтобы подхватить его и добраться до вершины.
Если во время прыжковой защиты противнику удается удержаться на ногах и подняться, то переключитесь с закрытой стойки на стоячую стойку-баттерфляй (что значительно снижает вероятность удара), получите андерхук, отступите назад, сломайте его и затем закончите гильотиной с высоким локтем.
Гильотина с высоким локтем против тейкдауна на одной ноге
Как правило, вы будете применять это, когда ваш противник вырывает контрольную позицию на одной ноге и толкает вас лбом в грудь. Поверните свое тело так, чтобы вы не смотрели на него прямо, наденьте галстук, накройте его голову, прыгайте назад и засовывайте его голову наружу.
Как только его голова окажется снаружи, заблокируйте его бедро зажатой голенью, чтобы скрыть его. Вы можете прикончить его стоя, закинув высокий локоть ему на плечо, прыгнув через спину или применив бросок в стиле суми-гаэси, чтобы занять верхнюю позицию.
Гильотина против сидящего охранника
Если вы стоите, а ваш противник лежит на заднице в сидячем открытом гарде, вы можете атаковать его гильотиной.
Вовлеките его в рукопашный бой, поставьте одну ногу между его ног и завяжите воротник. Как только ты можешь получить андерхук другой рукой, ты идешь к гильотине — отклоняешь его голову в сторону, чтобы оставаться в хорошей осанке. Выдвиньте его локоть своим андерхуком и выдвиньте ведущее колено наружу его тела.
Чтобы закончить, подтолкните его к земле, и если он отправляет удар руками, просто используйте гильотину с высоким локтем. Если он борется за хват, чтобы защитить свою шею, тогда опустите колено на землю в обратном шаге и ищите гильотину в обратной полузащите противника (описано далее на этой странице).
youtube.com/embed/oXgZ_Ud-jBo?feature=oembed» frameborder=»0″ allow=»autoplay; encrypted-media» allowfullscreen=»»>
Гильотина против халфгарда
В этом видео вы узнаете, как применять гильотину против халфгарда, когда у вашего противника есть андерхук, и он пытается построить свою базу, чтобы отбить вашу спину
Подтолкните его макушку под подбородок и нанесите удары для внутреннего контроля. Дайте ему достаточно места для того, чтобы начать захват, затем нырните вперед, положите голову на мат и обхватите рукой его голову, чтобы закрепить подбородочный ремень.
Закончите либо гильотиной с вытянутой рукой, либо гильотиной с высоким локтем, в зависимости от того, с какими захватами вы столкнетесь, когда доберетесь до вершины.
Гильотина против обратной полузащиты
Вы использовали шаг назад, чтобы пройти полузащиту, и оказались в обратной полузащите.
Во-первых, убедитесь, что вас не зацепит обратный полузащитный взмах. Отойдите назад, чтобы освободить ногу, боритесь за внутренний контроль и протяните свою гильотинную хватку. Отсюда вы можете закончить либо высоким локтем, либо гильотиной в стиле Рафа. Вторичная угроза в этой атаке — переключиться в положение 411.
Гильотина с горы
Люди часто слишком сосредотачиваются на защите и побеге с горы и забывают оттуда о гильотине, но это очень жизнеспособный вариант.
Заставьте вашего соперника побеспокоиться о обратном приеме в стиле «сидя на стуле», затем нырните вперед, пролетите мимо его головы и обхватите его шею. Важным аспектом этой техники является отталкивание его защищающейся руки своей рукой, а затем захват ее ногой, чтобы вы могли соединить руки для гильотины.
youtube.com/embed/-YFTuT-90Mg?feature=oembed» frameborder=»0″ allow=»autoplay; encrypted-media» allowfullscreen=»»>
Гильотина от побега с помощью завязки воротника
Эта установка исходит из версии с завязкой воротника (или обратной завязкой воротника) в технике предотвращения прохода защитного ограждения на раме и бедре (или выхода с боковым креплением). Джефф Гловер использовал его против Робсона Муры на ADCC, так что вы знаете, что это работает.
Если ваш противник опускает голову, чтобы пройти мимо галстука с воротником, или если вы используете галстук с обратным воротником и поднимаете бедра, вы можете щелкнуть подбородочным ремнем. Поднимите вторую руку и агрессивно разведите бедра, чтобы сохранить хороший угол, бросьте голень поперек и закончите гильотиной с высоким локтем.
Гильотина Top Transition Concepts
В этом видео рассказывается о последующих атаках гильотиной с сайдмаунтом, включая переход к…
- … удушение D’Arce к гильотине высокого локтя,
- … дроссель Anaconda для навесной гильотины,
- … навесная омоплата к высокой локтевой гильотине,
- …накладной треугольный дроссель/накладной треугольный рычаг/накладной треугольник Kimura.

Концепции гильотинного перехода снизу
В этом видео основное внимание уделяется последующим атакам из позиции удушения гильотиной из закрытой стойки, включая переход в…
- …удушение треугольником, возможно, сопровождающееся гильотиной высокого локтя или руки внутрь,
- …омоплата на гильотину,
- …обратный рычаг к гильотине.
Подробнее Rob Biernacki…
Вы можете получить больше техник и концепций Роба на его сайте BJJconcepts.net (используйте код «concepts», чтобы получить скидку 10%). То, что вы видели выше, — это всего лишь и из множества модулей, доступных для его участников.







5 — 1.5
5 — 2
5 — 2
5 — 2.5
5 — 2.5
5 — 2.5
5 — 3
5 — 3
5 — 3
5 — 1.5
5 — 2
5 — 2
5 — 2.5
5 — 2.5
5 — 2.5
5 — 3
5 — 3
5 — 3
5 — 1.5
5 — 2
5 — 2
5 — 2.5
5 — 2.5
5 — 2.5
5 — 3
5 — 3
5 — 3
По 4-ре режущих кромки на верхнем и на нижнем ноже



Винегард
В предлагаемой схеме используются 256 поднесущих и модуляция QPSK. Передаваемый цифровой сигнал изображения шифруется последовательностью хаоса Чебышева. Затем зашифрованный сигнал преобразуется матрицей предварительного кодирования DFT, чтобы уменьшить PAPR сигнала OFDM. После этого зашифрованный и предварительно закодированный с помощью DFT OFDM передается по каналу VLC. Результаты моделирования показывают, что предложенная схема передачи защищенного изображения может не только защитить VLC на основе OFDM с предварительным кодированием DFT от перехватчиков, но также улучшить производительность BER.
Результаты показали, что соединения 8b с фторсодержащей группой и 8e с хлорным заместителем в бензоильном кольце бензофенонового каркаса, а также пиридиновое кольцо с гидроксильной группой проявляют значительную активность. Дальнейшее исследование на мышиной модели позволяет предположить, что соединения 8b и 8e обладают способностью активировать активируемую каспазой ДНКазу (эндонуклеазу), которая отвечает за фрагментацию ДНК, основной признак апоптоза, и, таким образом, ингибирует рост асцитной опухоли лимфомы Дальтона.
В настоящем исследовании устройство подачи депозитов, Capitella teleta использовали для исследования влияния формы меди (НЧ CuO, частиц CuO микронного размера и водного раствора Cu) и формы НЧ CuO (сферы, стержни и пластинки) на токсичность и биоаккумуляцию при воздействии на отложения приблизительно 250 мкг. Cu/г с.в. Не было никакого влияния формы или формы наночастиц на смертность или скорость роста в течение периода воздействия. Тем не менее, смертность увеличилась примерно до 26,3% в среднем при всех обработках Cu после периода очистки, что указывает на отсроченный эффект воздействия Cu, несмотря на более чем 90% очистки Cu в течение этого периода. Было обнаружено значительное влияние формы наночастиц на массу тела, константу общей скорости поглощения и константу скорости депурации, что свидетельствует о предпочтительном накоплении палочек червями. Мы рекомендуем изучить дополнительные сублетальные конечные точки и более длительную продолжительность воздействия, чтобы полностью понять экологические риски наночастиц CuO по сравнению с другими формами Cu, попадающими в системы морских отложений.
QAM OFDM при частоте ошибок по битам (BER) 10-5.
Это включало общий фактор транскрипции TFII-I, для которого мы проводим первый функциональный анализ в нейронах. TFII-I модулировал экспрессию гена-мишени SRF в нейронах, усиливал рост нервных волокон и модулировал форму конусов роста нейронов. Интересно, что TFII-I модулирует два кофактора SRF, Elk-1 и MRTF-A, в противоположных направлениях. Совместная экспрессия TFII-I и Elk-1 увеличивала количество генов-мишеней SRF, связывание промотора SRF и рост нейритов, тогда как TFII-I и MRTF-A приводили к противоположным результатам.